Prodej bytu 3+kk, Orihuela, Španělsko, 60 m2 (ID: 2483845)

Orihuela

157 500 € /za nemovitost
Doporučené firmy

Informace k bytu

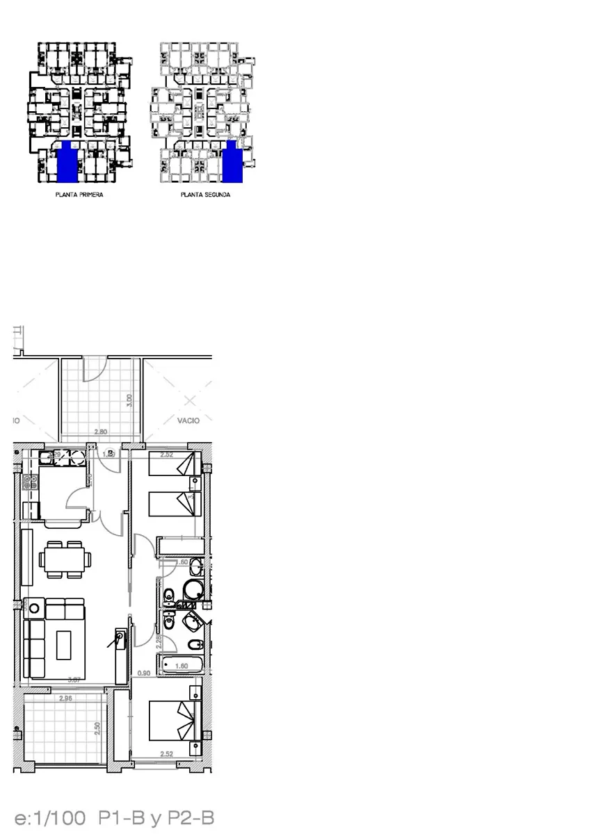
V srdci vyhledávané oblasti Lomas de Cabo Roig vzniká projekt, který spojuje středomořský klid, moderní bydlení a skvělou dostupnost k moři. Tento zrekonstruovaný apartmán 3+kk o celkové ploše 69 m² nabízí příjemný prostor pro život i rekreaci a svou polohou jen 2 km od pobřeží patří mezi místa, kde se každý den žije o trochu lehčeji.
Byt se nachází v renovovaném rezidenčním komplexu. Interiér je navržen tak, aby působil vzdušně a příjemně – obývací prostor plynule navazuje na kuchyň a díky velkým oknům je naplněn světlem po celý den. Dvě samostatné ložnice poskytují klid a soukromí, dvě moderní koupelny doplňují praktické a pohodlné zázemí. K bytu patří také terasa o velikosti 17 m², ideální pro posezení při západu slunce nebo klidné snídaně pod širým nebem.
Komplex nabízí obyvatelům pěkně upravené zahrady, společný bazén a výtah, což přináší pohodlí v každodenním životě. K dispozici jsou také podzemní parkovací místa za příplatek. Celý projekt působí čistě a moderně a je koncipován tak, aby poskytoval komfort jak pro trvalé bydlení, tak pro rekreační pobyty.
Lomas de Cabo Roig patří mezi nejatraktivnější části Orihuela Costa. V okolí najdete restaurace, obchody, supermarkety i nákupní centrum Zenia Boulevard. Milovníci golfu ocení blízkost hřiště Villamartín a ti, kteří hledají přístup k moři, mají na dosah jedny z nejkrásnějších pláží oblasti – Cabo Roig a Campoamor. Výborné dopravní napojení umožňuje snadný přesun po regionu a rychlý dojezd na letiště v Alicante.
Tento apartmán představuje příležitost, která spojuje výhodnou investici s možností vytvořit si místo, kde se budete rádi vracet. Nabízí kvalitní rekonstrukci, pohodlné zázemí a skvělou polohu, která zaručuje příjemný život pod španělským sluncem.
Pokud vás tento byt zaujal, rád poskytnu více informací, domluvím prohlídku a zajistím celý proces tak, abyste si mohli brzy užívat vlastní domov na Costa Blanca.

Parametry bytu

Cena
157 500 € /za nemovitost
Aktualizováno
24. 11. 2025
Adresa
Orihuela
ID
F20215
Stavba
Cihlová
Stav objektu
Novostavba
Patro
3. z 3
Vybaveno
Částečně
Lokalita objektu
Klidná část obce
Vlastnictví
Osobní
Užitná plocha
60 m2
Podlahová plocha
69 m2
Elektřina
230V
Odpad
Veřejná kanalizace
Topení
Lokální elektrické
Telekomunikace
Internet
Doprava
Dálnice, Silnice, MHD
Voda
Vodovod
Terasa
Výtah
Parkování

Kontaktovat makléře

Máte zájem o tento byt?

Tímto, v souladu s nařízením Evropského parlamentu a Rady (EU) 2016/679, v platném znění, prohlašuji, že mi je alespoň 16 let a uděluji tak svůj souhlas se zpracováním zadaných údajů (jméno, telefon, e-mail, ip adresa) společnosti B3 Technology, s.r.o., IČ: 07330600, se sídlem Novostavby 126/23, 435 11 Lom (správce dat), za účelem předání dotazu z tohoto formuláře Vámi vybranému inzerentovi a zpětného kontaktování mé osoby. Osobní údaje bude správce zpracovávat manuálně i automaticky přímo prostřednictvím svých zaměstnanců. Informace předané tímto formulářem budou uloženy v databázi správce maximálně po dobu 10 let. Odvolání souhlasu s uložením a zpracováním poskytnutých dat lze e-mailem na info@bydlisnami.cz. V případě podezření na neoprávněné použití Vámi poskytnutých údajů máte právo předat podnět k šetření Úřadu pro ochranu osobních údajů. Více informací
Chystáte se prodat nemovitost?
Pomůžeme Vám!

Inzerát si prohlédlo 0 lidí

Prodejce

Nikša Marinkovič

Nikša Marinkovič

Hlídací pes

Chcete dostávat emailem podobné nabídky prodeje bytů 3+kk?

Podobné nemovitosti