Prodej bytu 2+kk, České Budějovice, Štítného, 90 m2 (ID: 2484284)

Štítného, České Budějovice

12 021 000 Kč /za nemovitost HYPOTÉKA od 53 727 Kč /za měsíc
Doporučené firmy v Českých Budějovicích

Informace k bytu

Nabízíme k prodeji prostorný byt 2+kk o celkové výměře 90,2 m², který se nachází v novostavbě bytového domu v samotném centru Českých Budějovic, na ulici Štítného.
Byt je součástí moderního projektu s pouhými dvanácti bytovými jednotkami, který vyniká vysokým standardem zpracování, kvalitními materiály a výjimečnou polohou v srdci města.

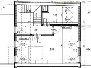
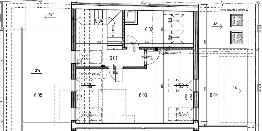
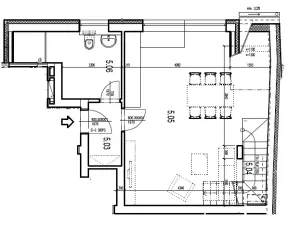
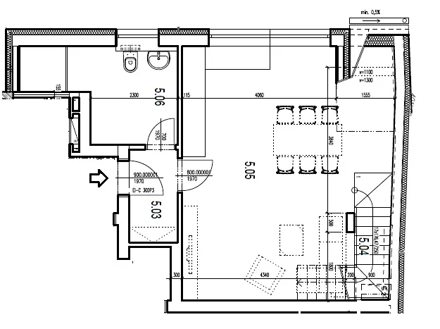
Dispozice bytu tvoří vstupní chodba, prostorný obývací pokoj s kuchyňským koutem, ložnice, koupelna a technická místnost se samostatným WC. K bytu náleží také dvě terasy o velikostech 14,1 m² a 17,4 m², které poskytují dostatek prostoru pro odpočinek, posezení či menší zahradní úpravy. Součástí je rovněž samostatný sklep o velikosti 3,9 m² umístěný v přízemí domu a dvě parkovací stání.

Díky vynikající poloze v centru města je zde v dosahu kompletní občanská vybavenost – obchody, restaurace, školy, úřady i kulturní vyžití. Samozřejmostí je také výborná dopravní dostupnost a pohodlné spojení do všech částí města.
Tento byt představuje ideální kombinaci moderního městského bydlení, nadstandardního komfortu a jedinečné lokality v samém srdci Českých Budějovic.

Parametry bytu

Cena
12 021 000 Kč /za nemovitost Spočítat hypotéku
Aktualizováno
25. 11. 2025
Adresa
Štítného, České Budějovice
ID
2kk, Štítného - podkroví
Stavba
Cihlová
Stav objektu
Novostavba
Patro
5. z 5
Vybaveno
Částečně
Lokalita objektu
Centrum obce
Vlastnictví
Osobní
Užitná plocha
90 m2
Třída energetické náročnosti
B - Velmi úsporná
Elektřina
120V
Odpad
Veřejná kanalizace
Komunikace
Asfaltová
Doprava
Vlak, Dálnice, Silnice, MHD, Autobus
Voda
Místní zdroj vody
Topné těleso
Podlahové vytápění
Sklep
Terasa
Výtah
Bezbarierový přístup
Parkování

Kontaktovat makléře

Máte zájem o tento byt?

Tímto, v souladu s nařízením Evropského parlamentu a Rady (EU) 2016/679, v platném znění, prohlašuji, že mi je alespoň 16 let a uděluji tak svůj souhlas se zpracováním zadaných údajů (jméno, telefon, e-mail, ip adresa) společnosti B3 Technology, s.r.o., IČ: 07330600, se sídlem Novostavby 126/23, 435 11 Lom (správce dat), za účelem předání dotazu z tohoto formuláře Vámi vybranému inzerentovi a zpětného kontaktování mé osoby. Osobní údaje bude správce zpracovávat manuálně i automaticky přímo prostřednictvím svých zaměstnanců. Informace předané tímto formulářem budou uloženy v databázi správce maximálně po dobu 10 let. Odvolání souhlasu s uložením a zpracováním poskytnutých dat lze e-mailem na info@bydlisnami.cz. V případě podezření na neoprávněné použití Vámi poskytnutých údajů máte právo předat podnět k šetření Úřadu pro ochranu osobních údajů. Více informací
Chystáte se prodat nemovitost?
Pomůžeme Vám!

Inzerát si prohlédlo 0 lidí

Prodejce

Kristýna Křiváčková

Kristýna Křiváčková

Hlídací pes

Chcete dostávat emailem podobné nabídky prodeje bytů 2+kk v Českých Budějovicích?

Podobné nemovitosti