Pronájem rodinného domu, Brandýs nad Labem-Stará Boleslav - Stará Boleslav, Dříská, 168 m2

Dříská, Brandýs nad Labem-Stará Boleslav

35 000 Kč /za měsíc Získejte výhodnou HYPOTÉKU

(+ zálohy na služby)

Doporučené firmy v Brandýse nad Labem

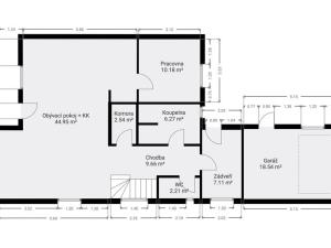
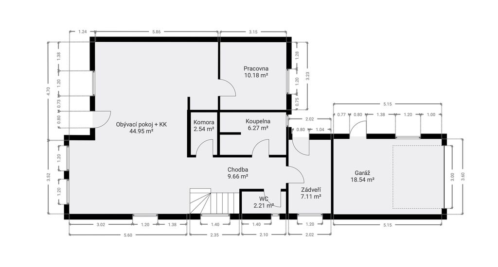
Informace k domu

K pronájmu nabízím rodinný dům o užitné ploše 168 m² na pozemku o velikosti 460 m² se zahradou, garáží a dalším parkovacím místem vedle garáže. Dům se nachází v klidné rezidenční ulici Dříská, Stará Boleslav (Brandýs nad Labem–Stará Boleslav). je nový a pečlivě udržovaný, s příjemnou zahradou a dostatkem prostoru.

Dům je ideální pro rodinu, která hledá klid, prostor a výborné zázemí.

Dispozice

Přízemí:
• Obývací pokoj s plně vybaveným kuchyňským koutem a vstupem na terasu
• Koupelna se sprchovým koutem
• Pracovna / pokoj
• Samostatné WC
• Vstupní chodba
• Spíž

2. nadzemní podlaží:
• Tři samostatné ložnice
• Koupelna s vanou a WC

Náklady a podmínky
• Nájemné: 35 000 Kč / měsíc
• Zálohy na služby: 7 000 Kč / měsíc (vodné/stočné, elektřina – vytápění i provoz, odvoz odpadu)
• Vratná kauce: 45 000 Kč
• Provize RK: 40 000 Kč vč. DPH

Parkování
1 vůz v garáži, další 1 vůz na parkovacím místě vedle garáže za posuvnou bránou.

Dopravní dostupnost do Prahy:
Autobus (PID, linka 379): přímé spojení na Praha – Černý Most (metro B). Nejbližší zastávka je cca 700 m od domu. Jízdní doba cca 15 minut (podle dopravní situace).

Autem: rychlý nájezd na D10 (sjezd Brandýs/Stará Boleslav, cca 1,5 km). Cesta do Prahy trvá zhruba 35 minut mimo špičku, 45–60 minut ve špičce dle provozu.

Občanská vybavenost:
V pěší vzdálenosti: MŠ/ZŠ, menší potraviny, dětská hřiště, sportoviště, procházkové trasy podél Labe a lesopark Houšťka.

Do 5–10 minut: kompletní městská infrastruktura Brandýsa n. L.–Staré Boleslavi – Retail Park Traxial (≈1 km: BILLA, JYSK, Teta drogerie, BENU lékárna, Super Zoo, Zásilkovna, Alza box, PPL box), další supermarkety (Lidl, Kaufland), pošta, kavárny, restaurace, poliklinika a lékárny.

Chcete-li získat více informací nebo si domluvit prohlídku, odpovězte na tento inzerát nebo mě kontaktujte e-mailem.

Parametry domu

Cena
35 000 Kč /za měsíc
Poznámka k ceně
+ zálohy na služby
Aktualizováno
26. 11. 2025
Adresa
Dříská, Brandýs nad Labem-Stará Boleslav
ID
17632
Stavba
Cihlová
Stav objektu
Velmi dobrý
Vybaveno
Ne
Typ objektu
Patrový
Druh objektu
Rohový
Lokalita objektu
Klidná část obce
Užitná plocha
168 m2
Zastavěná plocha
129 m2
Podlahová plocha
187 m2
Plocha pozemku
460 m2
Plocha zahrady
260 m2
Třída energetické náročnosti
B - Velmi úsporná
Ukazatel energetické náročnosti
125 kWh/m2 za rok
Elektřina
400V
Odpad
Veřejná kanalizace
Komunikace
Dlážděná, Asfaltová
Doprava
Dálnice, Silnice, Autobus
Voda
Vodovod
Garáž
Převod do OV
Parkování

Kontaktovat makléře

Máte zájem o tento dům?

Tímto, v souladu s nařízením Evropského parlamentu a Rady (EU) 2016/679, v platném znění, prohlašuji, že mi je alespoň 16 let a uděluji tak svůj souhlas se zpracováním zadaných údajů (jméno, telefon, e-mail, ip adresa) společnosti B3 Technology, s.r.o., IČ: 07330600, se sídlem Novostavby 126/23, 435 11 Lom (správce dat), za účelem předání dotazu z tohoto formuláře Vámi vybranému inzerentovi a zpětného kontaktování mé osoby. Osobní údaje bude správce zpracovávat manuálně i automaticky přímo prostřednictvím svých zaměstnanců. Informace předané tímto formulářem budou uloženy v databázi správce maximálně po dobu 10 let. Odvolání souhlasu s uložením a zpracováním poskytnutých dat lze e-mailem na info@bydlisnami.cz. V případě podezření na neoprávněné použití Vámi poskytnutých údajů máte právo předat podnět k šetření Úřadu pro ochranu osobních údajů. Více informací
Chystáte se prodat nemovitost?
Pomůžeme Vám!

Inzerát si prohlédlo 3 lidí

Prodejce

Ing. Iztok Toplak, MBA

Ing. Iztok Toplak, MBA

Hlídací pes

Chcete dostávat emailem podobné nabídky pronájmu rodinných domů v Brandýse nad Labem?

Podobné nemovitosti