Prodej komerčního pozemku, Bad Gastein,Rakousko, 8724 m2

Bad Gastein,Rakousko

Cena na vyžádání /za nemovitost

(cena u makléře)

Doporučené firmy

Informace k pozemku

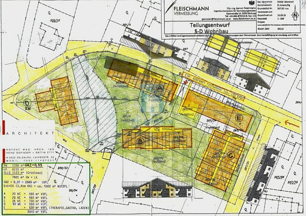
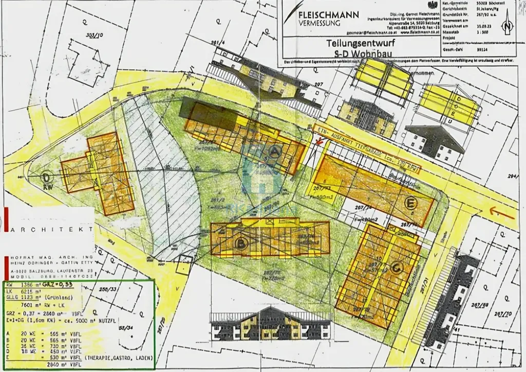
Nabízíme k prodeji exkluzivní pozemek o celkové ploše 8724 m², situovaný v malebné obci Bad Gastein, v okrese Sankt Johann im Pongau. Tato lokalita je známá svou vysokou atraktivitou nejen pro turisty, ale také pro investory, kteří hledají výhodné příležitosti v oblasti nemovitostí.
Pozemek nabízí výjimečný potenciál pro rozvoj, ať už v oblasti výstavby ubytovacích zařízení, obchodních prostorů či jiných komerčních aktivit. Díky strategické poloze v srdci atraktivní turistické destinace, má tento pozemek velmi výhodnou pozici pro generování stabilního příjmu z pronájmu. Bad Gastein je oblíbeným cílem jak v zimní, tak v letní sezóně, což zajišťuje stálý tok návštěvníků a zvyšuje tak potenciál výnosů (Očekávaný výnos: 6–10 %). Na vyžádání lze zakoupit i jednotlivé parcely.
Komerční zaměření pozemku, v kombinaci s vysokou poptávkou po službách a ubytování v této oblasti, z něj činí skvělou investiční příležitost. Vzhledem k rostoucímu zájmu o turistický ruch a wellness služby má pozemek všechny předpoklady pro zhodnocení investice v krátkodobém až střednědobém horizontu.
V malebném údolí Gastein, zasazeném do majestátních svahů pohoří Vysoké Taury, se tyto vzácné, slunné pozemky nacházejí v nadmořské výšce 1 100 m. Po staletí si horští farmáři i letní návštěvníci cení čistého vzduchu, hojné pramenité vody a mírných alpských luk, které se směle táhnou
k nebi.
Lokalita Bad Gastein je také atraktivní díky dostupnosti na významná místa, jako jsou lyžařské areály, turistické stezky a lázně, co dále zvyšuje atraktivitu pro budoucí nájemce. Přítomnost veškeré občanské vybavenosti, kvalitní dopravní dostupnost a malebné přírodní okolí jen podtrhují výhodnost investice.
Kromě toho je důležité zmínit možnosti napojení na inženýrské sítě, což usnadní budoucí výstavbu a provoz. Přívod elektřiny je k dispozici, což je pro komerční využití pozemku značnou výhodou.
Investice do nemovitosti v takovéto dynamické lokalitě představuje příležitost, kterou nelze opominout. Pokud hledáte projekt, který vám může zajistit dlouhodobou návratnost investice, je tento pozemek ideální volbou.

V případě více informací mě neváhejte kontaktovat.

Parametry pozemku

Cena
Cena na vyžádání
Poznámka k ceně
cena u makléře
Aktualizováno
28. 11. 2025
Adresa
Bad Gastein,Rakousko
ID
2760
Plocha pozemku
8724 m2
Převod do OV

Kontaktovat makléře

Máte zájem o tento pozemek?

Tímto, v souladu s nařízením Evropského parlamentu a Rady (EU) 2016/679, v platném znění, prohlašuji, že mi je alespoň 16 let a uděluji tak svůj souhlas se zpracováním zadaných údajů (jméno, telefon, e-mail, ip adresa) společnosti B3 Technology, s.r.o., IČ: 07330600, se sídlem Novostavby 126/23, 435 11 Lom (správce dat), za účelem předání dotazu z tohoto formuláře Vámi vybranému inzerentovi a zpětného kontaktování mé osoby. Osobní údaje bude správce zpracovávat manuálně i automaticky přímo prostřednictvím svých zaměstnanců. Informace předané tímto formulářem budou uloženy v databázi správce maximálně po dobu 10 let. Odvolání souhlasu s uložením a zpracováním poskytnutých dat lze e-mailem na info@bydlisnami.cz. V případě podezření na neoprávněné použití Vámi poskytnutých údajů máte právo předat podnět k šetření Úřadu pro ochranu osobních údajů. Více informací
Chystáte se prodat nemovitost?
Pomůžeme Vám!

Inzerát si prohlédlo 0 lidí

Prodejce

Kateřina Hradecká

Kateřina Hradecká

Hlídací pes

Chcete dostávat emailem podobné nabídky prodeje komerčních pozemků?

Podobné nemovitosti