Pronájem rodinného domu, Petřvald - Petřvald 1-Petřvald, 100 m2

Petřvald 1-Petřvald

40 000 Kč /za měsíc Získejte výhodnou HYPOTÉKU

(Kauce 80 000,- Kč, nájem se platí předem, v ceně nejsou zálohy na studenou vodu a elektřinu)

Doporučené firmy v Petřvaldě

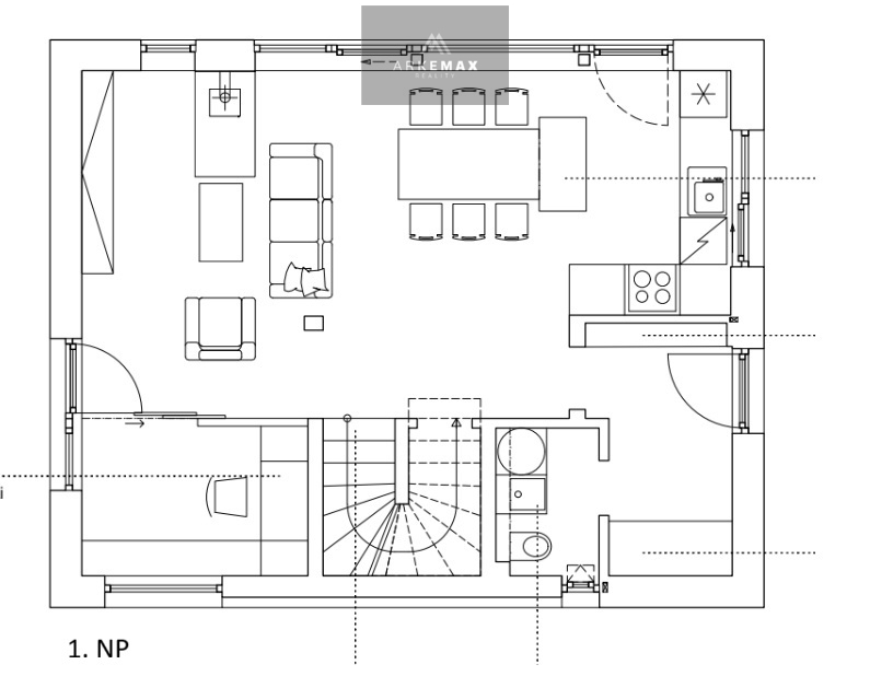
Informace k domu

Nabízíme k pronájmu vybavenou a energeticky velmi úspornou patrovou dřevostavebu. K přednostem určitě patří logické vnitřní uspořádání a dostatek úložných prostor vše na necelých 100 m² užitné plochy, tak aby byl zachován prostor pro venkovní využití zahrada.

Nízkoenergetickému a úspornému provozu je uzpůsobený celý projekt domu od základní koncepce po skladbu obvodových stěn.

Koupelna
navržena s důrazem na kvalitu a eleganci. Velkoformátové značkové obklady a dlažby dodávají prostorám moderní vzhled – na podlaze ve formátu 60 x 60 cm, na stěnách 120 x 60 cm. Sanitární keramika od firmy Sapho zaručuje prvotřídní komfort, zatímco baterie Grohe přinášejí spolehlivost a precizní design. Každý detail je pečlivě vybrán tak, aby koupelna splňovala nejvyšší standardy kvality a pohodlí.

Fasáda
Provětrávaná fasáda ze severského modřínu zajišťuje, že nedochází k problémům s vlhkostí a přispívá k dlouhodobé životnosti stavby. Toto perfektně zapadá do rázu okolí. Části fasády doplňuje také fasádní omítka, která dotváří moderní vzhled domu. Kombinace těchto materiálů zajišťuje nejen atraktivní design, ale i funkčnost.

Okna
Velkoformátová dřevo/hliník okna s trojitým zasklením

Tepelné čerpadlo, rekuperace, klimatizace
Dům je vybaven tepelným čerpadlem vzduch/voda od firmy LG, které zajistí nízkoenergetickou náročnost provozu. Díky tomuto modernímu systému získáte ekologický a úsporný způsob vytápění celého domu. Komfort podlahového vytápění, které je rozvedeno v celém domě, poskytuje rovnoměrné a příjemné teplo. V koupelně je navíc umístěn topný žebřík s elektrickou topnou vložku, což umožňuje kombinované vytápění. Tím je zajištěn maximální komfort a příjemná teplota i v chladnějších měsících, aniž by bylo nutné dělat kompromisy.

Terasy
Navržené terasy jsou velkorysým prodloužením obytného prostoru směrem do zahrady.

Objekty jsou napojen na veřejnou splaškovou a dešťovou kanalizaci, síť elektro, optický internet.

Dostupnost letiště - 5 min, Ostrava 20 minut.

K nastěhování 02- 03/2026, nebo dle domluvy.

Parametry domu

Cena
40 000 Kč /za měsíc
Poznámka k ceně
Kauce 80 000,- Kč, nájem se platí předem, v ceně nejsou zálohy na studenou vodu a elektřinu
Aktualizováno
28. 11. 2025
Adresa
Petřvald 1-Petřvald
ID
0197
Stavba
Dřevěná
Stav objektu
Novostavba
Vybaveno
Částečně
Typ objektu
Patrový
Druh objektu
Samostatný
Lokalita objektu
Klidná část obce
Užitná plocha
100 m2
Zastavěná plocha
100 m2
Plocha pozemku
1084 m2
Plocha zahrady
984 m2
Třída energetické náročnosti
B - Velmi úsporná
Ukazatel energetické náročnosti
79 kWh/m2 za rok
Elektřina
230V
Odpad
Veřejná kanalizace
Komunikace
Zpevněná, Štěrková
Telekomunikace
Internet
Doprava
Dálnice, Silnice, MHD, Autobus
Voda
Vodovod, Retenční nádrž na dešt’ovou vodu
Bezbarierový přístup
Převod do OV
Nízkoenergetický

Kontaktovat makléře

Máte zájem o tento dům?

Tímto, v souladu s nařízením Evropského parlamentu a Rady (EU) 2016/679, v platném znění, prohlašuji, že mi je alespoň 16 let a uděluji tak svůj souhlas se zpracováním zadaných údajů (jméno, telefon, e-mail, ip adresa) společnosti B3 Technology, s.r.o., IČ: 07330600, se sídlem Novostavby 126/23, 435 11 Lom (správce dat), za účelem předání dotazu z tohoto formuláře Vámi vybranému inzerentovi a zpětného kontaktování mé osoby. Osobní údaje bude správce zpracovávat manuálně i automaticky přímo prostřednictvím svých zaměstnanců. Informace předané tímto formulářem budou uloženy v databázi správce maximálně po dobu 10 let. Odvolání souhlasu s uložením a zpracováním poskytnutých dat lze e-mailem na info@bydlisnami.cz. V případě podezření na neoprávněné použití Vámi poskytnutých údajů máte právo předat podnět k šetření Úřadu pro ochranu osobních údajů. Více informací
Chystáte se prodat nemovitost?
Pomůžeme Vám!

Inzerát si prohlédlo 0 lidí

Prodejce

Ing. Ivo Kurtas

Ing. Ivo Kurtas

Hlídací pes

Chcete dostávat emailem podobné nabídky pronájmu rodinných domů v Petřvaldě (okr. Nový Jičín)?

Podobné nemovitosti