Prodej bytu 3+kk, Praha - Josefov, Dušní, 94 m2

Dušní, Praha, Josefov

1 Kč /za nemovitost HYPOTÉKA od 0 Kč /za měsíc
Doporučené firmy v Praze 1

Stěhovací služby

Výkup a prodej starého nábytku

Informace k bytu

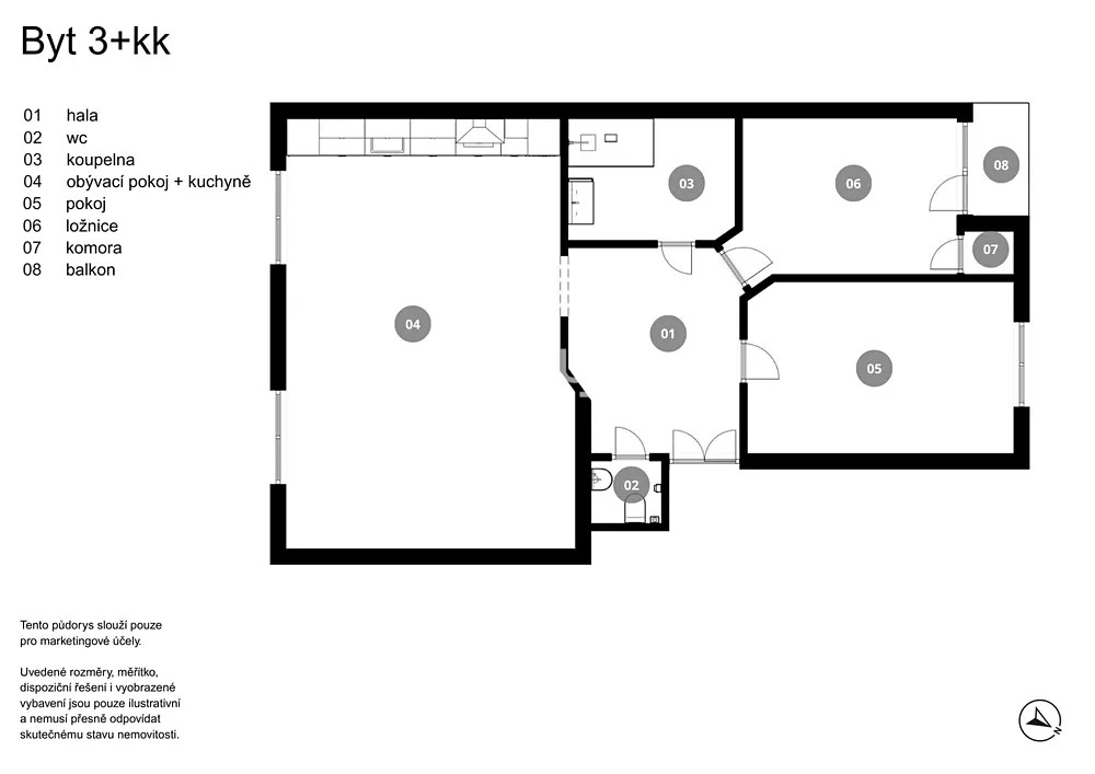
Nabízíme k prodeji prostorný byt 3+kk o rozloze téměř 94 m² v pátém patře secesního domu s výtahem. Nemovitost prošla kompletní rekonstrukcí a nabízí velkorysý obývací pokoj propojený s kuchyní a jídelnou, dvě ložnice, koupelnu, samostatné WC, komoru a vstupní halu. Hlavní obytný prostor je orientován na východ do ulice s výhledem na Španělskou synagogu, ložnice směřují na západ do tichého vnitrobloku, přičemž z menší z nich je vstup na balkón.


Celý byt prošel kvalitní rekonstrukcí s důrazem na moderní design a funkčnost. Podlahy tvoří masivní dubové parkety, mezi místnostmi jsou osazeny elegantní bezfalcové dveře s designovými černými klikami, které harmonicky ladí s tmavými radiátory. Kuchyňská linka v matném antracitovém provedení je vybavena vestavnými spotřebiči značky AEG. Stylová koupelna nabízí prostorný walk-in sprchový kout, dvojumyvadlo s podsvíceným zrcadlem a skříň s pračkou a sušičkou. Vytápění zajišťuje plynový kotel Buderus, okna jsou původní dřevěná špaletová.


Byt je nabízen plně vybavený.


Byt se nachází v prestižní čtvrti Josefov, v klidné boční ulici souběžné s luxusní Pařížskou třídou, pouhých pár kroků od Staroměstského náměstí. Tato historická lokalita nabízí jedinečnou atmosféru s bohatým kulturním vyžitím – v bezprostředním okolí najdete Španělskou synagogu, Rudolfinum, Anežský klášter s jeho historickými zahradami, galerie, koncertní síně i širokou škálu vyhlášených restaurací a kaváren. Nechybí zde ani kompletní občanská vybavenost včetně základních i středních škol, lékařských ordinací, bank a kvalitních obchodů. Odpočinek nabízí klidné Alšovo nábřeží s výhledem na Vltavu nebo nedaleké Letenské sady. Dopravní dostupnost je výborná – stanice metra Staroměstská je vzdálená jen několik minut chůze, tramvajové zastávky v okolí pak zajišťují rychlé spojení do všech částí Prahy.

Parametry bytu

Cena
1 Kč /za nemovitost Spočítat hypotéku
Aktualizováno
30. 4. 2026
Adresa
Dušní, Praha, Josefov
ID
532884
Stavba
Cihlová
Stav objektu
Po rekonstrukci
Patro
5. z 6
Vybaveno
Ano
Vlastnictví
Osobní
Užitná plocha
94 m2
Třída energetické náročnosti
G - Mimořádně nehospodárná
Balkon
Výtah
Převod do OV

Kontaktovat makléře

Máte zájem o tento byt?

Tímto, v souladu s nařízením Evropského parlamentu a Rady (EU) 2016/679, v platném znění, prohlašuji, že mi je alespoň 16 let a uděluji tak svůj souhlas se zpracováním zadaných údajů (jméno, telefon, e-mail, ip adresa) společnosti B3 Technology, s.r.o., IČ: 07330600, se sídlem Novostavby 126/23, 435 11 Lom (správce dat), za účelem předání dotazu z tohoto formuláře Vámi vybranému inzerentovi a zpětného kontaktování mé osoby. Osobní údaje bude správce zpracovávat manuálně i automaticky přímo prostřednictvím svých zaměstnanců. Informace předané tímto formulářem budou uloženy v databázi správce maximálně po dobu 10 let. Odvolání souhlasu s uložením a zpracováním poskytnutých dat lze e-mailem na info@bydlisnami.cz. V případě podezření na neoprávněné použití Vámi poskytnutých údajů máte právo předat podnět k šetření Úřadu pro ochranu osobních údajů. Více informací
Chystáte se prodat nemovitost?
Pomůžeme Vám!

Inzerát si prohlédlo 11 lidí

Prodejce

Adéla Bukovská - recepce

Adéla Bukovská - recepce

Hlídací pes

Chcete dostávat emailem podobné nabídky prodeje bytů 3+kk v Praze 1?

Podobné nemovitosti