Dražba bytu 2+1, Brno, Purkyňova, 48 m2

Purkyňova, Brno, Královo Pole

4 050 000 Kč /za nemovitost Získejte výhodnou HYPOTÉKU
Doporučené firmy v Brně

Informace k bytu

Předmětem dražby je nemovitá věc a její příslušenství ve vlastnictví statutárního města Brna, ve správě ÚMČ Brno – Královo Pole:

- volná bytová jednotka č. 1911/5 vymezená podle zákona č. 72/1994 Sb., o vlastnictví bytů, v budově č. p. 1910, 1911, 1912, 2517, Purkyňova 1, 3, 5, 7, Brno, postavené na pozemcích p. č. 3717/1, p. č. 3719, p. č. 3721, p. č. 3722, včetně spoluvlastnického podílu o velikosti 4768/114674 na společných částech této budovy a pozemcích p. č. 3717/1 – zastavěná plocha a nádvoří o výměře 136 m², p. č. 3719 – zastavěná plocha a nádvoří o výměře 133 m², p. č. 3721 – zastavěná plocha a nádvoří o výměře 134 m² a p. č. 3722 – zastavěná plocha a nádvoří o výměře 137 m², vše k. ú. Královo Pole, obec Brno, okres Brno-město.

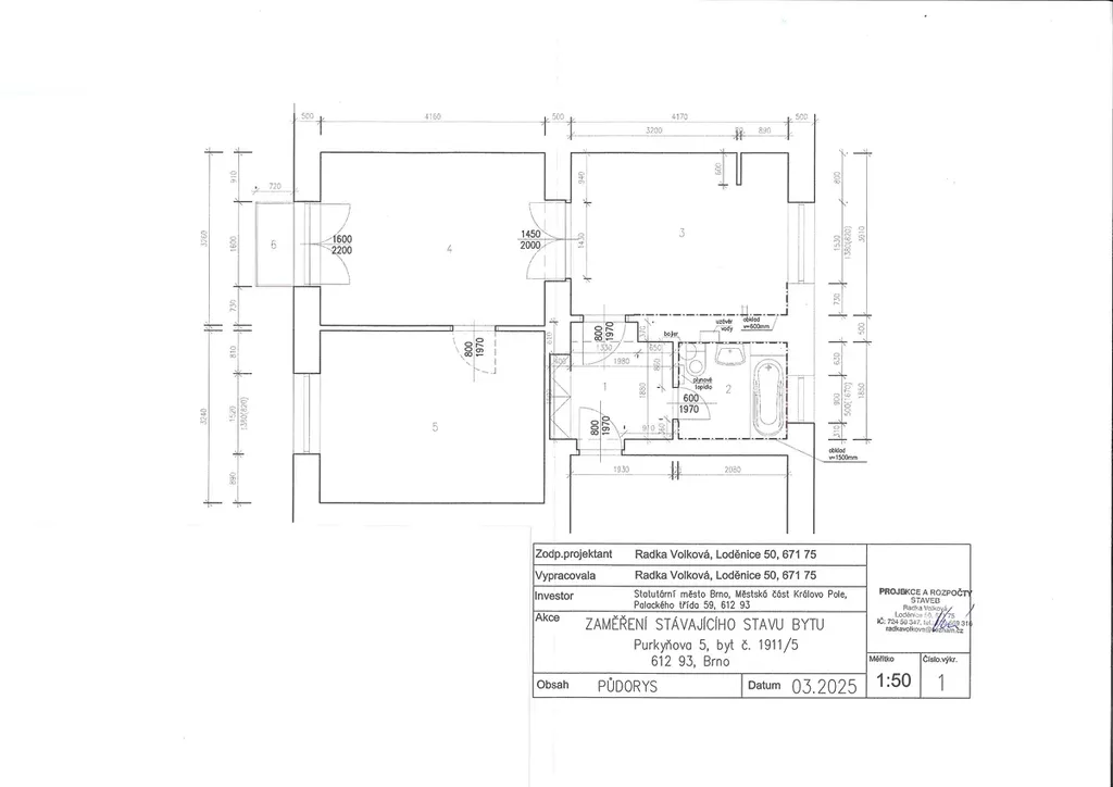
Jedná se o bytovou jednotku 2+1 o celkové výměře 47.68 m²(dle prohlášení vlastníka nemovité věci). Jednotka je situována ve 3. NP přístupná vchodem Purkyňova 5, Brno. Bytová jednotka sestává z dvou pokojů (13,63 m² a 13,67 m²), kuchyně (11,90 m²), předsíně (4,10 m²), koupelny s WC (3,90 m²). Kuchyň je vybavena kombinovaným sporákem. Koupelna je společná s WC, má zděné bytové jádro a větrací ventilační okno. Dvě sklepní kóje (5,05 a 0,89 m2) jsou umístěny mimo byt v 1. PP a do plochy bytu se nezapočítávají, stejně jako balkon (0,84 m²).

V bytě je umístěn kombinovaný kotel na vytápění a ohřev TUV, instalace není dokončena – chybí rozvody po bytě. Byt má zjevné vady a je určený k rekonstrukci. Je třeba obnovit omítky a malby, podlahy, rozvody topení.

Dům, v němž se jednotka nachází, byl vystavěn kolem roku 1950, má 3 nadzemní podlaží, 1 podzemní podlaží a sedlovou střechu s půdním prostorem. Dům je samostatně stojící, situovaný podél ulice Purkyňova. Dům má 4 vchody. Dům je průchozí podzemním podlaží, kde jsou umístěné sklepní a společné prostory.

V domě proběhla v nedávných letech oprava střechy a výměna střešní krytiny, oprava stupaček a elektro rozvodů ve společných prostorách. SVJ nemá žádný úvěr, příspěvek do fondu oprav činí 2 384 Kč / měsíčně.

Dům se nachází v bezprostřední blízkosti zastávky MHD.

Podrobný popis stavu nemovité věci je uveden ve znaleckém posudku č.03721/2025 ze dne 6.5.2025 zpracovaného Ing. Janem Zámečníkem.

Prohlídky:
1. prohlídka dne 14.1.2026 v 10:00 hod.
2. prohlídka dne 20.1.2026 ve 14:00 hod.

Sraz účastníků prohlídky: před domem Purkyňova 1911/5, Brno
Na prohlídky není nutné se hlásit předem.

Veškeré další podrobnosti k dražbě najdete v dražební vyhlášce.

Parametry bytu

Cena
4 050 000 Kč /za nemovitost
Aktualizováno
4. 12. 2025
Adresa
Purkyňova, Brno, Královo Pole
Stavba
Cihlová
Stav objektu
Dobrý
Patro
3.
Vlastnictví
Státní/obecní
Užitná plocha
48 m2

Kontaktovat makléře

Máte zájem o tento byt?

Tímto, v souladu s nařízením Evropského parlamentu a Rady (EU) 2016/679, v platném znění, prohlašuji, že mi je alespoň 16 let a uděluji tak svůj souhlas se zpracováním zadaných údajů (jméno, telefon, e-mail, ip adresa) společnosti B3 Technology, s.r.o., IČ: 07330600, se sídlem Novostavby 126/23, 435 11 Lom (správce dat), za účelem předání dotazu z tohoto formuláře Vámi vybranému inzerentovi a zpětného kontaktování mé osoby. Osobní údaje bude správce zpracovávat manuálně i automaticky přímo prostřednictvím svých zaměstnanců. Informace předané tímto formulářem budou uloženy v databázi správce maximálně po dobu 10 let. Odvolání souhlasu s uložením a zpracováním poskytnutých dat lze e-mailem na info@bydlisnami.cz. V případě podezření na neoprávněné použití Vámi poskytnutých údajů máte právo předat podnět k šetření Úřadu pro ochranu osobních údajů. Více informací
Chystáte se prodat nemovitost?
Pomůžeme Vám!

Inzerát si prohlédlo 5 lidí

Prodejce

Bc. Jana Hradilová

Bc. Jana Hradilová

Hlídací pes

Chcete dostávat emailem podobné nabídky dražby bytů 2+1 v Brně?