Prodej bytu 1+kk, Štěnovice, Čižická, 27 m2

Čižická, Štěnovice

2 790 000 Kč /za nemovitost HYPOTÉKA od 12 470 Kč /za měsíc
Doporučené firmy v Štěnovicích

Podlahy

Stěhovací služby

Informace k bytu

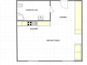
Nabízíme k prodeji garsoniéru o velikosti 26,9 m2 v cihlovém bytovém domě v obci Štěnovice s vlastním parkovacím stáním přímo před domem.
Bytová jednotka se nachází v 2.NP ze 4 NP malého bytového domu. Byt sestává z obývacího pokoje s kuchyňským koutem, předsíně, koupelny a WC. K bytu náleží i sklep v přízemí domu a jedno venkovní parkovací stání v uzavřeném dvoře se zahradou.

Byt je vybavený kuchyňskou linkou, ledničkou a digestoří.
Koupelna disponuje sprchovým koutem, WC a umyvadlem. Ohřev vody zajištuje el. bojler a vytápění pak plynové těleso WAW. Podlahy jsou plovoucí v kombinaci s dlažbou.

Dům je starý 20 let, jsou zde plastová okna, má vlastní kamerový systém, disponuje kolárnou a sušárnou. Vjezd do rezidenčního areálu je zabezpečen závorou.

Naše hodnocení: bezvadný stav bytu i domu, velké společné prostory k užívání, vlastní parkovací stání, krásný byt v klidné lokalitě s výbornou dojezdovou vzdáleností do Plzně. Doporučujeme pro vlastní bydlení i jako investici na pronájem.

Parametry bytu

Cena
2 790 000 Kč /za nemovitost Spočítat hypotéku
Aktualizováno
6. 12. 2025
Adresa
Čižická, Štěnovice
ID
233
Stavba
Cihlová
Stav objektu
Velmi dobrý
Patro
2. z 4
Lokalita objektu
Klidná část obce
Vlastnictví
Osobní
Užitná plocha
27 m2
Podlahová plocha
27 m2
Třída energetické náročnosti
C - Úsporná
Elektřina
230V
Plyn
Plynovod
Odpad
Veřejná kanalizace
Topení
Lokální plynové
Komunikace
Asfaltová
Telekomunikace
Internet
Doprava
Silnice, MHD, Autobus
Voda
Vodovod
Topné těleso
WAW
Zdroj topení
Plynový kotel
Zdroj teplé vody
Bojler - elektro
Sklep
Výtah
Bezbarierový přístup
Parkování

Kontaktovat makléře

Máte zájem o tento byt?

Tímto, v souladu s nařízením Evropského parlamentu a Rady (EU) 2016/679, v platném znění, prohlašuji, že mi je alespoň 16 let a uděluji tak svůj souhlas se zpracováním zadaných údajů (jméno, telefon, e-mail, ip adresa) společnosti B3 Technology, s.r.o., IČ: 07330600, se sídlem Novostavby 126/23, 435 11 Lom (správce dat), za účelem předání dotazu z tohoto formuláře Vámi vybranému inzerentovi a zpětného kontaktování mé osoby. Osobní údaje bude správce zpracovávat manuálně i automaticky přímo prostřednictvím svých zaměstnanců. Informace předané tímto formulářem budou uloženy v databázi správce maximálně po dobu 10 let. Odvolání souhlasu s uložením a zpracováním poskytnutých dat lze e-mailem na info@bydlisnami.cz. V případě podezření na neoprávněné použití Vámi poskytnutých údajů máte právo předat podnět k šetření Úřadu pro ochranu osobních údajů. Více informací
Chystáte se prodat nemovitost?
Pomůžeme Vám!

Inzerát si prohlédlo 23 lidí

Prodejce

Vladislav Štrbáň

Vladislav Štrbáň

Hlídací pes

Chcete dostávat emailem podobné nabídky prodeje bytů 1+kk v Štěnovicích?

Podobné nemovitosti