Prodej bytu 2+kk, Praha - Radlice, U Komína, 45 m2

U Komína, Praha 5 - Radlice

9 998 950 Kč HYPOTÉKA od 44 689 Kč /za měsíc

(včetně provize RK)

Doporučené firmy v Praze

Stěhovací služby

Výkup a prodej starého nábytku

Informace k bytu

Novostavba 2+KK 49m² s lodžií, garážovým stáním a sklepem - Semerinka (Praha Radlice)

Ať hledáte startovací byt nebo chytrou investiční příležitost, pak tato nabídka Vás jistě osloví. Dispozice 2+KK téměř u metra je pro oba účely tou nejvhodnější.

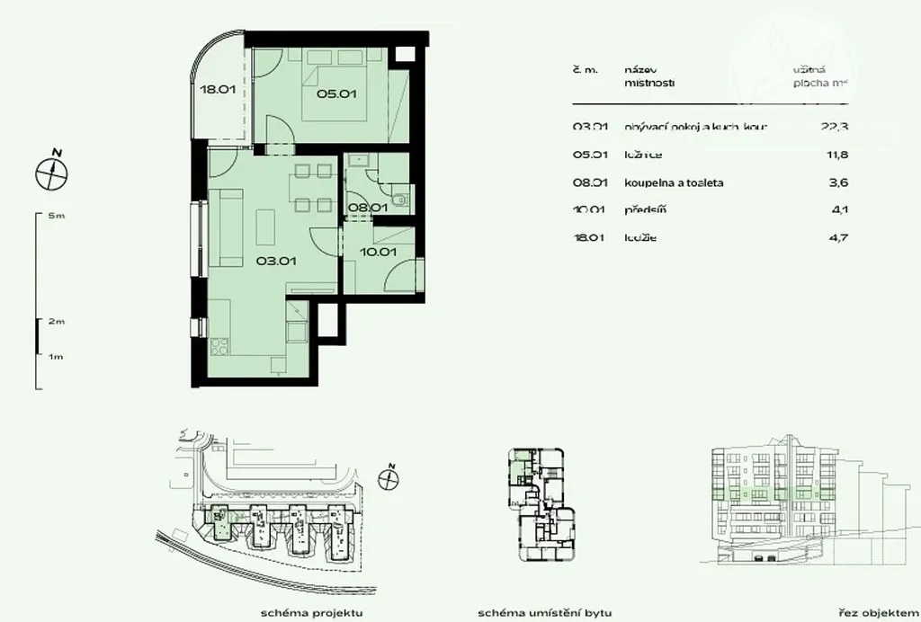
Nabízíme k prodeji dispozičně velmi praktický byt 2+KK v právě finišujícím úspěšném projektu Semerinka od uznávaného developera Crestyl. Právě probíhá kolaudační proces a ve velmi krátké době budou byty předávány novým majitelům. Můžete tedy zkrátit čekání na výstavbu Vašeho nového bytu v developerském projektu a pořídit si takový byt těsně před nastěhováním. K tomuto navíc již dostáváte v ceně také parkovací stání pro Vaše vozidlo a praktický sklep pro uložení sezónních věcí - obojí chytře pro praktičnost vedle sebe, což je obrovská přidaná hodnota v novostavbě. Velmi chytře řešenou pozici můžete vidět na přiloženém půdorysu.

Severozápadní orientace oken a velkoformátová okna v kombinaci s 4. NP, ve kterém se byt nachází, zaručují dostatek denního světla a stále ještě pěkné nerušené výhledy na Prahu nejen z lodžie, ale ze všech oken Vašeho bytu.

Byt zhotoven ve vysokém standardu projektu Semerinka, tedy v základu již dostáváte:
- úspornou novostavbu s PENB "B"
- kvalitní izolační velkoformátová okna
- podlahové vytápění ve všech obytných místnostech
- dřevěné plovoucí podlahy v obývací části a ložnici
- decentní a moderní obklady a dlažby
- inteligentní systémy řízení a rekuperaci vzduchu
- bezpečnostní vstupní dveře (T3)
- kamerový systém v domě a vlastní recepci

A navíc také velmi kvalitní zpracování a použití moderních a prémiových materiálů uznávaného developera.

Byt se prodává bez kuchyňské linky a vybavení nábytkem (můžete si zařídit přesně podle sebe). Pro ilustraci a inspiraci jsme Vám do fotografií připravili řadu vizualizací. Reálné fotografie v horší kvalitě (bez úprav) posíláme pouze přímým zájemcům.

V bezprostřední blízkosti domu naleznete veškerou občanskou vybavenost sportoviště a pro snadnou dopravu je stanice metra B Radlická pár minut od domu (popřípadě autobusové zastávky i vlakové spojení Na Knížecí/Smíchov nedaleko). Tato vyhledávaná a velmi rychle se rozvíjejí lokalita ovšem nabízí i velké množství zeleně, parků a míst pro relaxaci.

Tento byt představuje skvělou příležitost jak pro vlastní bydlení, tak i pro investici. Na prohlídku se objednávejte pomocí formuláře níže nebo mi zavolejte či napište.

Doporučuji osobní prohlídku. Budu se těšit na viděnou.

Parametry bytu

Cena
9 998 950 Kč Spočítat hypotéku
Poznámka k ceně
včetně provize RK
Aktualizováno
12. 12. 2025
Adresa
U Komína, Praha 5 - Radlice
ID
0301
Stavba
Cihlová
Vybaveno
Ne
Lokalita objektu
Klidná část obce
Vlastnictví
Osobní
Užitná plocha
45 m2
Třída energetické náročnosti
B - Velmi úsporná

Kontaktovat makléře

Máte zájem o tento byt?

Tímto, v souladu s nařízením Evropského parlamentu a Rady (EU) 2016/679, v platném znění, prohlašuji, že mi je alespoň 16 let a uděluji tak svůj souhlas se zpracováním zadaných údajů (jméno, telefon, e-mail, ip adresa) společnosti B3 Technology, s.r.o., IČ: 07330600, se sídlem Novostavby 126/23, 435 11 Lom (správce dat), za účelem předání dotazu z tohoto formuláře Vámi vybranému inzerentovi a zpětného kontaktování mé osoby. Osobní údaje bude správce zpracovávat manuálně i automaticky přímo prostřednictvím svých zaměstnanců. Informace předané tímto formulářem budou uloženy v databázi správce maximálně po dobu 10 let. Odvolání souhlasu s uložením a zpracováním poskytnutých dat lze e-mailem na info@bydlisnami.cz. V případě podezření na neoprávněné použití Vámi poskytnutých údajů máte právo předat podnět k šetření Úřadu pro ochranu osobních údajů. Více informací
Chystáte se prodat nemovitost?
Pomůžeme Vám!

Inzerát si prohlédlo 1 lidí

Prodejce

Michal Kopejtko

Michal Kopejtko

Hlídací pes

Chcete dostávat emailem podobné nabídky prodeje bytů 2+kk v Praze?

Podobné nemovitosti