Prodej bytu 3+kk, Dolní Branná, 58 m2

Dolní Branná, okres trutnov

4 448 000 Kč /za nemovitost HYPOTÉKA od 19 880 Kč /za měsíc

(Parkovací stání lze koupit za 150 000, Kč)

Doporučené firmy v Dolní Branné

Informace k bytu

Prodej bytu 3+kk v Podkrkonošší – Dolní Branná

Hledáte stylové a úsporné bydlení v klidné lokalitě s výbornou dostupností do města? Pak vás jistě zaujme tento byt v novém projektu Byty v Dolní Branné, pouhých 5 minut jízdy od Vrchlabí!

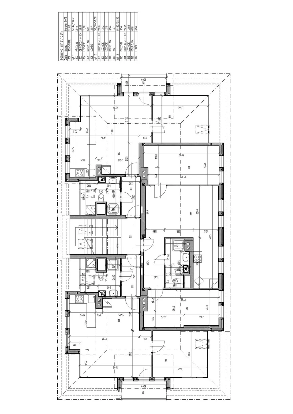
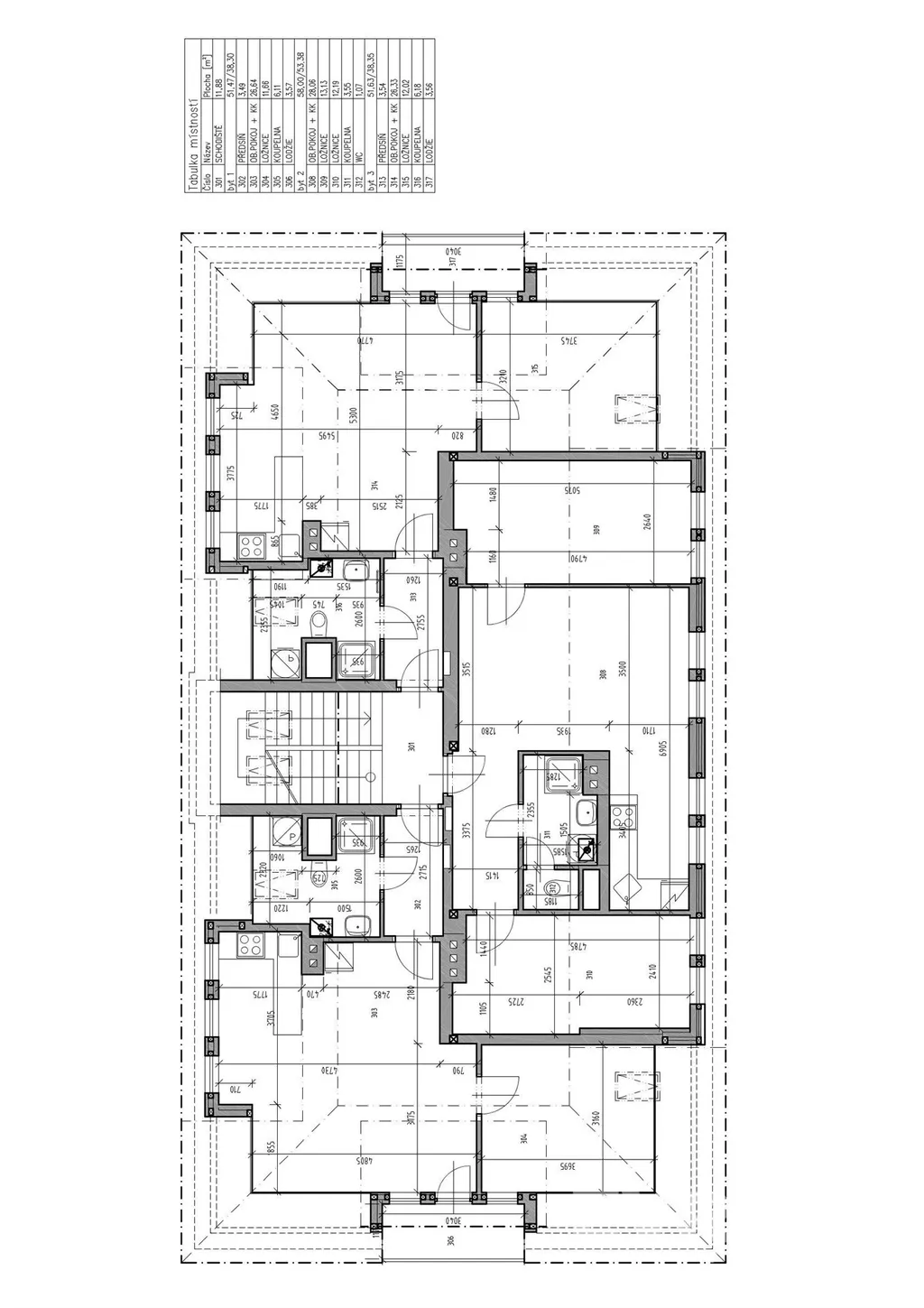
Byt o dispozici 3+kk a výměře 58 m² se nachází ve zcela zrekonstruovaném cihlovém domě se třemi nadzemními podlažími. Tento byt se nachází v podkroví domu. Projekt je navržen s důrazem na kvalitu, moderní design a energetickou efektivitu (třída PENB B).

Co vám tento byt nabízí:

Světlý obývací pokoj s přípravou na kuchyňskou linku

Pohodlnou ložnici s dostatkem prostoru pro skříně i postel

Dětský pokoj / pracovnu

Stylovou koupelnu s moderním vybavením

Velký sklep – ideální pro úložné prostory, hobby nebo dílnu

Vyhrazené parkovací místo přímo u domu

Možnost využití zahrady – pro relax, grilování nebo pěstování

Perfektní lokalita pro aktivní i klidný život:

Dolní Branná nabízí harmonii přírody a občanské vybavenosti – mateřská a základní škola, obchod, pošta, autobus i vlak jsou v docházkové vzdálenosti. Města Vrchlabí a Jilemnice pak doplňují vše ostatní – lékaři, restaurace, sportoviště i pracovní příležitosti.
Milovníci sportu a přírody ocení bohaté možnosti turistiky, cyklistiky, běžek, lyžování i relaxace.
Termín dokončení: září 2025

Byt je vhodný jak pro vlastní bydlení, tak jako investice na pronájem.

Zajistěte si svůj nový domov v podhůří Krkonoš – spojení přírody, komfortu a dostupnosti, které jen tak nenajdete.

Kontaktujte nás pro více informací nebo domluvení prohlídky!

Parametry bytu

Cena
4 448 000 Kč /za nemovitost Spočítat hypotéku
Poznámka k ceně
Parkovací stání lze koupit za 150 000, Kč
Aktualizováno
23. 1. 2026
Adresa
Dolní Branná, okres trutnov
ID
970414
Stavba
Cihlová
Stav objektu
Novostavba
Patro
3. z 4
Vlastnictví
Osobní
Užitná plocha
58 m2
Podlahová plocha
58 m2
Třída energetické náročnosti
C - Úsporná
Elektřina
230V
Plyn
Plynovod
Odpad
ČOV pro celý objekt
Topení
Lokální plynové
Doprava
Vlak, Silnice
Voda
Vodovod
Sklep
Výtah
Parkování

Kontaktovat makléře

Realitní kancelář

Logo EVROPA realitní kancelář

EVROPA realitní kancelář

Václavské náměstí 806/62, Praha

Chystáte se prodat nemovitost?
Pomůžeme Vám!

Máte zájem o tento byt?

Tímto, v souladu s nařízením Evropského parlamentu a Rady (EU) 2016/679, v platném znění, prohlašuji, že mi je alespoň 16 let a uděluji tak svůj souhlas se zpracováním zadaných údajů (jméno, telefon, e-mail, ip adresa) společnosti B3 Technology, s.r.o., IČ: 07330600, se sídlem Novostavby 126/23, 435 11 Lom (správce dat), za účelem předání dotazu z tohoto formuláře Vámi vybranému inzerentovi a zpětného kontaktování mé osoby. Osobní údaje bude správce zpracovávat manuálně i automaticky přímo prostřednictvím svých zaměstnanců. Informace předané tímto formulářem budou uloženy v databázi správce maximálně po dobu 10 let. Odvolání souhlasu s uložením a zpracováním poskytnutých dat lze e-mailem na info@bydlisnami.cz. V případě podezření na neoprávněné použití Vámi poskytnutých údajů máte právo předat podnět k šetření Úřadu pro ochranu osobních údajů. Více informací
Chystáte se prodat nemovitost?
Pomůžeme Vám!

Inzerát si prohlédlo 13 lidí

Prodejce

Lubor Karásek

Lubor Karásek

Hlídací pes

Chcete dostávat emailem podobné nabídky prodeje bytů 3+kk v Dolní Branné?

Podobné nemovitosti