Prodej komerčního pozemku, Kladno, Dubská, 272 m2

Dubská, Kladno

1 650 000 Kč /za nemovitost HYPOTÉKA od 7 375 Kč /za měsíc

(Včetně provize RK a kompletního právního servisu.)

Doporučené firmy v Kladně

Informace k pozemku

Prodej obchod a služby, 26 m², Kladno, ul. Dubská

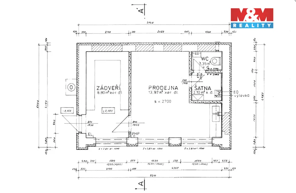
Nabízíme k prodeji jedinečnou komerční nemovitost v rušné části obce Dubí u Kladna. Tato stavba bez čísla popisného i evidenčního se nachází na pozemku o rozloze 272 m² a je ideální pro podnikatelské záměry. Objekt je připraven pro kolaudaci na prodejnu, ale jeho využití je mnohem širší – může sloužit jako prodejna, výrobní prostor, garáž či jiné podnikatelské aktivity dle vašeho nápadu. Nemovitost s užitnou plochou 26 m² je přízemní a její stav je hodnocen jako dobrý. Výborná lokalita v rušné části obce což je ideální pro podnikání. Nepropásněte tuto příležitost a přijďte se přesvědčit o potenciálu této nemovitosti.

Parametry pozemku

Cena
1 650 000 Kč /za nemovitost Spočítat hypotéku
Poznámka k ceně
Včetně provize RK a kompletního právního servisu.
Aktualizováno
15. 12. 2025
Adresa
Dubská, Kladno
ID
928561
Stav objektu
Dobrý
Vybaveno
Ne
Lokalita objektu
Rušná část obce
Vlastnictví
Osobní
Plocha pozemku
272 m2

Kontaktovat makléře

Realitní kancelář

Logo M&M reality

M&M reality

ulice Krakovská 583/9, Praha

Chystáte se prodat nemovitost?
Pomůžeme Vám!

Máte zájem o tento pozemek?

Tímto, v souladu s nařízením Evropského parlamentu a Rady (EU) 2016/679, v platném znění, prohlašuji, že mi je alespoň 16 let a uděluji tak svůj souhlas se zpracováním zadaných údajů (jméno, telefon, e-mail, ip adresa) společnosti B3 Technology, s.r.o., IČ: 07330600, se sídlem Novostavby 126/23, 435 11 Lom (správce dat), za účelem předání dotazu z tohoto formuláře Vámi vybranému inzerentovi a zpětného kontaktování mé osoby. Osobní údaje bude správce zpracovávat manuálně i automaticky přímo prostřednictvím svých zaměstnanců. Informace předané tímto formulářem budou uloženy v databázi správce maximálně po dobu 10 let. Odvolání souhlasu s uložením a zpracováním poskytnutých dat lze e-mailem na info@bydlisnami.cz. V případě podezření na neoprávněné použití Vámi poskytnutých údajů máte právo předat podnět k šetření Úřadu pro ochranu osobních údajů. Více informací
Chystáte se prodat nemovitost?
Pomůžeme Vám!

Inzerát si prohlédlo 1 lidí

Prodejce

Ing. Martin Klufa

Ing. Martin Klufa

Hlídací pes

Chcete dostávat emailem podobné nabídky prodeje komerčních pozemků v Kladně?

Podobné nemovitosti