Prodej chaty, Český Brod, Zahrady, 138 m2 (ID: 2502774)

Zahrady, Český Brod

Doporučené firmy v Českém Brodu

Informace k domu

Prodej chaty 138 m² s pozemkem 965 m² + terasa 12 m²

Hledáte chatu s excelentní dostupností z Prahy (vlakem jste tu za cca 30 minut), kde můžete okamžitě začít relaxovat a postupně si ji předělat podle sebe?

Tohle je přesně ta nemovitost. Nabízíme prostornou chatu s číslem popisným 4+kk s užitnou plochou 138 m² a velkorysým pozemkem (téměř 1000 m²), která je sice ihned obyvatelná, ale potřebuje modernizaci. Její nízká cena plně zohledňuje investici do budoucí rekonstrukce.
Kde se nachází?

Na klidné ulici na kraji Českého Brodu v oblíbené rekreační lokalitě Zahrady. Lokalita je magnetem pro ty, kteří mají rádi přírodu: rybníky, lesy plné hub a cyklostezky jsou doslova za rohem.
Co je potřeba vědět (realita vs. potenciál):
Stav: Chata je funkční, vytápěná krbem na dřevo a elektrickým kotlem. Nečekejte úplnou voňavku, ale získáte ale čistý základ, na kterém můžete stavět.

Zahrada: Téměř tisíc metrů ve svahu nabízí kouzelný výhled do krajiny – ideální místo pro ranní kávu. Počítejte ale s tím, že údržba svahu vyžaduje jistou míru zahradnického nadšení.
Bonus: K dispozici je krytý bazén s posuvným zastřešením. Je starší a vyžaduje kontrolu a údržbu, ale představuje úžasný potenciál pro letní dny.
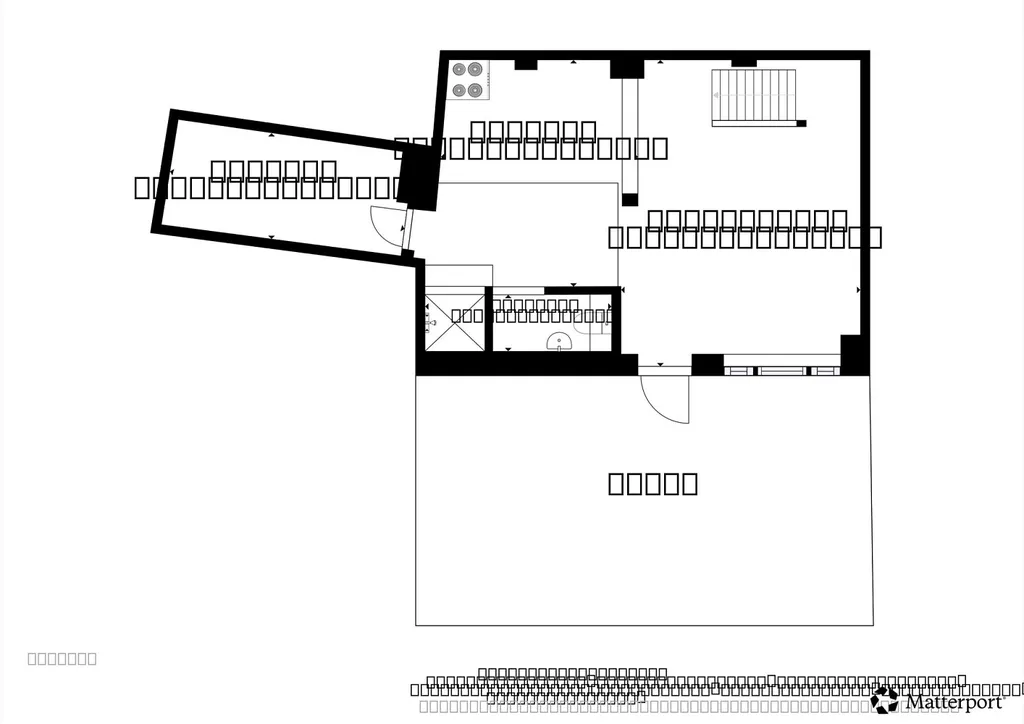
Dispozice: 4+1, dvě koupelny a tři WC).

Jedná se o chatu s číslem popisným, kde je nutné zohlednit stav odpovídající nízké ceně. Ale odměnou je klid a potenciál, který jinde za tuto cenu nenajdete. Financování hypotékou je bez problémů.

Co oceníte:
klidná lokalita bez ruchu, ideální k odpočinku,
velká zahrada ve svahu s kouzelným výhledem,
rybníky kousek od domu, les plný hub a cyklostezky přímo za rohem,
rychlé spojení do Prahy (vlakem i autem),
krb na dřevo,
hluboký bazén s posuvným zastřešením
dvě koupelny, tři wc,
dům ihned obyvatelný, s potenciálem pro rekonstrukci.

Inženýrské sítě
Dům je v připojován na vodovodní řad a je připojena na elektřinu.

Vytápění
Zdrojem vytápění je elektrický kotel s měděným rozvodem do radiátorů. Pro chladné večery je příjemnou alternativou vytápění krbem.

Bazén
Plastový bazén s posuvným přístřeškem a bazénovou technologií v samostatném prostoru.

Tato nemovitost je ideální jako chata pro Pražany, kteří chtějí uniknout z města do přírody, jako rodinný dům pro pár hledající klidné bydlení nebo jako základna pro rybáře a houbaře.

Parametry domu

Cena
4 490 000 Kč Spočítat hypotéku
Aktualizováno
19. 12. 2025
Adresa
Zahrady, Český Brod
ID
A00033
Stavba
Cihlová
Druh objektu
Samostatný
Lokalita objektu
Klidná část obce
Vlastnictví
Osobní
Užitná plocha
138 m2
Zastavěná plocha
80 m2
Plocha pozemku
965 m2
Třída energetické náročnosti
G - Mimořádně nehospodárná

Kontaktovat makléře

Máte zájem o tento dům?

Tímto, v souladu s nařízením Evropského parlamentu a Rady (EU) 2016/679, v platném znění, prohlašuji, že mi je alespoň 16 let a uděluji tak svůj souhlas se zpracováním zadaných údajů (jméno, telefon, e-mail, ip adresa) společnosti B3 Technology, s.r.o., IČ: 07330600, se sídlem Novostavby 126/23, 435 11 Lom (správce dat), za účelem předání dotazu z tohoto formuláře Vámi vybranému inzerentovi a zpětného kontaktování mé osoby. Osobní údaje bude správce zpracovávat manuálně i automaticky přímo prostřednictvím svých zaměstnanců. Informace předané tímto formulářem budou uloženy v databázi správce maximálně po dobu 10 let. Odvolání souhlasu s uložením a zpracováním poskytnutých dat lze e-mailem na info@bydlisnami.cz. V případě podezření na neoprávněné použití Vámi poskytnutých údajů máte právo předat podnět k šetření Úřadu pro ochranu osobních údajů. Více informací
Chystáte se prodat nemovitost?
Pomůžeme Vám!

Inzerát si prohlédlo 0 lidí

Prodejce

hanzlikova@powercouple.cz

hanzlikova@powercouple.cz

Hlídací pes

Chcete dostávat emailem podobné nabídky prodeje chat v Českém Brodu?

Podobné nemovitosti