Prodej bytu 2+kk, Salála, Omán, 47 m2

Salála

153 800 € /za nemovitost
Doporučené firmy

Informace k bytu

V prostředí, kde dny začínají šumem oceánu a skončí až tehdy, když světlo zapadajícího slunce pohladí vaši zahradu, vzniká domov, který přináší lehkost, klid a pocit jistoty. Riviera Residences v Hawana Salalah spojuje mořskou atmosféru, moderní rezortní zázemí a výjimečnou investiční příležitost v jednom.

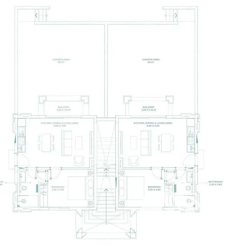
Byt o dispozici 2+kk s podlahovou plochou 54 m² se nachází v přízemí a doplňuje jej soukromá zahrada o rozloze 50 m². Je to místo, kde se můžete probouzet do svěžího mořského vzduchu, trávit odpoledne v zeleni a večer si dopřát výhled na pokojnou hladinu oceánu. Soukromý venkovní prostor i blízkost přírody vytvářejí atmosféru, ve které se žije mimořádně příjemně. Fotografie apartmánu jsou pouze ilustrační!

Komplex Riviera Residences nabízí několik bazénů, udržované zahrady, promenády, kavárny i místa k odpočinku. Pláž je vzdálená pouhé tři minuty chůze a celé prostředí působí jako rezort, ve kterém se čas zpomaluje a každý den má svou vlastní jemnou rytmiku.

Silnou stránkou této nemovitosti je nejen poloha, ale také flexibilní možnost financování. Apartmán lze koupit na splátky s minimální vstupní investicí – stačí složit zálohu 10%, zbytek je rozložen do několika let. Díky tomu si můžete dopřát vlastní domov u moře bez nutnosti vysoké počáteční jednorázové platby.

Pro investory je projekt ještě atraktivnější díky programu garantovaného pronájmu s výnosem až 10% ročně. Freehold vlastnictví a možnost získání obnovitelného rodinného pobytu v Ománu jen podtrhují hodnotu této nabídky.

Významné parametry:

- 54 m² obytné plochy
- 50 m² privátní zahrady
- výhled na moře
- moderní rezortní vybavení
- tři minuty chůze k pláži
- možnost koupě na splátky s 10% akontací
- potenciál výnosu až 10 % ročně

Riviera Residences je místem, kde se propojuje moře, jistota a pohodlí. Pokud vás tato příležitost oslovila, ráda vám poskytnu další informace a postarám se o celý proces – od prvního kroku až po předání klíčů k vašemu novému životu u moře.

Parametry bytu

Cena
153 800 € /za nemovitost
Aktualizováno
19. 12. 2025
Adresa
Salála
ID
F21333
Stavba
Cihlová
Stav objektu
Velmi dobrý
Patro
1. z 2
Vybaveno
Ne
Vlastnictví
Osobní
Užitná plocha
47 m2
Podlahová plocha
54 m2
Elektřina
230V
Doprava
Silnice, Autobus
Voda
Vodovod
Terasa
Parkování

Kontaktovat makléře

Máte zájem o tento byt?

Tímto, v souladu s nařízením Evropského parlamentu a Rady (EU) 2016/679, v platném znění, prohlašuji, že mi je alespoň 16 let a uděluji tak svůj souhlas se zpracováním zadaných údajů (jméno, telefon, e-mail, ip adresa) společnosti B3 Technology, s.r.o., IČ: 07330600, se sídlem Novostavby 126/23, 435 11 Lom (správce dat), za účelem předání dotazu z tohoto formuláře Vámi vybranému inzerentovi a zpětného kontaktování mé osoby. Osobní údaje bude správce zpracovávat manuálně i automaticky přímo prostřednictvím svých zaměstnanců. Informace předané tímto formulářem budou uloženy v databázi správce maximálně po dobu 10 let. Odvolání souhlasu s uložením a zpracováním poskytnutých dat lze e-mailem na info@bydlisnami.cz. V případě podezření na neoprávněné použití Vámi poskytnutých údajů máte právo předat podnět k šetření Úřadu pro ochranu osobních údajů. Více informací
Chystáte se prodat nemovitost?
Pomůžeme Vám!

Inzerát si prohlédlo 1 lidí

Prodejce

Angelina Vasileva

Angelina Vasileva

Hlídací pes

Chcete dostávat emailem podobné nabídky prodeje bytů 2+kk?

Podobné nemovitosti