Prodej bytu 1+kk, Nymburk, Letců R. A. F., 40 m2

Letců R. A. F., Nymburk

3 550 000 Kč /za nemovitost HYPOTÉKA od 15 866 Kč /za měsíc

(Včetně provize a právních služeb)

Doporučené firmy v Nymburku

Informace k bytu

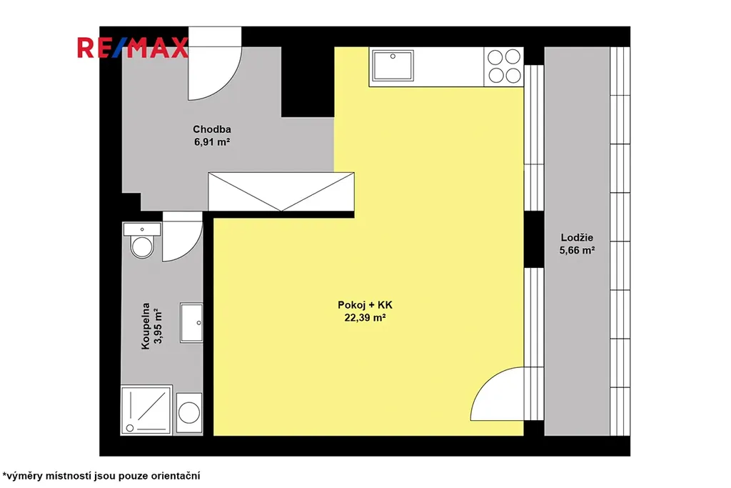
Dovoluji si Vám nabídnout prodej bytu 1+1 se zasklenou lodžií, v ulici Letců R.A.F. v Nymburce. Bytová jednotka má celkovou užitnou plochu 40,77 m2 včetně lodžie a nachází se v 1. nadzemním podlaží (zvýšeném přízemí) panelového domu s výtahem. Dispozice bytu: předsíň (6,25 m2), obývací pokoj (14,80 m2) s kuchyní (9,10 m2), lodžie (6,72 m2), koupelna se sprchovým koutem a toaletou (3,90 m2). Byt má plastová okna se žaluziemi. Podlaha PVC, keramická dlažba. K bytu náleží prostorný zděný sklep o velikosti 11,50 m2. Dále je v domě k dispozici kolárna a sušárna. Dům je zateplený a nachází se na revitalizovaném sídlišti plném zeleně. V těsné blízkosti je veškerá občanská vybavenost (zastávka MHD, základní škola, mateřské školy, dětská hřiště, obchody s potravinami, poliklinika, restaurace a další). V okolí domu je dostatek parkovacích míst. Nemovitost není nijak zatížena a lze ji financovat hypotékou, kterou Vám ráda pomohu za výhodných podmínek zařídit.
Pro další informace, nebo při zájmu o prohlídku mne kontaktujte, ráda Vám nemovitost představím.

Parametry bytu

Cena
3 550 000 Kč /za nemovitost Spočítat hypotéku
Poznámka k ceně
Včetně provize a právních služeb
Aktualizováno
20. 12. 2025
Adresa
Letců R. A. F., Nymburk
ID
0059-NP07782
Stavba
Panelová
Stav objektu
Velmi dobrý
Patro
1. z 11
Vybaveno
Částečně
Lokalita objektu
Sídliště
Vlastnictví
Osobní
Užitná plocha
40 m2
Podlahová plocha
52 m2
Třída energetické náročnosti
B - Velmi úsporná
Ukazatel energetické náročnosti
79 kWh/m2 za rok
Elektřina
230V
Odpad
Veřejná kanalizace
Voda
Vodovod
Topné těleso
Radiátory
Sklep
Lodžie
Výtah

Kontaktovat makléře

Máte zájem o tento byt?

Tímto, v souladu s nařízením Evropského parlamentu a Rady (EU) 2016/679, v platném znění, prohlašuji, že mi je alespoň 16 let a uděluji tak svůj souhlas se zpracováním zadaných údajů (jméno, telefon, e-mail, ip adresa) společnosti B3 Technology, s.r.o., IČ: 07330600, se sídlem Novostavby 126/23, 435 11 Lom (správce dat), za účelem předání dotazu z tohoto formuláře Vámi vybranému inzerentovi a zpětného kontaktování mé osoby. Osobní údaje bude správce zpracovávat manuálně i automaticky přímo prostřednictvím svých zaměstnanců. Informace předané tímto formulářem budou uloženy v databázi správce maximálně po dobu 10 let. Odvolání souhlasu s uložením a zpracováním poskytnutých dat lze e-mailem na info@bydlisnami.cz. V případě podezření na neoprávněné použití Vámi poskytnutých údajů máte právo předat podnět k šetření Úřadu pro ochranu osobních údajů. Více informací
Chystáte se prodat nemovitost?
Pomůžeme Vám!

Inzerát si prohlédlo 1 lidí

Prodejce

Markéta Langweil

Markéta Langweil

Hlídací pes

Chcete dostávat emailem podobné nabídky prodeje bytů 1+kk v Nymburku?

Podobné nemovitosti