Pronájem rodinného domu, Holice, Staroholická, 143 m2

Staroholická, Staré Holice

13 000 Kč /za měsíc Získejte výhodnou HYPOTÉKU
Doporučené firmy v Holicích

Informace k domu

Nabízíme k pronájmu RD v místní části Staré Holice.
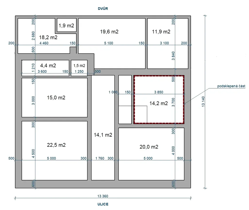
Domek nabízí dispozici 4+1 a celkovou užitnou plochu 143 m2. Dispozice se skládá z chodby, prostorné kuchyně s jídelnou, obývacího pokoje, koupelny, samostatného WC, technické místnosti a dvou samostatných pokojů. K dispozici je sklípek.

Domek je v původním udržovaném stavu, je vytápěn soustavou ústředního topení s kombinovaným (ohřev TUV) kotlem na zemní plyn. Všechna média mají samostatné měření.

Pro parkování je možno využít dlážděnou plochu pro dvě osobní vozidla nebo garáž s dílnou. Pro uskladnění kol a dalších věcí, potřebných k užívání domu je možno využít dřevník. Za domkem je i menší zahrádka pro pěstování zeleniny.

V těsném sousedství se nachází mateřská škola a zastávka autobusu, který nabízí spojení s centrem města (cca 2 km) i napojení na blízký Rychnov nad Kněžnou nebo dvě sousední krajská města Pardubice a Hradec Králové. Holice jsou městem s plnou občanskou vybaveností (školy, školky, úřady, poliklinika se záchrannou službou,...), kulturním a sportovním vyžitím, včetně obchodní části s Family centrem, Lidlem a Penny marketem. Přímo z obchvatu města je vybudován nový přivaděč na nájezd na dálnici D35, vzdálený přibližně 6 km.

Měsíční nájemné činí 12 tis. Kč, voda 350 Kč/osoba. Odběrná místa na plyn a elektřinu budou převedena na nájemce. Vratná kauce 30 tis. Kč, odměna RK 15 tis. Kč. Domek je pronajímán jako nekuřácký prostor a je volný od 1.1.2026. Domácí mazlíčky po dohodě.

Parametry domu

Cena
13 000 Kč /za měsíc
Aktualizováno
22. 12. 2025
Adresa
Staroholická, Staré Holice
ID
314
Stavba
Cihlová
Stav objektu
Dobrý
Užitná plocha
143 m2
Plocha pozemku
521 m2
Sklep
Parkování

Kontaktovat makléře

Máte zájem o tento dům?

Tímto, v souladu s nařízením Evropského parlamentu a Rady (EU) 2016/679, v platném znění, prohlašuji, že mi je alespoň 16 let a uděluji tak svůj souhlas se zpracováním zadaných údajů (jméno, telefon, e-mail, ip adresa) společnosti B3 Technology, s.r.o., IČ: 07330600, se sídlem Novostavby 126/23, 435 11 Lom (správce dat), za účelem předání dotazu z tohoto formuláře Vámi vybranému inzerentovi a zpětného kontaktování mé osoby. Osobní údaje bude správce zpracovávat manuálně i automaticky přímo prostřednictvím svých zaměstnanců. Informace předané tímto formulářem budou uloženy v databázi správce maximálně po dobu 10 let. Odvolání souhlasu s uložením a zpracováním poskytnutých dat lze e-mailem na info@bydlisnami.cz. V případě podezření na neoprávněné použití Vámi poskytnutých údajů máte právo předat podnět k šetření Úřadu pro ochranu osobních údajů. Více informací
Chystáte se prodat nemovitost?
Pomůžeme Vám!

Inzerát si prohlédlo 0 lidí

Prodejce

Lukáš Horský

Lukáš Horský

Hlídací pes

Chcete dostávat emailem podobné nabídky pronájmu rodinných domů v Holicích?

Podobné nemovitosti