Prodej zahrady, Klimkovice, U Zahrádek, 197 m2

U Zahrádek, Klimkovice

1 900 000 Kč /za nemovitost HYPOTÉKA od 8 492 Kč /za měsíc
Doporučené firmy v Klimkovicích

Informace k pozemku

Prodej zahrady, 197 m², Klimkovice, ul. U Zahrádek

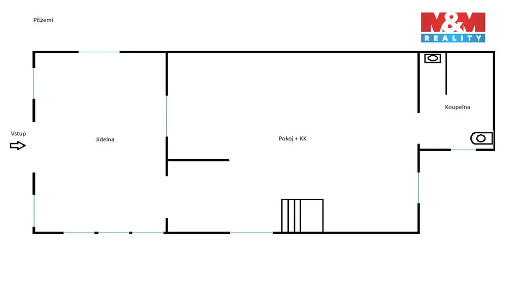
Exkluzivně nabízíme k prodeji udržovanou zahradu o rozloze 197 m², nacházející se v Zahrádkářské osadě Viola, na okraji obce Klimkovice. Zahrada je osázená ovocnými stromy a okrasnými keři. Je oplocená a nabízí k využití dosud nezkolaudovanou, celoročně využitelnou, nepodsklepenou, dřevěnou chatu s přilehlou venkovní terasou. Chata je vytápěná kamny a je napojená na veřejný vodovod a elektřinu. V přízemí chaty je k dispozici jídelna, obývací pokoj s kuchyňským koutem a koupelna s WC. V podkroví je samostatný pokoj s balkónem. Součástí nemovitosti je i plechový zahradní domek pro uskladnění nářadí. Skvělá dostupnost z Ostravy autem i MHD, činí tuto nemovitost ideálním místem pro ty, kteří hledají prostředí k relaxaci, odpočinku a zahrádkaření. Pro více informací a prohlídku nás neváhejte kontaktovat.

Parametry pozemku

Cena
1 900 000 Kč /za nemovitost Spočítat hypotéku
Aktualizováno
10. 2. 2026
Adresa
U Zahrádek, Klimkovice
ID
927780
Stav objektu
Velmi dobrý
Vybaveno
Ne
Lokalita objektu
Okraj obce
Vlastnictví
Osobní
Plocha pozemku
197 m2

Kontaktovat makléře

Realitní kancelář

Logo M&M reality

M&M reality

ulice Krakovská 583/9, Praha

Chystáte se prodat nemovitost?
Pomůžeme Vám!

Máte zájem o tento pozemek?

Tímto, v souladu s nařízením Evropského parlamentu a Rady (EU) 2016/679, v platném znění, prohlašuji, že mi je alespoň 16 let a uděluji tak svůj souhlas se zpracováním zadaných údajů (jméno, telefon, e-mail, ip adresa) společnosti B3 Technology, s.r.o., IČ: 07330600, se sídlem Novostavby 126/23, 435 11 Lom (správce dat), za účelem předání dotazu z tohoto formuláře Vámi vybranému inzerentovi a zpětného kontaktování mé osoby. Osobní údaje bude správce zpracovávat manuálně i automaticky přímo prostřednictvím svých zaměstnanců. Informace předané tímto formulářem budou uloženy v databázi správce maximálně po dobu 10 let. Odvolání souhlasu s uložením a zpracováním poskytnutých dat lze e-mailem na info@bydlisnami.cz. V případě podezření na neoprávněné použití Vámi poskytnutých údajů máte právo předat podnět k šetření Úřadu pro ochranu osobních údajů. Více informací
Chystáte se prodat nemovitost?
Pomůžeme Vám!

Inzerát si prohlédlo 11 lidí

Prodejce

Bc. Daniel Novák

Bc. Daniel Novák

Hlídací pes

Chcete dostávat emailem podobné nabídky prodeje zahrad v Klimkovicích?

Podobné nemovitosti