Prodej bytu 4+kk, Šlapanice, 123 m2

Šlapanice

17 138 700 Kč /za nemovitost HYPOTÉKA od 76 600 Kč /za měsíc

(včetně DPH, včetně poplatků, včetně provize, včetně právního servisu)

Doporučené firmy v Šlapanicích

Informace k bytu

V rámci projektu Nové Šlapanice, který vyrůstá na okraji města Šlapanic si Vám dovolujeme představit výjimečné a na danou lokalitu ojedinělé bydlení.
Představujeme Vám 3.etapu, která je zaměřena na výstavbu 4 viladomů, se 3 bytovými jednotkami a ateliérem. Je to ideální místo pro ty, kteří hledají kvalitní, moderní, prostorné a dispozičně chytře řešené bydlení.
V tomto projektu nabízíme k prodeji byt 4+KK s terasou a balkonem.
Součástí prodeje bytu je kuchyňská linka, dělaná na míru.
K bytu náleží i sklep 7,7m2 a 1 parkovací stání, která jsou součástí kupní ceny. Možnost dokoupení dalšího parkovacího stání za cenu 200.000,-Kč.
V celém bytě jsou venkovní žaluzie

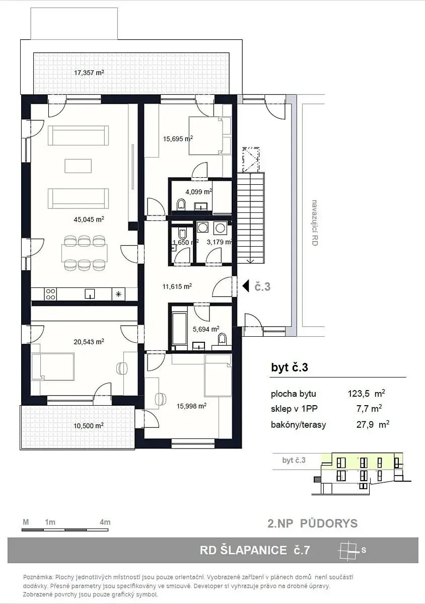
Viladům č.7 na ulic Stanislava Hanzelky
Byt č.3 o celkové ploše je umístěn v 2.NP
Dispozice: chodba 11,61m2, obývací pokoj s kuchyňským koutem 45,04m2, ložnice 15,69m2 s koupelnou s vanou včetně WC 4,09m2, dětský pokoj 20,54m2 se vstupem na balkon 10,5m2, druhý dětský pokoj 15,99 m2, koupelna s vanou včetně WC 5,69m2, technická místnost 3,17m2 a WC zvlášť 1,65m2. Z obývacího pokoje a ložnice je vstup na terasu o výměře 18m2.

Standarty bytu, které jsou součástí kupní ceny:
- podlahy vinyl, keramická dlažba
- sanitární technika, 2x umyvadlo včetně baterie, 2x vana, 3 x závěsné WC, zrcadla, obklady - mramor
- interiérové dveře + obložkové zárubně, vstupní dveře
- podlahové vytápění, topné těleso
- venkovní světla
- příprava na klimatizaci
- kuchyňská linka

Samotná lokalita nabízí širokou škálu pracovních možností a veškerou potřebnou občanskou vybavenost a výbornou dojezdnost díky dálnici D1 a D2. Také zde v docházkové vzdálenosti nalezneme školu, školku, řadu obchodů, restaurací a služeb, trolejbusovou zastávku, ale především vlakové nádraží, z kterého jste na Hlavním vlakovém nádraží v Brně va 15 min.
Dokončení bytů je plánované na 3Q roku 2026. Výhodou je model financování nemovitosti.
Pokud by Vás nabídka tohoto či jakéhokoliv jiného bytu v tomto projektu zaujala, kontaktujte prosím makléře, u kterého se dozvíte více.
Děláme moderní bydlení dostupnější.

Parametry bytu

Cena
17 138 700 Kč /za nemovitost Spočítat hypotéku
Poznámka k ceně
včetně DPH, včetně poplatků, včetně provize, včetně právního servisu
Aktualizováno
25. 12. 2025
Adresa
Šlapanice
ID
00005
Stavba
Cihlová
Stav objektu
Ve výstavbě
Patro
2. z 2
Vybaveno
Částečně
Lokalita objektu
Okraj obce
Vlastnictví
Osobní
Užitná plocha
123 m2
Podlahová plocha
160 m2
Třída energetické náročnosti
G - Mimořádně nehospodárná
Odpad
Veřejná kanalizace
Komunikace
Asfaltová
Doprava
Vlak, Silnice, MHD
Topné těleso
Podlahové vytápění, Klimatizace
Balkon
Sklep
Terasa
Výtah
Parkování

Kontaktovat makléře

Realitní kancelář

LUX Real s.r.o

Moravské náměstí 754/13, Brno

Chystáte se prodat nemovitost?
Pomůžeme Vám!

Máte zájem o tento byt?

Tímto, v souladu s nařízením Evropského parlamentu a Rady (EU) 2016/679, v platném znění, prohlašuji, že mi je alespoň 16 let a uděluji tak svůj souhlas se zpracováním zadaných údajů (jméno, telefon, e-mail, ip adresa) společnosti B3 Technology, s.r.o., IČ: 07330600, se sídlem Novostavby 126/23, 435 11 Lom (správce dat), za účelem předání dotazu z tohoto formuláře Vámi vybranému inzerentovi a zpětného kontaktování mé osoby. Osobní údaje bude správce zpracovávat manuálně i automaticky přímo prostřednictvím svých zaměstnanců. Informace předané tímto formulářem budou uloženy v databázi správce maximálně po dobu 10 let. Odvolání souhlasu s uložením a zpracováním poskytnutých dat lze e-mailem na info@bydlisnami.cz. V případě podezření na neoprávněné použití Vámi poskytnutých údajů máte právo předat podnět k šetření Úřadu pro ochranu osobních údajů. Více informací
Chystáte se prodat nemovitost?
Pomůžeme Vám!

Inzerát si prohlédlo 2 lidí

Prodejce

Jana Krejčí

Jana Krejčí

Hlídací pes

Chcete dostávat emailem podobné nabídky prodeje bytů 4+kk v Šlapanicích (okr. Brno-venkov)?

Podobné nemovitosti