Prodej vícegeneračního domu, Uherské Hradiště - Jarošov, 140 m2

Uherské Hradiště, Jarošov

7 900 000 Kč /za nemovitost HYPOTÉKA od 35 308 Kč /za měsíc
Doporučené firmy v Uherském Hradišti

Informace k domu

S výhradním souhlasem nabízíme vícegenerační rodinný dům v centrální části Jarošova, jenž je součástí katastru Uherského Hradiště.
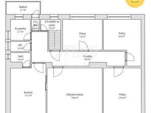
Dům je rozsáhlý, v suterénu jsou hospodářské sklepní místnosti. Součástí vstupní části domu je průjezd, kde lze zaparkovat.
V I. zvýšeném NP jsou 4 pokoje, kuchyně s jídelnou, koupelna, WC (zvlášť), potravinová komora a chodba. Je zde také vstup na první balkon,.
Druhé patro nabízí obdobnou dispozici, rovněž se vstupem na balkon a také přístup na velkou pochůzí půdu.
Za domem je zahrada, kde může budoucí vlastník odpočívat pod pergolou s příjemným posezením a využít udírnu. Dále je zde také zahradní domek a hospodářské stavení, které je podsklepené.
Dům tak nabízí skvělé rodinné zázemí v blízkosti města Uherského Hradiště. Do konce prosince 2025 nabízíme prostřednictvím našeho partnera úrokové sazby od 4,29 % p.a. Více informací Vám sdělí náš specialista na prohlídce.

Parametry domu

Cena
7 900 000 Kč /za nemovitost Spočítat hypotéku
Aktualizováno
29. 12. 2025
Adresa
Uherské Hradiště, Jarošov
ID
134209
Stavba
Smíšená
Stav objektu
Velmi dobrý
Typ objektu
Patrový
Druh objektu
Řadový
Lokalita objektu
Centrum obce
Užitná plocha
140 m2
Zastavěná plocha
117 m2
Podlahová plocha
170 m2
Plocha pozemku
1391 m2
Třída energetické náročnosti
G - Mimořádně nehospodárná
Elektřina
230V, 400V
Plyn
Plynovod
Odpad
Veřejná kanalizace
Topení
Ústřední plynové
Doprava
Silnice, MHD, Autobus
Voda
Vodovod

Kontaktovat makléře

Máte zájem o tento dům?

Tímto, v souladu s nařízením Evropského parlamentu a Rady (EU) 2016/679, v platném znění, prohlašuji, že mi je alespoň 16 let a uděluji tak svůj souhlas se zpracováním zadaných údajů (jméno, telefon, e-mail, ip adresa) společnosti B3 Technology, s.r.o., IČ: 07330600, se sídlem Novostavby 126/23, 435 11 Lom (správce dat), za účelem předání dotazu z tohoto formuláře Vámi vybranému inzerentovi a zpětného kontaktování mé osoby. Osobní údaje bude správce zpracovávat manuálně i automaticky přímo prostřednictvím svých zaměstnanců. Informace předané tímto formulářem budou uloženy v databázi správce maximálně po dobu 10 let. Odvolání souhlasu s uložením a zpracováním poskytnutých dat lze e-mailem na info@bydlisnami.cz. V případě podezření na neoprávněné použití Vámi poskytnutých údajů máte právo předat podnět k šetření Úřadu pro ochranu osobních údajů. Více informací
Chystáte se prodat nemovitost?
Pomůžeme Vám!

Inzerát si prohlédlo 0 lidí

Prodejce

Petra Vlachynská

Petra Vlachynská

Hlídací pes

Chcete dostávat emailem podobné nabídky prodeje vícegeneračních domů v Uherském Hradišti?

Podobné nemovitosti