Prodej bytu 4+kk, Jihlava, Heidenheimská, 86 m2 (ID: 2512979)

Heidenheimská, Jihlava, Horní Kosov

6 746 000 Kč /za nemovitost HYPOTÉKA od 30 151 Kč /za měsíc

(žádná provize)

Doporučené firmy v Jihlavě

Informace k bytu

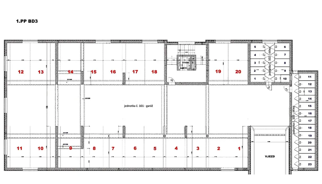
Nabízíme ke koupi byt č. 1 o dispozici 4+kk a podlahové ploše 85,6 m2, s balkonem (8 m2). Byt se bude nacházet v 1. nadzemním podlaží bytového domu BD3, bude dokončen v závěru roku 2026. Výstavba BD3 je součástí úspěšného projektu Residence KASKÁDA na Horním Kosově v Jihlavě, který je zárukou pohodlného a kvalitního bydlení.
Standardem bytů budou vinylové podlahy a dveře s obložkovou zárubní. U obkladů a dlažby (v koupelně a na WC), podlah i dveří bude možno vybírat z několika odstínů a dekorů. V rámci klientských změn lze provádět v bytě úpravy příček/nenosných zdí, instalací, povrchových úprav i zařizovacích předmětů. Boční okna domu, kde se byt nachází, budou mít instalované předokenní žaluzie zdarma.
Bytový dům má 4 nadzemní a 1 podzemní podlaží. V nadzemních podlažích se nachází 23 bytových jednotek různých velikosti a kategorií 2+kk až 4+kk. V 1. NP bude kromě bytových jednotek umístěna také kolárna/kočárkárna, technická místnost a úklidová komora. V 1. PP bude 20 samostatných parkovacích stání určených pro osobní automobily (nejsou součástí ceny bytu) a dále zde budou sklepní kóje pro každou bytovou jednotku. Schodiště a výtahová kabina budou propojovat bytový dům od 1. PP do 4.NP. Bytový dům bude vybaven systémem ramp – bezbariérová rampa pro přístup do domu a rampa pro sjezd do garáže. Možnost parkování bude také u bytového domu (8 parkovacích míst).
Klidný provoz v této atraktivní lokalitě zajišťují kruhové objezdy, zpomalovací pásy i chodníky po obou stranách vozovky. Výhodná poloha nabízí možnost bezprostředního kontaktu s přírodou, pohodlné spojení v rámci MHD s celou Jihlavou, ale také rychlé dopravní napojení na dálnici D1.
Díky našemu obchodnímu partnerovi můžete získat hypotéku s úrokovou sazbou již od 3,99 % p.a.
Prohlídka identického bytu je možná po předchozí domluvě.

Parametry bytu

Cena
6 746 000 Kč /za nemovitost Spočítat hypotéku
Poznámka k ceně
žádná provize
Aktualizováno
6. 1. 2026
Adresa
Heidenheimská, Jihlava, Horní Kosov
Stavba
Cihlová
Stav objektu
Ve výstavbě
Patro
1. z 5
Vybaveno
Částečně
Lokalita objektu
Klidná část obce
Vlastnictví
Osobní
Užitná plocha
86 m2
Třída energetické náročnosti
A - Mimořádně úsporná
Ukazatel energetické náročnosti
52 kWh/m2 za rok
Odpad
Veřejná kanalizace
Topení
Podlahové
Komunikace
Asfaltová
Telekomunikace
Internet, Kabelové rozvody
Doprava
Silnice, MHD
Voda
Vodovod
Topné těleso
Podlahové vytápění
Balkon
Sklep
Výtah
Bezbarierový přístup
Parkování

Kontaktovat makléře

Máte zájem o tento byt?

Tímto, v souladu s nařízením Evropského parlamentu a Rady (EU) 2016/679, v platném znění, prohlašuji, že mi je alespoň 16 let a uděluji tak svůj souhlas se zpracováním zadaných údajů (jméno, telefon, e-mail, ip adresa) společnosti B3 Technology, s.r.o., IČ: 07330600, se sídlem Novostavby 126/23, 435 11 Lom (správce dat), za účelem předání dotazu z tohoto formuláře Vámi vybranému inzerentovi a zpětného kontaktování mé osoby. Osobní údaje bude správce zpracovávat manuálně i automaticky přímo prostřednictvím svých zaměstnanců. Informace předané tímto formulářem budou uloženy v databázi správce maximálně po dobu 10 let. Odvolání souhlasu s uložením a zpracováním poskytnutých dat lze e-mailem na info@bydlisnami.cz. V případě podezření na neoprávněné použití Vámi poskytnutých údajů máte právo předat podnět k šetření Úřadu pro ochranu osobních údajů. Více informací
Chystáte se prodat nemovitost?
Pomůžeme Vám!

Inzerát si prohlédlo 1 lidí

Prodejce

Pavlína Zábranská

Pavlína Zábranská

Hlídací pes

Chcete dostávat emailem podobné nabídky prodeje bytů 4+kk v Jihlavě?

Podobné nemovitosti