Prodej apartmánu, Dolní Morava, 44 m2

Dolní Morava

5 650 000 Kč /za nemovitost HYPOTÉKA od 25 252 Kč /za měsíc

(včetně provize, včetně právního servisu)

Doporučené firmy v Dolní Moravě

Informace k nemovitosti

Hledáte zajímavou investiční příležitost spojenou s horskými apartmány?

V komplexu čtyř samostatných budov o 3NP se v každé z nich nachází vždy 6 apartmánů.
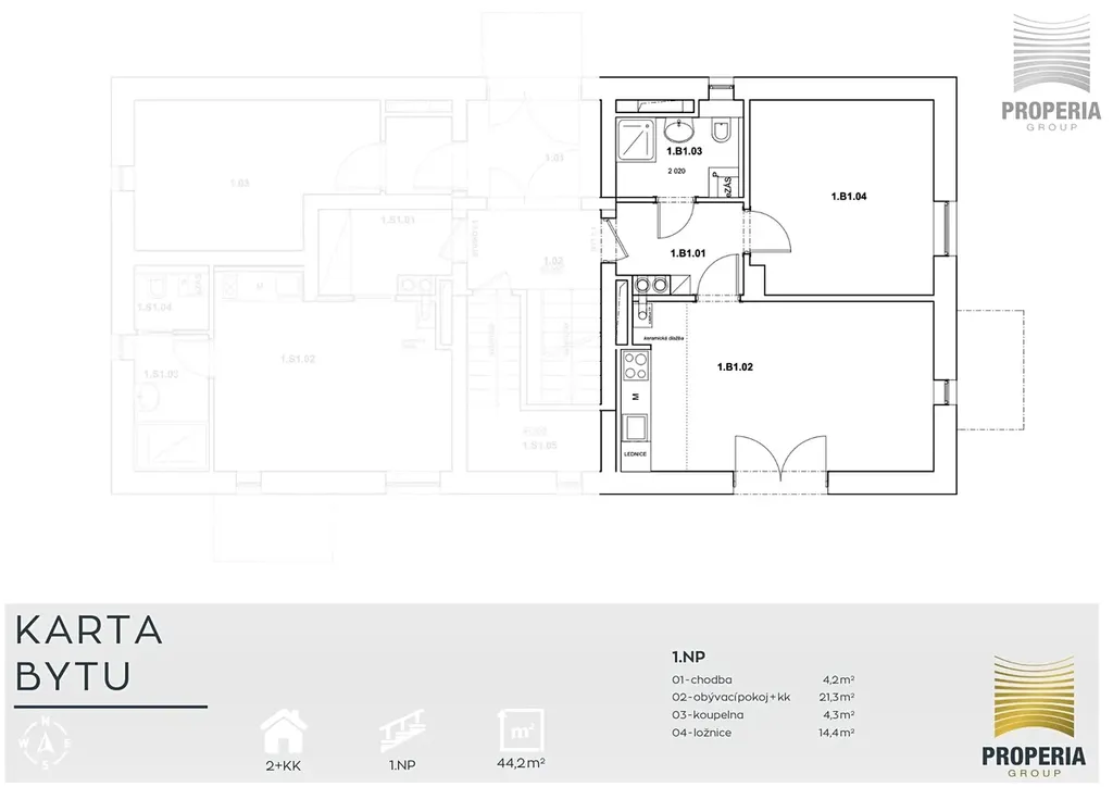
Nabízíme vám apartmán v 1.NP o dispozici 2+KK a CP 44,2 m².

V každém objektu je také situovaná společná místnost, která v létě slouží jako kolárna, a v zimně zde pohodlně uskladníte veškeré lyžařské vybavení. Na pozemku také pohodlně zaparkujete, projekt zahrnuje komfortních 26 parkovacích stání a vzhledem k trafostanici na pozemku je možné vybudování nabíjecích stanic na EV.

Morava je malá obec v Pardubickém kraji, okrese Ústí nad Orlicí, rozkládající se mezi Orlickými horami a Jeseníky na úpatí Králického Sněžníku. Obec je známým horským lyžařským střediskem. Část obce náleží do Národní přírodní rezervace Králický Sněžník, a právě ten je dominantou zdejšího kraje. Pod jeho vrcholem pramení řeka Morava, která celou obcí protéká od severu k jihu malebným údolím, lemovaným z obou stran dvěma zalesněnými hřbety. Sousedními obcemi sídla jsou Malá Morava, Staré Město a Králíky.

Parametry nemovitosti

Cena
5 650 000 Kč /za nemovitost Spočítat hypotéku
Poznámka k ceně
včetně provize, včetně právního servisu
Aktualizováno
19. 1. 2026
Adresa
Dolní Morava
ID
03762
Stavba
Cihlová
Stav objektu
Projekt
Patro
1. z 3
Vybaveno
Ne
Lokalita objektu
Klidná část obce
Užitná plocha
44 m2
Třída energetické náročnosti
B - Velmi úsporná
Ukazatel energetické náročnosti
68 kWh/m2 za rok
Elektřina
230V
Plyn
Plynovod
Odpad
Veřejná kanalizace
Komunikace
Dlážděná, Asfaltová
Telekomunikace
Internet, Kabelové rozvody
Doprava
Silnice, Autobus
Voda
Vodovod
Topné těleso
Krbová kamna
Zdroj topení
Krbová kamna
Zdroj teplé vody
Elektrokotel
Výtah
Parkování

Kontaktovat makléře

Máte zájem o tuto nemovistost?

Tímto, v souladu s nařízením Evropského parlamentu a Rady (EU) 2016/679, v platném znění, prohlašuji, že mi je alespoň 16 let a uděluji tak svůj souhlas se zpracováním zadaných údajů (jméno, telefon, e-mail, ip adresa) společnosti B3 Technology, s.r.o., IČ: 07330600, se sídlem Novostavby 126/23, 435 11 Lom (správce dat), za účelem předání dotazu z tohoto formuláře Vámi vybranému inzerentovi a zpětného kontaktování mé osoby. Osobní údaje bude správce zpracovávat manuálně i automaticky přímo prostřednictvím svých zaměstnanců. Informace předané tímto formulářem budou uloženy v databázi správce maximálně po dobu 10 let. Odvolání souhlasu s uložením a zpracováním poskytnutých dat lze e-mailem na info@bydlisnami.cz. V případě podezření na neoprávněné použití Vámi poskytnutých údajů máte právo předat podnět k šetření Úřadu pro ochranu osobních údajů. Více informací
Chystáte se prodat nemovitost?
Pomůžeme Vám!

Inzerát si prohlédlo 0 lidí

Prodejce

Ing. Marek Fryčka

Ing. Marek Fryčka

Hlídací pes

Chcete dostávat emailem podobné nabídky prodeje apartmánů v Dolní Moravě?

Podobné nemovitosti