Prodej bytu 4+kk, České Budějovice, 88 m2 (ID: 2524946)

České Budějovice

11 647 500 Kč /za nemovitost HYPOTÉKA od 52 057 Kč /za měsíc
Doporučené firmy v Českých Budějovicích

Výkup a prodej starého nábytku

Informace k bytu

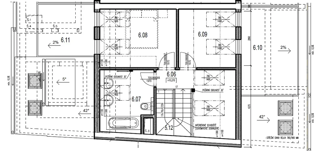
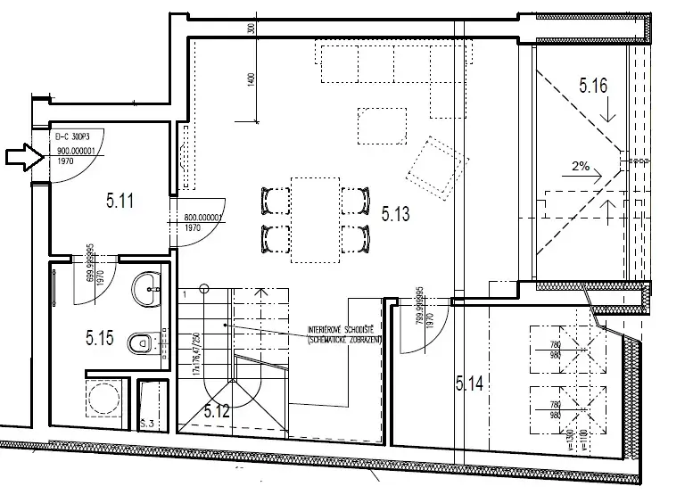
Nabízíme k prodeji prostorný podkrovní byt 4+kk o celkové výměře 88,52 m², který se nachází v novostavbě bytového domu v samotném centru Českých Budějovic, na ulici Štítného.

Byt je součástí moderního projektu s pouhými dvanácti bytovými jednotkami, který nabízí vysoký standard bydlení, kvalitní materiály a výjimečnou polohu v srdci města.
Dispozice bytu zahrnuje vstupní chodbu, tři samostatné pokoje, prostorný obývací pokoj s kuchyňským koutem, dvě koupelny a vnitřní schodiště. K bytu náleží také tři terasy o velikostech 6,12 m², 14,10 m² a 8,40 m², které poskytují příjemný prostor pro relaxaci či posezení na čerstvém vzduchu. Součástí je rovněž samostatný sklep o velikosti 3 m² umístěný v přízemí domu a dvě parkovací stání.

Díky vynikající poloze v centru města je zde v dosahu kompletní občanská vybavenost – obchody, restaurace, školy, úřady i kulturní vyžití. Samozřejmostí je také výborná dopravní dostupnost a pohodlné spojení do všech částí města.
Tento byt představuje ideální kombinaci moderního bydlení, nadstandardního komfortu a jedinečné lokality v samém srdci Českých Budějovic.

Parametry bytu

Cena
11 647 500 Kč /za nemovitost Spočítat hypotéku
Aktualizováno
20. 1. 2026
Adresa
České Budějovice
ID
4kk Štítného, podkroví
Stavba
Cihlová
Stav objektu
Novostavba
Patro
5. z 5
Vybaveno
Částečně
Lokalita objektu
Centrum obce
Vlastnictví
Osobní
Užitná plocha
88 m2
Třída energetické náročnosti
B - Velmi úsporná
Elektřina
120V
Odpad
Veřejná kanalizace
Komunikace
Asfaltová
Doprava
Vlak, Dálnice, Silnice, MHD, Autobus
Voda
Místní zdroj vody
Topné těleso
Podlahové vytápění
Sklep
Terasa
Výtah
Bezbarierový přístup
Parkování

Kontaktovat makléře

Máte zájem o tento byt?

Tímto, v souladu s nařízením Evropského parlamentu a Rady (EU) 2016/679, v platném znění, prohlašuji, že mi je alespoň 16 let a uděluji tak svůj souhlas se zpracováním zadaných údajů (jméno, telefon, e-mail, ip adresa) společnosti B3 Technology, s.r.o., IČ: 07330600, se sídlem Novostavby 126/23, 435 11 Lom (správce dat), za účelem předání dotazu z tohoto formuláře Vámi vybranému inzerentovi a zpětného kontaktování mé osoby. Osobní údaje bude správce zpracovávat manuálně i automaticky přímo prostřednictvím svých zaměstnanců. Informace předané tímto formulářem budou uloženy v databázi správce maximálně po dobu 10 let. Odvolání souhlasu s uložením a zpracováním poskytnutých dat lze e-mailem na info@bydlisnami.cz. V případě podezření na neoprávněné použití Vámi poskytnutých údajů máte právo předat podnět k šetření Úřadu pro ochranu osobních údajů. Více informací
Chystáte se prodat nemovitost?
Pomůžeme Vám!

Inzerát si prohlédlo 2 lidí

Prodejce

Kristýna Křiváčková

Kristýna Křiváčková

Hlídací pes

Chcete dostávat emailem podobné nabídky prodeje bytů 4+kk v Českých Budějovicích?

Top nabídky

Podobné nemovitosti