Prodej bytu 2+kk, Plzeň, Poděbradova, 64 m2

Poděbradova, Plzeň, Jižní Předměstí

5 990 000 Kč /za nemovitost HYPOTÉKA od 26 772 Kč /za měsíc
Doporučené firmy v Plzni

Podlahy

Stěhovací služby

Informace k bytu

Nabízíme ke koupi světlý a velmi příjemný byt 2+kk o podlahové ploše 67,4 m² s balkonem, který se nachází v moderním bytovém domě z roku 2019 v klidné části Plzně, ulice Poděbradova.

Byt působí klidně, čistě a vzdušně hned při vstupu. Dispozice je praktická a přirozená, takže se v něm dobře bydlí – ať už hledáte vlastní domov, nebo byt jako investici. Orientace bytu je severozápadní, díky čemuž je zde během dne dostatek světla a v bytě panuje příjemné klima po celý rok.

Obývací pokoj s kuchyňským koutem nabízí dostatek prostoru pro každodenní život i posezení s přáteli. Kuchyň je vybavena kuchyňskou linkou se zabudovanou troubou, sklokeramickou varnou deskou a digestoří s odtahem. U dřezu je instalovaný kvalitní vodní filtr eSpring. Vybavení bytu je na dohodě. V obytných místnostech jsou plovoucí podlahy, doplněné dlažbou v ostatních částech bytu, což je praktické řešení z hlediska údržby.

Velkou výhodou bytu je prostorná samostatná šatna, která výrazně zvyšuje komfort bydlení a řeší úložné prostory bez nutnosti dalších skříní v místnostech. Zůstává zde kompletní modulární konstrukce IKEA, kterou lze upravit podle vlastních potřeb. Vybavení předsíně (komoda) je možné ponechat po dohodě.

Součástí bytu je také balkon o velikosti 3,4 m², ideální pro ranní kávu, krátký odpočinek po práci nebo klidné posezení. Vytápění bytu je řešeno radiátory. Samozřejmostí je optický internet, aktuálně využívaný od O2.

Vstup do domu i přízemí jsou zabezpečeny kamerovým systémem, což přispívá k pocitu bezpečí a klidu. Parkování je možné v okolních ulicích v rámci zón, případně u nedalekého autobusového nádraží. Vedle domu se navíc nachází soukromé parkoviště, kde se poměrně často objevují možnosti pronájmu parkovacího stání.

Dům je moderní a dobře udržovaný a splňuje energetickou třídu PENB A, což znamená velmi úsporný provoz. Tento parametr je navíc bankami vnímán pozitivně a může přispět k výhodnějším podmínkám financování. Lokalita nabízí příjemnou kombinaci klidu a městského života. V docházkové vzdálenosti se nachází centrum města, OC Plaza, autobusové nádraží, obchody, služby i kultura. Výhodou novostavby jsou také nízké provozní náklady a nízký fond oprav.

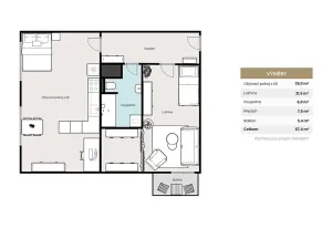
Dispozice a výměry bytu:

Obývací pokoj s kuchyňským koutem: 28,0 m²
Ložnice: 20,5 m²
Koupelna: 5,9 m²
Předsíň: 7,5 m²
Balkon: 3,4 m²

Celkem: 67,4 m²

Byt je aktuálně obýván majiteli, kteří potřebují krátký čas na přestěhování – vše je ale otázkou domluvy a lze řešit flexibilně.
Pokud hledáte byt, kde se dá komfortně a pohodově bydlet, rádi vás nemovitostí osobně provedeme. V případě potřeby vám navíc rádi pomůžeme i se zajištěním financování, aby pro vás byla koupě co nejjednodušší.

Parametry bytu

Cena
5 990 000 Kč /za nemovitost Spočítat hypotéku
Aktualizováno
23. 1. 2026
Adresa
Poděbradova, Plzeň, Jižní Předměstí
ID
973539
Stavba
Cihlová
Stav objektu
Novostavba
Patro
4. z 8
Vybaveno
Částečně
Vlastnictví
Osobní
Užitná plocha
64 m2
Podlahová plocha
67 m2
Třída energetické náročnosti
A - Mimořádně úsporná
Elektřina
230V
Plyn
Plynovod
Odpad
Veřejná kanalizace
Komunikace
Asfaltová
Telekomunikace
Telefon, Internet, Kabelová televize
Doprava
Dálnice, Silnice, MHD, Autobus
Voda
Vodovod
Topné těleso
Radiátory
Zdroj topení
Ústřední dálkové
Balkon
Výtah

Kontaktovat makléře

Máte zájem o tento byt?

Tímto, v souladu s nařízením Evropského parlamentu a Rady (EU) 2016/679, v platném znění, prohlašuji, že mi je alespoň 16 let a uděluji tak svůj souhlas se zpracováním zadaných údajů (jméno, telefon, e-mail, ip adresa) společnosti B3 Technology, s.r.o., IČ: 07330600, se sídlem Novostavby 126/23, 435 11 Lom (správce dat), za účelem předání dotazu z tohoto formuláře Vámi vybranému inzerentovi a zpětného kontaktování mé osoby. Osobní údaje bude správce zpracovávat manuálně i automaticky přímo prostřednictvím svých zaměstnanců. Informace předané tímto formulářem budou uloženy v databázi správce maximálně po dobu 10 let. Odvolání souhlasu s uložením a zpracováním poskytnutých dat lze e-mailem na info@bydlisnami.cz. V případě podezření na neoprávněné použití Vámi poskytnutých údajů máte právo předat podnět k šetření Úřadu pro ochranu osobních údajů. Více informací
Chystáte se prodat nemovitost?
Pomůžeme Vám!

Inzerát si prohlédlo 0 lidí

Prodejce

Jana Folkmannová

Jana Folkmannová

Hlídací pes

Chcete dostávat emailem podobné nabídky prodeje bytů 2+kk v Plzni?

Top nabídky

Podobné nemovitosti