Prodej bytu 3+kk, Peroj, Chorvatsko, 64 m2 (ID: 2531512)

Peroj

212 000 € /za nemovitost
Doporučené firmy

Informace k bytu

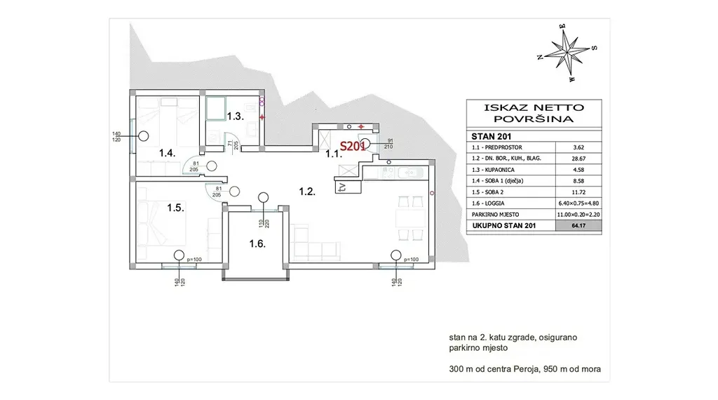
Nabízíme k prodeji byt ve druhém patře nové budovy v Peroji. Byt má praktickou a moderní dispozici, nachází se na klidné lokalitě a 900 metrů od moře.

Dispozice bytu:

✔ dvě ložnice
✔ koupelna
✔ kuchyně s jídelnou a obývacím pokojem
✔ výstup na krytou terasu s částečným výhledem na moře

Vybavení a přednosti:

✔ podlahové vytápění ve všech místnostech kromě ložnic
✔ klimatizace
✔ vlastní parkovací místo
✔ byt se prodává s kuchyňskou linkou, bez nábytku

Tato nemovitost je skvělou volbou jak pro komfortní bydlení, tak i jako investice díky moderní výstavbě, dobré lokaci a blízkosti moře.

Peroj – klidná přímořská oáza s autentickým istrijským kouzlem

Peroj patří mezi nejvyhledávanější místa v jižní Istrii pro bydlení i rekreaci. Leží přímo u moře a nabízí krásné pláže, dlouhé pobřežní promenády a výhled na Národní park Brijuni. Toto tiché a upravené letovisko je ideální pro rodiny, páry i všechny, kteří hledají uvolněný středomořský životní styl.

Obyvatelé oceňují Peroj pro jeho autentickou atmosféru, množství zeleně, kvalitní infrastrukturu, skvělé cyklostezky a blízkost Fažany a Puly. Díky čistému moři, klidu a přírodě je Peroj mimořádně atraktivní lokalitou pro koupi nemovitosti — ať už hledáte nový domov, rekreační apartmán nebo bezpečnou investici.

Pro více informací a domluvu prohlídky jsme k dispozici.

V Chorvatsku a Istrii jsme žili téměř 20 let, kde jsme pracovali v oboru realit a cestovního ruchu, čím zaručujeme znalost destinace a profesionální přístup.

Odbornost je zaručená dlouhaletou spoupráci s partnerskou realitní kanceláří z Chorvatska, přítomnou na trhu nemovitostí přes 20 let. Poskytujeme veškeré služby při zprostředkování koupě a prodeje nemovitostí, včetně vyhotovení OIB a sestavení smluv, v souladu s legislativou Chorvatska.

Klienty provázíme ve všech krocích, od prvního kontaktu, dále v procesu sestavení optimální nabídky, při výběru na prohlídkách nemovitostí, komunikujeme při sestavení Smluv a během koupě nemovitostí, asistujeme při podpisu a ověření Smluv u notáře a v komunikaci s Katastrem, přítomní jsme samozřejmě u předání klíčů, pomůžeme s převodem energíí, a vše je s doprovodem česky mluvících agentů.
Pro naše klienty jsou ceny nemovitostí identické jako při koupi přímo u agentury/developera v Chorvatsku, díky dlouhaleté spolupráci můžeme umožnit koupi bez dodatečných navýšení za služby v českém jazyce.

Z vlastních zkušeností víme kde hledat a jak najít tu pravou nemovitost v Chorvatsku, především v Istrii, kde jsme žili a kam stále aktivně jezdíme za prací i odpočinkem.
Nabízíme více jak 2500 nemovitostí, domluvte si nezávaznou konzultaci, telefonicky, či při schůzce v Praze, nebo u moře, promluvíme si o možnostech, v českém a chorvatském jazyce.
Společně najdeme váš domov u moře.

Vaši průvodci Chorvatskem a při koupi nemovitostí.
Tamara Ružić, DiS
Byty Domy Chorvatsko a partneři

Parametry bytu

Cena
212 000 € /za nemovitost
Aktualizováno
27. 1. 2026
Adresa
Peroj
ID
26925
Stavba
Cihlová
Stav objektu
Novostavba
Patro
3.
Vlastnictví
Osobní
Užitná plocha
64 m2
Třída energetické náročnosti
A - Mimořádně úsporná
Topné těleso
Podlahové vytápění, Klimatizace
Balkon
Parkování

Kontaktovat makléře

Máte zájem o tento byt?

Tímto, v souladu s nařízením Evropského parlamentu a Rady (EU) 2016/679, v platném znění, prohlašuji, že mi je alespoň 16 let a uděluji tak svůj souhlas se zpracováním zadaných údajů (jméno, telefon, e-mail, ip adresa) společnosti B3 Technology, s.r.o., IČ: 07330600, se sídlem Novostavby 126/23, 435 11 Lom (správce dat), za účelem předání dotazu z tohoto formuláře Vámi vybranému inzerentovi a zpětného kontaktování mé osoby. Osobní údaje bude správce zpracovávat manuálně i automaticky přímo prostřednictvím svých zaměstnanců. Informace předané tímto formulářem budou uloženy v databázi správce maximálně po dobu 10 let. Odvolání souhlasu s uložením a zpracováním poskytnutých dat lze e-mailem na info@bydlisnami.cz. V případě podezření na neoprávněné použití Vámi poskytnutých údajů máte právo předat podnět k šetření Úřadu pro ochranu osobních údajů. Více informací
Chystáte se prodat nemovitost?
Pomůžeme Vám!

Inzerát si prohlédlo 0 lidí

Prodejce

Tamara Ružić

Tamara Ružić

Hlídací pes

Chcete dostávat emailem podobné nabídky prodeje bytů 3+kk?

Podobné nemovitosti