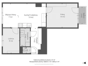
Prodej bytu 3+kk, Praha - Nusle, Boleslavova, 55 m2

Boleslavova, Praha, Nusle

10 490 000 Kč /za nemovitost HYPOTÉKA od 46 884 Kč /za měsíc
Doporučené firmy v Praze 4

Stěhovací služby

Výkup a prodej starého nábytku

Informace k bytu

Nabízíme vám k prodeji útulný slunný byt v bytovém domě v Nuslích.
Byt o dispozici 3+kk je po kompletní rekonstrukci (2020), vhodný pro rodinu s dětmi.

- dispozice 3+kk
- zděný bytový dům
- PENB D
- 3.NP
- koupelna s vanou
-  samostatné WC
-  balkón
-  sklep

Samotná bytová jednotka o velikosti 53 m2 se nachází ve 3. NP bytového domu. K bytu a sklepní koje v 1.PP o velikosti 1,9 m2.

Dětský pokoj je situován směrem na jih. Obývací pokoj a ložnice mají okna na sever s krásným výhledem do parku Na Fidlovačce.

Bytový dům prošel v minulých 10 ti letech postupně částečnou rekonstrukcí, je zde nová fasáda, střecha a veškeré rozvody. Topení je řešeno centrálním plynovým kotlem.

Aktuální měsíční náklady jsou elektřina : 1650,- a SVJ (vytápění, voda + společné prostory): 6924,-

Byt v Boleslavově ulici zaujme především svou výjimečnou polohou. Jen pár kroků od domu se nachází tramvajová zastávka Divadlo na Fidlovačce, která zajišťuje rychlé spojení do centra města i Vršovic. Stanice metra C – Vyšehrad je dostupná pohodlnou desetiminutovou chůzí. Přímo před domem se rozprostírá park Na Fidlovačce, ideální místo pro každodenní relax, sport i procházky. Milovníci zeleně ocení také blízký park Folimanka, zatímco náměstí Bratří Synků nabízí kompletní občanskou vybavenost a příjemnou atmosféru městského života.

Parametry bytu

Cena
10 490 000 Kč /za nemovitost Spočítat hypotéku
Aktualizováno
28. 1. 2026
Adresa
Boleslavova, Praha, Nusle
Stavba
Cihlová
Stav objektu
Po rekonstrukci
Patro
3.
Vlastnictví
Osobní
Užitná plocha
55 m2
Balkon
Sklep

Kontaktovat makléře

Máte zájem o tento byt?

Tímto, v souladu s nařízením Evropského parlamentu a Rady (EU) 2016/679, v platném znění, prohlašuji, že mi je alespoň 16 let a uděluji tak svůj souhlas se zpracováním zadaných údajů (jméno, telefon, e-mail, ip adresa) společnosti B3 Technology, s.r.o., IČ: 07330600, se sídlem Novostavby 126/23, 435 11 Lom (správce dat), za účelem předání dotazu z tohoto formuláře Vámi vybranému inzerentovi a zpětného kontaktování mé osoby. Osobní údaje bude správce zpracovávat manuálně i automaticky přímo prostřednictvím svých zaměstnanců. Informace předané tímto formulářem budou uloženy v databázi správce maximálně po dobu 10 let. Odvolání souhlasu s uložením a zpracováním poskytnutých dat lze e-mailem na info@bydlisnami.cz. V případě podezření na neoprávněné použití Vámi poskytnutých údajů máte právo předat podnět k šetření Úřadu pro ochranu osobních údajů. Více informací
Chystáte se prodat nemovitost?
Pomůžeme Vám!

Inzerát si prohlédlo 1 lidí

Prodejce

Karolína Šimáčková

Karolína Šimáčková

Hlídací pes

Chcete dostávat emailem podobné nabídky prodeje bytů 3+kk v Praze 4?

Podobné nemovitosti