Prodej činžovního domu, Plzeň - Vnitřní Město, Sedláčkova, 1040 m2

Sedláčkova, Plzeň, Vnitřní Město

30 909 000 Kč /za nemovitost HYPOTÉKA od 138 145 Kč /za měsíc

(včetně provize)

Doporučené firmy v Plzni

Podlahy

Stěhovací služby

Informace k nemovitosti

Dovolujeme si Vám prezentovat ojedinělou nabídku prodeje řadového, bytového domu se 7 bytovými jednotkami a nebytovými prostory v historickém centru města Plzeň, ul. Sedláčkova.

Předmětem prodeje jsou spoluvlastnické podíly o celkové velikosti 10/11.

Dům pochází z roku 1911 a je kompletně podsklepen. Má 5 nadzemních podlaží. V zadní části je dvorek. Dům i pozemek je v památkové rezervaci.

V letech 1994 - 2022 procházel dům průběžně rekonstrukcí. Po rekonstrukci jsou rozvody vody a odpadů. Od roku 2016 má novou fasádu, klempířské prvky jsou v mědi. Rozvody elektřiny - komplet v mědi. Okna - z převážné části eurookna, z části plastová, jeden byt 1+1 a chodby mají osazena okna dřevěná (zdvojená), 2. a 3.P do ulice s venkovními roletami. Střecha domu je sedlová s novou pálenou taškovou krytinou (v roce 2022). Objekt je v celkově dobrém stavebně technickém stavu.

Celková užitná plocha domu je 1040 m2. Zastavěná plocha a nádvoří je o výměře 387 m2.

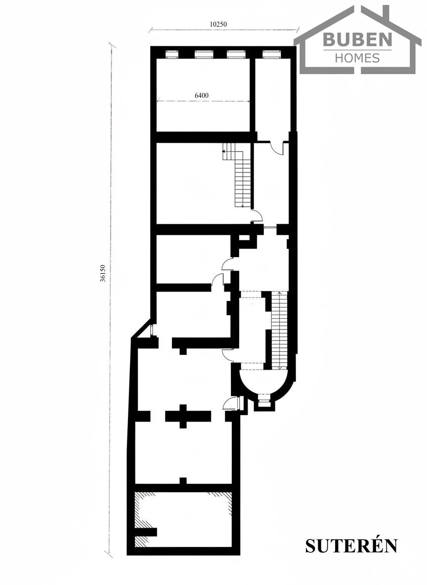
1.PP tvoří sklepní prostory s trezorovými místnostmi po bývalém provozu banky, dnes nevyužívané. Je zde nově vybudované sociální zázemí. Část suterénu má samostatným vchod z prodejny, do druhé části je zajištěn vstup z chodby se schodištěm.
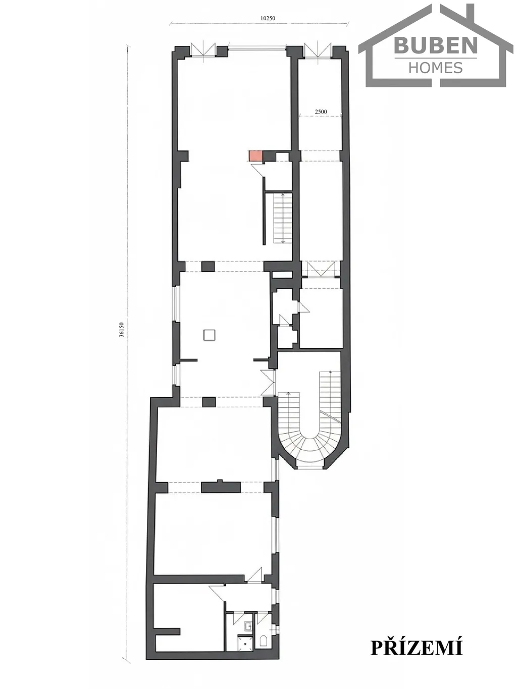
V 1.NP se nachází prodejna se sociálním a skladovým zázemím (205 m2), se samostatným vchodem z ulice (v současné době v pronájmu), dále chodba se schodištěm do domu.
2.NP schodiště a dvě bytové jednotky: 3+1 o užitné ploše 127 m2 a jednotka 4+kk o ploše 67 m2.
3.NP schodiště a dvě bytové jednotky: 3+1 o užitné ploše 122 m2 a jednotka 1+1 o ploše 37 m2.
4.NP schodiště a dvě bytové jednotky: 3+1 o užitné ploše 123 m2 a jednotka 1+1 o ploše 37 m2.
5.NP - podkroví: schodiště, byt 1+1 o ploše 38 m2 a půdní prostor s projektovou dokumentací na vybudování bytové jednotky o ploše 157 m2.

3 bytové jednotky užívají majitelé, zbylé jsou neobydlené. Suterén je z části (vchod z chodby) nevyužíván. Druhá část suterénu je součástí pronájmu nebytového prostoru. Byty v 1.P byly využívány k pronájmu ke kancelářským účelům.

Vytápění jednotek je ústřední plynové se samostatnými plynovými kotly (včetně ohřevu vody), pouze podkrovní byt 1+1 je vytápěn elektrickými přímotopy (ohřev vody zajišťuje elektrický boiler). Nebytový prostor je vytápěn centrálně dálkově (samostatné měření). Byty i nebytový prostor mají samostatné elektroměry. Vodoměr je společný. V domě byl před lety plánovaný výtah. V domě jsou zřízeny kabelové rozvody internetu + rozvody domovních zvonků. Elektřina 230 V, 400 V (třífázový).

V ceně jsou zahrnuty kuchyňské linky a vestavěné skříně.

Dům je situován ve velmi oblíbené, ale celkově i frekventované lokalitě (cca 100 m2 od náměstí Republiky). Bytové jednotky v zadní části domu zajištují krásný výhled na věž Plzeňské katedrály sv. Bartoloměje.

Díky výborné dopravní dostupnosti, občanské vybavenosti a zájmu o nájemné bydlení v Plzni, představuje tato nemovitost ideální příležitost pro ty, kteří hledají kombinaci stabilního výnosu, růstu hodnoty.

Parametry nemovitosti

Cena
30 909 000 Kč /za nemovitost Spočítat hypotéku
Poznámka k ceně
včetně provize
Aktualizováno
2. 2. 2026
Adresa
Sedláčkova, Plzeň, Vnitřní Město
ID
OB00826B
Stavba
Smíšená
Stav objektu
Dobrý
Vybaveno
Ne
Typ objektu
Patrový
Druh objektu
Řadový
Lokalita objektu
Centrum obce
Užitná plocha
1040 m2
Zastavěná plocha
272 m2
Podlahová plocha
1040 m2
Plocha pozemku
387 m2
Elektřina
230V, 400V
Plyn
Plynovod
Odpad
Veřejná kanalizace
Topení
Lokální elektrické, Ústřední plynové, Ústřední dálkové
Komunikace
Dlážděná
Telekomunikace
Internet
Doprava
Vlak, Dálnice, Silnice, MHD, Autobus
Voda
Vodovod
Výtah

Kontaktovat makléře

Realitní kancelář

Logo BUBEN HOMES s.r.o.

BUBEN HOMES s.r.o.

Úšava 109, Staré Sedliště

Chystáte se prodat nemovitost?
Pomůžeme Vám!

Máte zájem o tuto nemovistost?

Tímto, v souladu s nařízením Evropského parlamentu a Rady (EU) 2016/679, v platném znění, prohlašuji, že mi je alespoň 16 let a uděluji tak svůj souhlas se zpracováním zadaných údajů (jméno, telefon, e-mail, ip adresa) společnosti B3 Technology, s.r.o., IČ: 07330600, se sídlem Novostavby 126/23, 435 11 Lom (správce dat), za účelem předání dotazu z tohoto formuláře Vámi vybranému inzerentovi a zpětného kontaktování mé osoby. Osobní údaje bude správce zpracovávat manuálně i automaticky přímo prostřednictvím svých zaměstnanců. Informace předané tímto formulářem budou uloženy v databázi správce maximálně po dobu 10 let. Odvolání souhlasu s uložením a zpracováním poskytnutých dat lze e-mailem na info@bydlisnami.cz. V případě podezření na neoprávněné použití Vámi poskytnutých údajů máte právo předat podnět k šetření Úřadu pro ochranu osobních údajů. Více informací
Chystáte se prodat nemovitost?
Pomůžeme Vám!

Inzerát si prohlédlo 0 lidí

Prodejce

Olga Bubnová

Olga Bubnová

Hlídací pes

Chcete dostávat emailem podobné nabídky prodeje činžovních domů v Plzni?

Podobné nemovitosti