Prodej bytu 2+1, Praha - Modřany, Pod sady, 55 m2

Pod sady, Praha, Modřany

8 860 000 Kč /za nemovitost HYPOTÉKA od 39 599 Kč /za měsíc

(Cena je včetně provize realitní kanceláře.)

Doporučené firmy v Praze 4

Stěhovací služby

Výkup a prodej starého nábytku

Informace k bytu

Hledáte nový byt v Praze, kde máte skutečnou volbu, zda koupit do osobního vlastnictví, nebo zvolit družstevní variantu s nižší vstupní investicí? Právě to nabízí tento nový byt 2+1 v klidné části pražských Modřan.

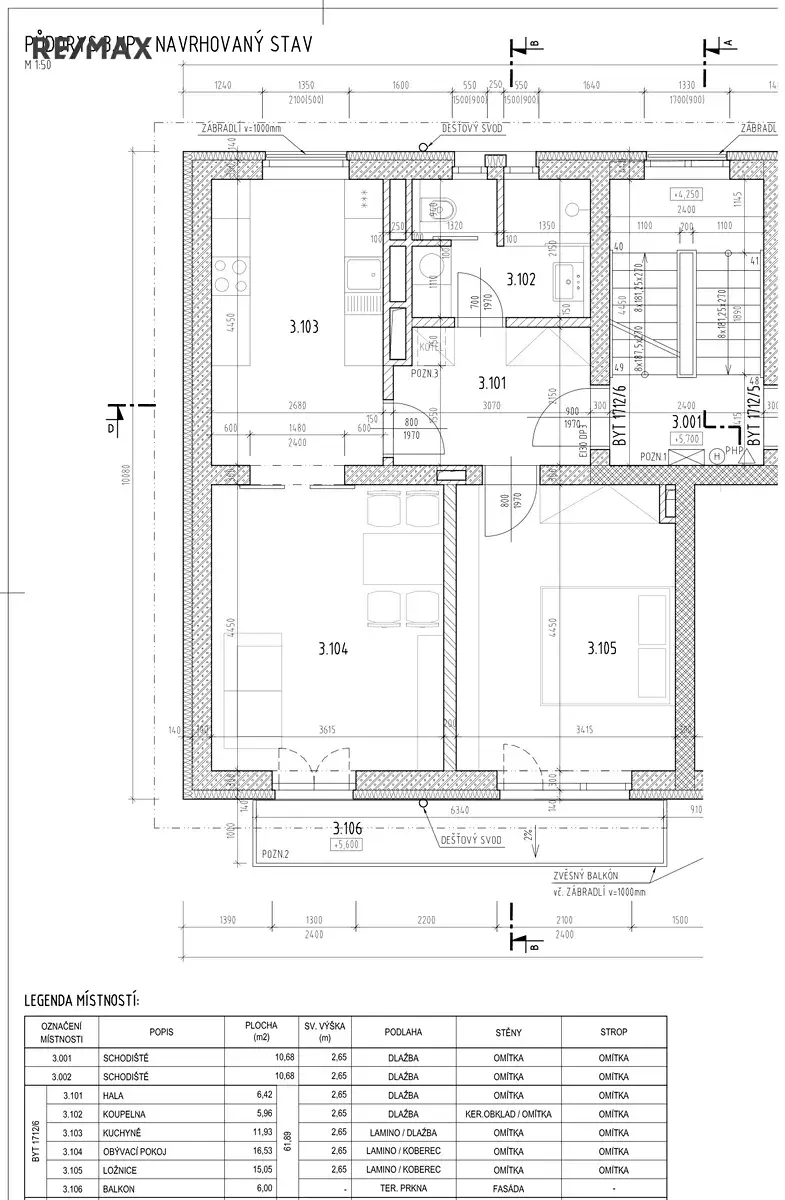
Byt má užitnou plochu 55,89 m², k tomu balkón 6 m² a sklepní jednotku 3,85 m². Celková plocha tvořená bytem, balkónem a sklepem činí 65,74 m². Vzniká v rámci nové zděné nástavby cihlového domu z roku 1960 v ulici Pod Sady.

Byt se nachází v předposledním nadzemním podlaží domu. Nad bytem je ještě jedno podlaží ukončené sedlovou střechou, takže nejste přímo pod střechou, ale zároveň máte vyšší výhled do zeleně, s dostatkem světla a soukromí.

Dispoziční řešení a výměry:
- kuchyně: 11,93 m²
- obývací pokoj: 16,53 m²
- ložnice: 15,05 m²
- hala / předsíň: 6,42 m²
- koupelna s toaletou: 5,96 m²
- balkón: 6 m²
- sklepní jednotka: 3,85 m²

Balkón je orientován na jihovýchod a nabízí výhled do zeleně se vzrostlými stromy, ideální místo pro ranní kávu nebo klidné posezení. Ložnice a koupelna jsou orientovány na severozápad.

Byt bude předán ve stavu s dokončenými podlahami, osazenými zárubněmi a interiérovými dveřmi a kompletně hotovou koupelnou. Pro kuchyňskou linku bude připravena elektroinstalace a napojení na vodu i odpad.

Vytápění je řešeno radiátory, zdrojem tepla i ohřevu vody je plynový kondenzační kotel.
K celé nové nástavbě se váže záruka 5 let, což znamená nový byt bez starostí.

Možnosti financování:
- osobní vlastnictví: kupní cena 8.860.000 Kč
Při financování hypotečním úvěrem je do doby převodu bytu do osobního vlastnictví nutné zajistit úvěr zástavou jiné nemovitosti. Po převodu bytu do osobního vlastnictví lze zástavu standardně převést na tento byt.

- družstevní vlastnictví: platba za převod družstevního podílu ve výši 4.230.000 Kč, zbývající část je hrazena formou měsíčních splátek družstvu, jejichž výše je individuálně projednána

Převod bytu do osobního vlastnictví je možný ihned po dokončení výstavby, plánovaném na přelom 2. a 3. čtvrtletí 2026 a byl již dopředu schválen družstvem.

Dům je komorní, s celkem 16 bytovými jednotkami (8 původních a 8 nových), rozdělenými do dvou vchodů. Výstavba probíhá dle harmonogramu, dokončení je plánováno na září 2026. Dům není vybaven výtahem.

Energetický štítek je nyní veden v třídě G, po dokončení projektu bude zpracován aktuální průkaz energetické náročnosti budovy s výrazně úspornější hodnotou.

Součástí nabídky jsou vizualizace pro inspiraci, znázorňující možnou podobu obývacího pokoje, kuchyně a ložnice.

Pro více informací o bytě, projektu nebo možnostech financování mě neváhejte kontaktovat.

Parametry bytu

Cena
8 860 000 Kč /za nemovitost Spočítat hypotéku
Poznámka k ceně
Cena je včetně provize realitní kanceláře.
Aktualizováno
5. 2. 2026
Adresa
Pod sady, Praha, Modřany
ID
0201-NP03334
Stavba
Cihlová
Stav objektu
Novostavba
Patro
3. z 4
Vybaveno
Ne
Lokalita objektu
Klidná část obce
Vlastnictví
Družstevní
Užitná plocha
55 m2
Podlahová plocha
65 m2
Třída energetické náročnosti
G - Mimořádně nehospodárná
Elektřina
230V
Plyn
Plynovod
Odpad
Veřejná kanalizace
Komunikace
Asfaltová
Telekomunikace
Telefon, Internet, Kabelová televize, Kabelové rozvody
Doprava
Vlak, Dálnice, Silnice, MHD, Autobus
Voda
Vodovod
Topné těleso
Radiátory
Zdroj topení
Plynový kondenzační kotel
Zdroj teplé vody
Plynový kondenzační kotel
Balkon
Sklep
Převod do OV

Kontaktovat makléře

Realitní kancelář

RE/MAX Atrium

Podolská 811/138, Praha 4

Chystáte se prodat nemovitost?
Pomůžeme Vám!

Máte zájem o tento byt?

Tímto, v souladu s nařízením Evropského parlamentu a Rady (EU) 2016/679, v platném znění, prohlašuji, že mi je alespoň 16 let a uděluji tak svůj souhlas se zpracováním zadaných údajů (jméno, telefon, e-mail, ip adresa) společnosti B3 Technology, s.r.o., IČ: 07330600, se sídlem Novostavby 126/23, 435 11 Lom (správce dat), za účelem předání dotazu z tohoto formuláře Vámi vybranému inzerentovi a zpětného kontaktování mé osoby. Osobní údaje bude správce zpracovávat manuálně i automaticky přímo prostřednictvím svých zaměstnanců. Informace předané tímto formulářem budou uloženy v databázi správce maximálně po dobu 10 let. Odvolání souhlasu s uložením a zpracováním poskytnutých dat lze e-mailem na info@bydlisnami.cz. V případě podezření na neoprávněné použití Vámi poskytnutých údajů máte právo předat podnět k šetření Úřadu pro ochranu osobních údajů. Více informací
Chystáte se prodat nemovitost?
Pomůžeme Vám!

Inzerát si prohlédlo 6 lidí

Prodejce

Jan Halík

Jan Halík

Hlídací pes

Chcete dostávat emailem podobné nabídky prodeje bytů 2+1 v Praze 4?

Podobné nemovitosti