Prodej bytu 2+kk, Bar, Černá Hora, 42 m2 (ID: 2541359)

Bar

122 695 € /za nemovitost
Doporučené firmy

Informace k bytu

V prestižní čtvrti Topolica, jedné z nejžádanějších částí města Bar, vzniká moderní rezidenční projekt, který přirozeně spojuje komfort městského bydlení, blízkost moře a dlouhodobou investiční hodnotu. Právě zde nabízíme elegantní apartmán o dispozici 2+kk s podlahovou plochou 46 m², umístěný v 1. nadzemním podlaží. Součástí bytu je terasa o velikosti 7 m², ideální místo pro klidná rána, pomalé snídaně a večery, kdy se den přirozeně zpomalí.

Dispozice je navržena s důrazem na funkčnost a pocit vzdušnosti. Vstupní hala nabízí praktický prostor pro každodenní fungování, obývací část s kuchyňským koutem působí otevřeně a přirozeně propojuje interiér s terasou. Ložnice poskytuje dostatek soukromí a klidu, koupelna je vybavena kvalitními sanitárními prvky značek Villeroy & Boch a Hansgrohe. Celý interiér je postaven na nadčasových materiálech, jako jsou dubové parkety první třídy, italská keramika, hliníkovo-dřevěná okna a dveře a multisplit klimatizace zajišťující komfort po celý rok.

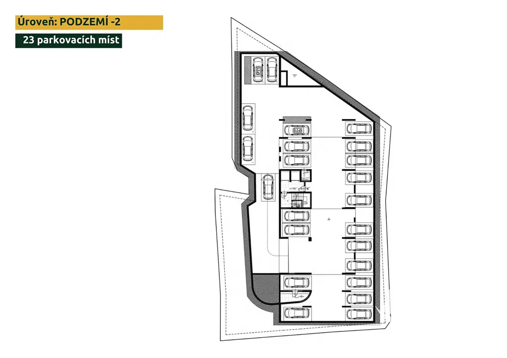
Rezidenční projekt klade důraz i na moderní technologie a dlouhodobou udržitelnost. Samozřejmostí jsou chytré systémy pro bezpečnost a pohodlí, solární panely snižující provozní náklady, energeticky úsporná fasáda ve středomořském stylu a dva spolehlivé výtahy značky OTIS. Celý komplex nabídne 45 bytových jednotek na osmi nadzemních podlažích a dvě podzemní patra s celkem 58 parkovacími místy. Dokončení výstavby je plánováno na konec roku 2026. a nastěhování bude v březnu 2027.

Topolica patří dlouhodobě mezi nejatraktivnější lokality Baru. V pěší vzdálenosti se nachází promenáda, pláž s pozvolným vstupem do moře, restaurace, kavárny, obchody, sportoviště, školy i zdravotnická zařízení. Velkým benefitem je také blízkost řeky Željeznica, pohoří Rumija a připravovaného národního aquaparku, který dá lokalitě další impuls a zvyšuje její budoucí hodnotu.

Město Bar se dynamicky rozvíjí a dlouhodobě přitahuje jak turisty, tak investory. Kombinace stabilního trhu, rostoucí poptávky po kvalitním bydlení a možností krátkodobého i dlouhodobého pronájmu dělá z tohoto apartmánu bezpečnou a smysluplnou investici. Přes 270 slunečných dnů v roce navíc zajišťuje atraktivitu nemovitosti po celý rok, ať už pro vlastní užívání, nebo pronájem.

Tato nemovitost není jen o metrech čtverečních, ale o životním stylu, klidu u moře a hodnotě, která dává smysl i do budoucna. Rádi vám poskytneme detailní informace a provedeme vás celým procesem od výběru až po převzetí klíčů. Tento apartmán může být místem, kde vzniknou nové vzpomínky a zároveň chytrým krokem k dlouhodobému zhodnocení.

Parametry bytu

Cena
122 695 € /za nemovitost
Aktualizováno
6. 2. 2026
Adresa
Bar
ID
F22984
Stavba
Cihlová
Stav objektu
Ve výstavbě
Patro
2. z 9
Vybaveno
Částečně
Lokalita objektu
Klidná část obce
Vlastnictví
Osobní
Užitná plocha
42 m2
Podlahová plocha
46 m2
Elektřina
230V
Odpad
Veřejná kanalizace
Topení
Lokální elektrické
Telekomunikace
Internet
Doprava
Dálnice, Silnice, MHD, Autobus
Voda
Vodovod
Terasa
Výtah
Parkování

Kontaktovat makléře

Máte zájem o tento byt?

Tímto, v souladu s nařízením Evropského parlamentu a Rady (EU) 2016/679, v platném znění, prohlašuji, že mi je alespoň 16 let a uděluji tak svůj souhlas se zpracováním zadaných údajů (jméno, telefon, e-mail, ip adresa) společnosti B3 Technology, s.r.o., IČ: 07330600, se sídlem Novostavby 126/23, 435 11 Lom (správce dat), za účelem předání dotazu z tohoto formuláře Vámi vybranému inzerentovi a zpětného kontaktování mé osoby. Osobní údaje bude správce zpracovávat manuálně i automaticky přímo prostřednictvím svých zaměstnanců. Informace předané tímto formulářem budou uloženy v databázi správce maximálně po dobu 10 let. Odvolání souhlasu s uložením a zpracováním poskytnutých dat lze e-mailem na info@bydlisnami.cz. V případě podezření na neoprávněné použití Vámi poskytnutých údajů máte právo předat podnět k šetření Úřadu pro ochranu osobních údajů. Více informací
Chystáte se prodat nemovitost?
Pomůžeme Vám!

Inzerát si prohlédlo 1 lidí

Prodejce

Nikša Marinkovič

Nikša Marinkovič

Hlídací pes

Chcete dostávat emailem podobné nabídky prodeje bytů 2+kk?

Top nabídky

Podobné nemovitosti