Prodej bytu 1+kk, Praha - Chodov, Samohelova, 29 m2 (ID: 2541804)

Samohelova, Praha, Chodov

4 199 000 Kč /za nemovitost HYPOTÉKA od 18 767 Kč /za měsíc

(včetně poplatků, včetně provize, včetně právního servisu)

Doporučené firmy v Praze 4

Stěhovací služby

Výkup a prodej starého nábytku

Informace k bytu

Útulná garsonka na prodej – skvělá investice nebo startovní bydlení v klidné části Prahy

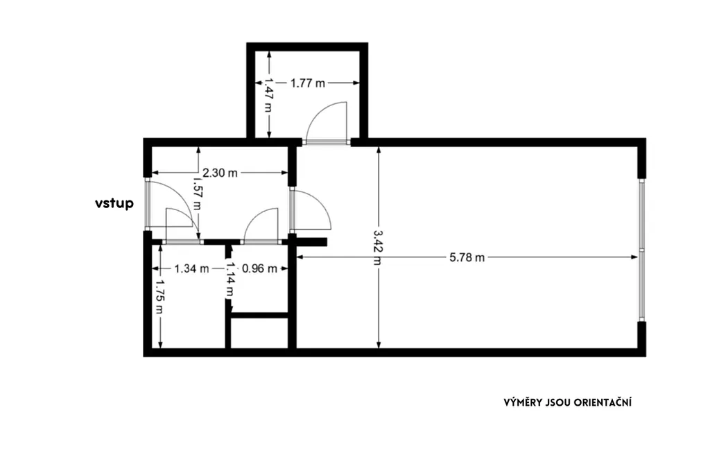
Nabízíme byt o dispozici 1+kk a výměře 29,09 m², nacházející se v 7. patře z 8 panelového domu v ulici Samohelova, Prahy 11 – Chodov.

Byt je v původním stavu, což nabízí příležitost pro rekonstrukci podle vašich představ. Dispozice zahrnuje vstupní chodbu, samostatnou koupelnu, WC, obytnou kuchyni a praktickou komoru. Díky jižní orientaci je byt po celý den příjemně prosvětlený.

Dům byl zrekonstruován uvnitř – nové výtahy, plastová okna, čisté a udržované společné prostory. Byt je v družstevním vlastnictví, anuita je zcela splacená a je možné ho ihned převést do osobního vlastnictví.

Skvělá dopravní dostupnost
V docházkové vzdálenosti se nachází autobusové zastávky Donovalská a Brodského, které zajišťují pohodlné spojení na metro linky C – Opatov (cca 1,7 km). Nájezd na D1 a Pražský okruh je vzdálen pouhých 1,5 km.

Volnočasové aktivity a příroda na dosah
V bezprostředním okolí najdete fitness centrum, wellness, saunový svět, bowling a squash. Jen 500 metrů od domu se rozprostírá Hostivařský lesopark a přehrada, skvělé místo pro procházky, sport i relax. V blízkosti je také zoopark Divoká zahrada, Park u Chodovské tvrze s galerií a kulturním programem (1,5 km) nebo Kunratický les (2,5 km) s hustou sítí lesních cest.

V bytě je nájemnice s roční smlouvou, nájemné 10.000 Kč /měs + poplatky!

Pro více informací mě prosím kontaktujte.

Parametry bytu

Cena
4 199 000 Kč /za nemovitost Spočítat hypotéku
Poznámka k ceně
včetně poplatků, včetně provize, včetně právního servisu
Aktualizováno
7. 2. 2026
Adresa
Samohelova, Praha, Chodov
ID
28066
Stavba
Panelová
Stav objektu
Dobrý
Patro
7. z 8
Vybaveno
Ne
Lokalita objektu
Sídliště
Vlastnictví
Družstevní
Užitná plocha
29 m2
Podlahová plocha
29 m2
Třída energetické náročnosti
C - Úsporná
Ukazatel energetické náročnosti
115.5 kWh/m2 za rok
Elektřina
230V
Plyn
Plynovod
Odpad
Veřejná kanalizace
Doprava
Silnice, MHD, Autobus
Voda
Vodovod
Topné těleso
Radiátory
Zdroj topení
Ústřední dálkové
Zdroj teplé vody
Centrální dálkový ohřev
Výtah
Převod do OV

Kontaktovat makléře

Máte zájem o tento byt?

Tímto, v souladu s nařízením Evropského parlamentu a Rady (EU) 2016/679, v platném znění, prohlašuji, že mi je alespoň 16 let a uděluji tak svůj souhlas se zpracováním zadaných údajů (jméno, telefon, e-mail, ip adresa) společnosti B3 Technology, s.r.o., IČ: 07330600, se sídlem Novostavby 126/23, 435 11 Lom (správce dat), za účelem předání dotazu z tohoto formuláře Vámi vybranému inzerentovi a zpětného kontaktování mé osoby. Osobní údaje bude správce zpracovávat manuálně i automaticky přímo prostřednictvím svých zaměstnanců. Informace předané tímto formulářem budou uloženy v databázi správce maximálně po dobu 10 let. Odvolání souhlasu s uložením a zpracováním poskytnutých dat lze e-mailem na info@bydlisnami.cz. V případě podezření na neoprávněné použití Vámi poskytnutých údajů máte právo předat podnět k šetření Úřadu pro ochranu osobních údajů. Více informací
Chystáte se prodat nemovitost?
Pomůžeme Vám!

Inzerát si prohlédlo 0 lidí

Prodejce

Martina Horáková

Martina Horáková

Hlídací pes

Chcete dostávat emailem podobné nabídky prodeje bytů 1+kk v Praze 4?

Podobné nemovitosti