Prodej bytu 1+1, Praha - Stodůlky, Kettnerova, 46 m2

Kettnerova, Praha, Stodůlky

6 500 000 Kč /za nemovitost HYPOTÉKA od 29 051 Kč /za měsíc

(Včetně právních služeb)

Doporučené firmy v Praze 5

Stěhovací služby

Výkup a prodej starého nábytku

Informace k bytu

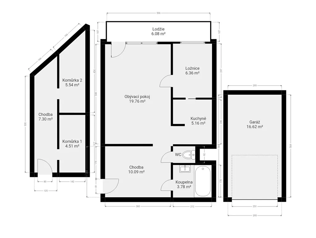
Velice dobře udržovaný byt 1+1 46 m2, dispozičně upravený na 2kk, v 5. patře panelového domu v těsné blízkosti metra Luka.

Všechny místnosti mají samostatný vstup, z obývacího pokoje je vchod na lodžii 6,7 m2.

Koupelna s vanou a toaleta jsou oddělené, zděné. V prostorné chodbě je veliká vestavná šatní skříň. Původní kuchyň je rozdělena příčkou s posuvnými dveřmi na kuchyňský kout a malou ložnici, která má vchod i z obývacího pokoje.

K bytu náleží také komora v přímém sousedství bytu s plochou 19 m2
(viz půdorys). Momentálně je zde chodba a dvě místnosti, ale je zde možnost celý prostor otevřít.

K bytu je možné koupit garáž nacházející se v těsné blízkosti domu. Jedná se o uzavřenou garáž s vraty na dálkové ovládání, plocha 17 m2. Garáž se nabízí samostaně za 1,35 mil, pokud bude garáž koupena společně s bytem, je zde sleva na 1,25 mil.

Přímo na metru Luka je nové nákupní centrum Galerie Luka s velkým množstvím obchodů a služeb.

Parametry bytu

Cena
6 500 000 Kč /za nemovitost Spočítat hypotéku
Poznámka k ceně
Včetně právních služeb
Náklady na bydlení
3500 služby a energie v domě + spotřeba elektřiny
Aktualizováno
7. 2. 2026
Adresa
Kettnerova, Praha, Stodůlky
Stavba
Panelová
Stav objektu
Velmi dobrý
Patro
6.
Vlastnictví
Osobní
Užitná plocha
46 m2
Třída energetické náročnosti
C - Úsporná
Telekomunikace
Internet, Kabelová televize
Doprava
MHD
Zdroj topení
Centrální dálkové
Zdroj teplé vody
Centrální dálkový ohřev
Sklep
Výtah

Kontaktovat makléře

Realitní kancelář

Karin Sýkorová

Švabinského 405/40, Praha

Chystáte se prodat nemovitost?
Pomůžeme Vám!

Máte zájem o tento byt?

Tímto, v souladu s nařízením Evropského parlamentu a Rady (EU) 2016/679, v platném znění, prohlašuji, že mi je alespoň 16 let a uděluji tak svůj souhlas se zpracováním zadaných údajů (jméno, telefon, e-mail, ip adresa) společnosti B3 Technology, s.r.o., IČ: 07330600, se sídlem Novostavby 126/23, 435 11 Lom (správce dat), za účelem předání dotazu z tohoto formuláře Vámi vybranému inzerentovi a zpětného kontaktování mé osoby. Osobní údaje bude správce zpracovávat manuálně i automaticky přímo prostřednictvím svých zaměstnanců. Informace předané tímto formulářem budou uloženy v databázi správce maximálně po dobu 10 let. Odvolání souhlasu s uložením a zpracováním poskytnutých dat lze e-mailem na info@bydlisnami.cz. V případě podezření na neoprávněné použití Vámi poskytnutých údajů máte právo předat podnět k šetření Úřadu pro ochranu osobních údajů. Více informací
Chystáte se prodat nemovitost?
Pomůžeme Vám!

Inzerát si prohlédlo 0 lidí

Prodejce

Bohbot Karin

Bohbot Karin

Hlídací pes

Chcete dostávat emailem podobné nabídky prodeje bytů 1+1 v Praze 5?

Podobné nemovitosti