Prodej bytu 4+kk, Písek, Kocínova, 158 m2 (ID: 2541900)

Kocínova, Písek, Budějovické Předměstí

Cena na vyžádání /za nemovitost Získejte výhodnou HYPOTÉKU

(parkovací stání 336 000,-Kč)

Doporučené firmy v Písku

Výkup a prodej starého nábytku

Informace k bytu

V exkluzivní lokalitě ulice Kocínova, v samotném centru města Písek, vzniká jedinečný developerský projekt Hejtmanský dvůr, který spojuje noblesu historické architektury s nejmodernějšími technologiemi současného bydlení. Dům prochází důkladnou a citlivou rekonstrukcí, při níž architekt kladl důraz na zachování původních historických prvků – včetně působivých kleneb ve vybraných bytech – a jejich propojení s nadčasovým designem.

Projekt nabízí komorní rezidenční bydlení s výtahem, promyšlenými a vzdušnými dispozicemi (2+kk – 4+kk) a dostatkem úložných prostor. Každý byt je navržen v luxusním standardu, s důrazem na kvalitu materiálů, funkčnost i estetiku. Samozřejmostí jsou velkorysé sklepy, praktické úložné prostory přímo v bytě a společná kolárna.

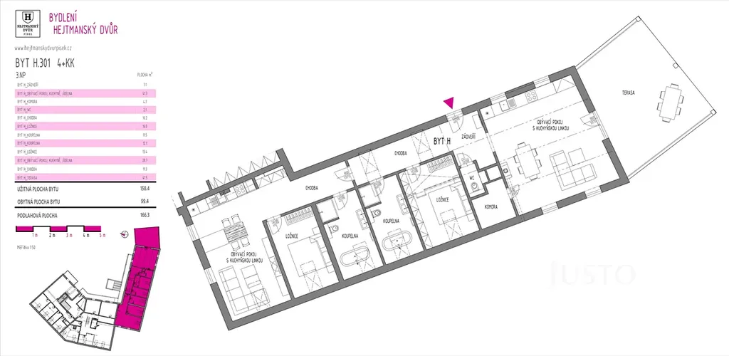
Byt číslo H 301, o dispozici 4+kk na 3. nadzemním podlaží. Jedná se o výjimečný byt s velmi variabilním využitím, vhodný např. jako dvougenerační bydlení či kombinace bydlení a podnikání – byt je řešen jako dva samostatné moduly, z nichž první tvoří 2+kk s koupelnou, dvěma toaletami, terasou a komorou, a druhý modul představuje další samostatnou jednotku 2+kk.

Plochy bytu:
Podlahová plocha bytu (plocha bytu včetně vnitřních příček, dle vyhlášky č. 366/2013, §2 a §3) je 166,3 m².
Vnitřní plocha bytu (bez příček, bez balkonu a sklepu) je 158,4 m².
Sklep o výměře 8 m².
Terasa o výměře 38m²

Koupelna:
Kamenické rohy – bez lišt.
Velkoformátové dlaždice 60×120 cm.
Přesné spáry.
Top zařizovací předměty.
Promyšlené rozvržení a doplňky.
Vybrat si můžete ze dvou nadčasových barevných provedení.

Dveře a podlahy:
Podlahové vytápění, vinylová krytina.
Tři barevná provedení podlah na výběr.
Interiérové dveře s výškou 210 cm ve dvou barevných variantách.

Chytrá domácnost LOXONE:
Ovládání dveří skrze tablet v bytu.
Okamžitá kontrola spotřeby energií za byt.
Ovládání teploty v každé místnosti.
Ovládání předokenních žaluzií.
Ovládání – nabíjení elektromobilu na Wallboxu.

Součástí projektu jsou zastřešená parkovací stání v uzavřeném dvoře, který bude zabezpečen dálkově ovládanými vraty. Ke každému parkovacímu místu je připravena nabíječka pro elektromobil. O komfort a moderní způsob bydlení se stará inteligentní domácnost Loxone, připravenost na klimatizaci a efektivní technické řešení domu – vytápění plynovým kotlem a fotovoltaická elektrárna na střeše, která zajišťuje elektřinu pro společné prostory.

Hejtmanský dvůr představuje harmonii klidu jižních Čech a pohodlí městského života. Elegantní architektura, uzavřený dvůr se zelení a vysoký standard provedení vytvářejí ideální domov pro ty, kteří hledají výjimečné bydlení bez kompromisů – s veškerými službami, kulturou i přírodou na dosah.

Developer realizuje projekt výhradně z vlastních finančních prostředků, takže financování z Vaší strany je velmi jednoduché a bezpečné – na počátku hradíte pouze 10 % z kupní ceny, navíc uložených do advokátní úschovy, přičemž zbývající část kupní ceny se doplácí až po kolaudaci a podpisu kupní smlouvy, což Vám poskytuje dostatečný časový prostor k zajištění financování koupě.

Energetická náročnost budovy je aktuálně uváděna ve třídě D dle projektové dokumentace. Průkaz energetické náročnosti je v současné době přepracováván, neboť původní výpočet nezohledňuje inteligentní řízení domu a bytů systémem Loxone (samostatná regulace teploty v jednotlivých místnostech, meteostanice) ani fotovoltaickou elektrárnu o výkonu cca 10–17 kWp určenou pro denní dohřev teplé vody pro byty.

Parametry bytu

Cena
Cena na vyžádání Spočítat hypotéku
Poznámka k ceně
parkovací stání 336 000,-Kč
Aktualizováno
7. 2. 2026
Adresa
Kocínova, Písek, Budějovické Předměstí
ID
J12405
Stavba
Cihlová
Stav objektu
Ve výstavbě
Patro
3. z 4
Lokalita objektu
Centrum obce
Vlastnictví
Osobní
Užitná plocha
158 m2
Podlahová plocha
166 m2
Třída energetické náročnosti
D - Méně úsporná
Ukazatel energetické náročnosti
117.3 kWh/m2 za rok
Topení
Ústřední plynové
Topné těleso
Podlahové vytápění
Zdroj topení
Plynový kondenzační kotel
Zdroj teplé vody
Plynový kondenzační kotel
Sklep
Terasa
Výtah
Parkování

Kontaktovat makléře

Máte zájem o tento byt?

Tímto, v souladu s nařízením Evropského parlamentu a Rady (EU) 2016/679, v platném znění, prohlašuji, že mi je alespoň 16 let a uděluji tak svůj souhlas se zpracováním zadaných údajů (jméno, telefon, e-mail, ip adresa) společnosti B3 Technology, s.r.o., IČ: 07330600, se sídlem Novostavby 126/23, 435 11 Lom (správce dat), za účelem předání dotazu z tohoto formuláře Vámi vybranému inzerentovi a zpětného kontaktování mé osoby. Osobní údaje bude správce zpracovávat manuálně i automaticky přímo prostřednictvím svých zaměstnanců. Informace předané tímto formulářem budou uloženy v databázi správce maximálně po dobu 10 let. Odvolání souhlasu s uložením a zpracováním poskytnutých dat lze e-mailem na info@bydlisnami.cz. V případě podezření na neoprávněné použití Vámi poskytnutých údajů máte právo předat podnět k šetření Úřadu pro ochranu osobních údajů. Více informací
Chystáte se prodat nemovitost?
Pomůžeme Vám!

Inzerát si prohlédlo 0 lidí

Prodejce

Bc. Ilona Vazačová

Bc. Ilona Vazačová

Hlídací pes

Chcete dostávat emailem podobné nabídky prodeje bytů 4+kk v Písku?

Podobné nemovitosti