Prodej bytu 3+kk, Slušovice, Vítězství, 71 m2

Vítězství, Slušovice

6 549 500 Kč /za nemovitost HYPOTÉKA od 29 272 Kč /za měsíc

(Cena bytové jednotky, parkovacího stání a podílu na pozemku včetně DPH.)

Doporučené firmy v Slušovicích

Informace k bytu

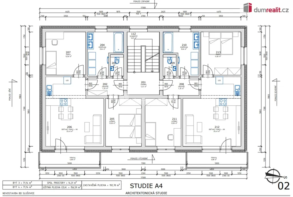
Dumrealit.cz Vám zprostředkuje předprodej nového projektu bytu 3+kk (71 m²) s balkonem a parkováním ve Slušovicích.
Získejte své budoucí bydlení s výhodou první volby a možností dokoupení jednoho garážového stání.
Představujeme Vám jedinečnou příležitost ke koupi bytu 3+kk v rámci nového developerského projektu "Byty Slušovice"
Zahajujeme prodej bytových jednotek v moderním bytovém domě, jehož výstavba teprve začne.
Tento konkrétní byt o podlahové výměře 71 m² se nachází v prvním patře a nabízí komfort s možností vlastního parkovacího stání.
Mějte možnost ovlivnit finální podobu bytu (výběr podlah, obkladů, sanity) dle vlastního vkusu a standardu.
Investice s potenciálem: Koupě novostavby v rané fázi je jednou z nejlepších forem investice.
Byt a dispozice (3+kk, 71 m² čisté podlahové plochy). Byt je navržen s důrazem na funkčnost, moderní design a dostatek denního světla.
Rozvržení: Prostorný obývací pokoj s kuchyňským koutem, samostatná ložnice, koupelna s vanou, umyvadlem a WC.
Komfort: Součástí je vyhrazené parkovací stání u domu. Žádaná lokalita Slušovice Projekt se nachází v lokalitě s kompletní občanskou vybaveností a výbornou dostupností.
Kombinace klidného prostředí a blízkosti centra dělá z tohoto místa ideální volbu pro moderní rodinné bydlení nebo pro stabilní investici.
Nenechte si ujít předprodejní ceny! Kontaktujte nás ještě dnes pro zaslání kompletní dokumentace, vizualizací a podrobných informací o průběhu výstavby a termínech dokončení. Ev. číslo: 654669.

Parametry bytu

Cena
6 549 500 Kč /za nemovitost Spočítat hypotéku
Poznámka k ceně
Cena bytové jednotky, parkovacího stání a podílu na pozemku včetně DPH.
Aktualizováno
18. 3. 2026
Adresa
Vítězství, Slušovice
ID
655283
Stavba
Cihlová
Stav objektu
Ve výstavbě
Patro
2. z 3
Vlastnictví
Osobní
Užitná plocha
71 m2
Podlahová plocha
71 m2
Třída energetické náročnosti
A - Mimořádně úsporná
Ukazatel energetické náročnosti
49 kWh/m2 za rok
Balkon
Lodžie
Parkování

Kontaktovat makléře

Máte zájem o tento byt?

Tímto, v souladu s nařízením Evropského parlamentu a Rady (EU) 2016/679, v platném znění, prohlašuji, že mi je alespoň 16 let a uděluji tak svůj souhlas se zpracováním zadaných údajů (jméno, telefon, e-mail, ip adresa) společnosti B3 Technology, s.r.o., IČ: 07330600, se sídlem Novostavby 126/23, 435 11 Lom (správce dat), za účelem předání dotazu z tohoto formuláře Vámi vybranému inzerentovi a zpětného kontaktování mé osoby. Osobní údaje bude správce zpracovávat manuálně i automaticky přímo prostřednictvím svých zaměstnanců. Informace předané tímto formulářem budou uloženy v databázi správce maximálně po dobu 10 let. Odvolání souhlasu s uložením a zpracováním poskytnutých dat lze e-mailem na info@bydlisnami.cz. V případě podezření na neoprávněné použití Vámi poskytnutých údajů máte právo předat podnět k šetření Úřadu pro ochranu osobních údajů. Více informací
Chystáte se prodat nemovitost?
Pomůžeme Vám!

Inzerát si prohlédlo 21 lidí

Prodejce

Radim Vacula

Radim Vacula

Hlídací pes

Chcete dostávat emailem podobné nabídky prodeje bytů 3+kk v Slušovicích?

Podobné nemovitosti