Prodej bytu 2+kk, Mšené-lázně, Mládežnická, 56 m2

Mládežnická, Mšené-lázně

3 372 000 Kč /za nemovitost HYPOTÉKA od 15 071 Kč /za měsíc

(včetně DPH, včetně provize, včetně právního servisu)

Doporučené firmy v Mšeném

Okna a dveře

Rekonstrukce

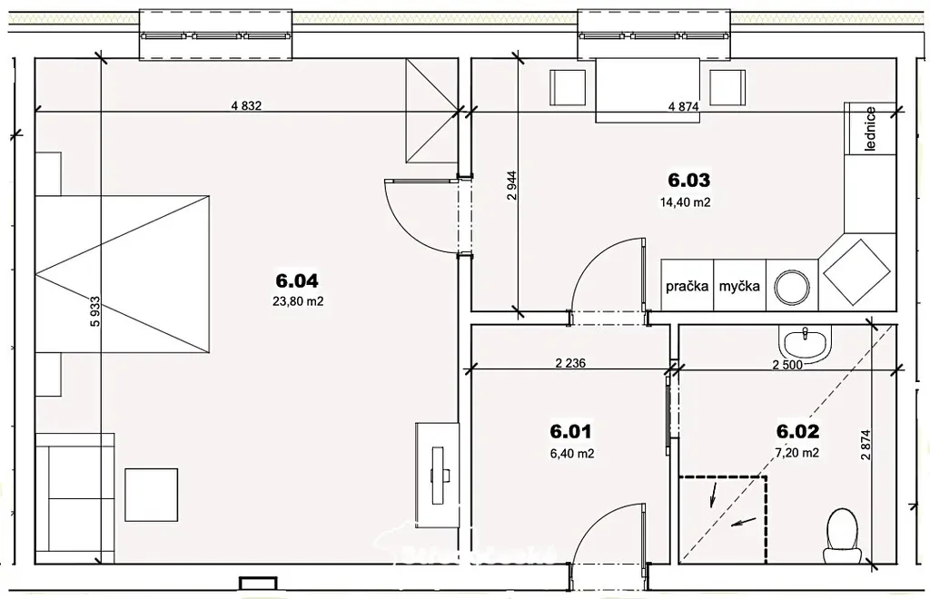
Informace k bytu

Zvažujete smysluplnou investici do nemovitosti s dlouhodobým a stabilním využitím?

Nebo hledáte bezpečné a pohodové bydlení nejen ve vyšším věku, kde máte vše důležité doslova na dosah ruky?

Nabízím bytové jednotky situované pouhých 550 metrů od areálu oblíbených Lázní Mšené, který poskytuje ideální zázemí pro seniory i osoby hledající klid a dostupnou péči.

Bytové jednotky vhodné nejen k lázeňským pobytům, ale i běžnému dlouhodobému pronájmu s možností využití zvýhodněných lázeňských služeb.

Výhody bydlení pro seniory:
- přímá vazba na lázeňskou a lékařskou péči
- dostupné služby: lékař, masáže, wellness, stravování, úklid a další
- bezbariérový přístup u domu Fanda a klidné prostředí uzavřeného areálu
- možnost kulturních a společenských aktivit v areálu lázní
- pocit bezpečí a jistoty každodenního fungování

Investiční potenciál:
- dlouhodobě atraktivní lokalita se stálou poptávkou bydlení pro seniory
- možnost dlouhodobého pronájmu (některé jednotky jsou již obsazené)
- nízké provozní náklady díky menším dispozicím
- stabilní výnos bez nutnosti náročné správy (možná dohoda přímo s provozovatelem lázní)

Nabízený byt č. 6 se nachází v domě Fanda a je řešen jako 1+1/2+kk o výměře 56,2 m², ideální pro jednotlivce, pár, nebo menší rodinu. K bytu náleží parkovací stání (není součástí ceny) a je zde možnost přikoupení zahrádky.

Dům Fanda prošel úpravou, nejedná se o novostavbu, ale o tvz. "second-hand" nemovitost. Byl přizpůsoben malometrážnímu, pohodlnému a bezpečnému bydlení s vazbou na lázeňský areál. Jedná se o jednopodlažní, částečně podsklepený objekt, který je bezbariérově přístupný.

V domě Fanda se nachází:
- šest bytových jednotek 1+kk (od velikosti 21,9 m2 do 33,3 m2)
- pět bytových jednotek 1+1, přičemž některé lze využít jako 2+kk (od velikosti 37,8 m2 do 56,2 m2)
- součástí každé bytové jednotky je chodba, sociální zázemí, kuchyně vč. obytné místnosti (u některých dvě)
- společné prostory jsou tvořeny vstupním zádveřím, chodbou s druhým únikovým východem, technickou místností pro osobu zajištující úklid společných prostor, místností na kočárky a kola, sušárnou a vstupem do technické místnosti umístěné v 1. podzemním podlaží (dům je pouze částečně podsklepen), ve které jsou umístěny zásobníky TUV.
- každý byt má vlastní topení (přímotopy)
- ohřev teplé vody je společný pro celý dům

Okolí lázní nabízí klidnou přírodu, léčivé prostředí a více možností pro procházky, lehkou turistiku i cyklistiku. Za zmínku stojí hora Říp, zámek Libochovice, centrum Litoměřic, torzo Panenský Týnec, Oldřichův dub v Peruci, či hrad Házmburk. V blízké Ředhošti se pravidelně konají tradiční nedělní trhy.

Dobrá dopravní dostupnost do Slaného, Roudnice nad Labem i Prahy (autem i autobusovým spojením).

Nemovitost je bez právních omezení. Možnost financování hypotečním úvěrem, který vám rádi zajistíme.

Parametry bytu

Cena
3 372 000 Kč /za nemovitost Spočítat hypotéku
Poznámka k ceně
včetně DPH, včetně provize, včetně právního servisu
Aktualizováno
6. 3. 2026
Adresa
Mládežnická, Mšené-lázně
ID
N05989
Stavba
Cihlová
Stav objektu
Dobrý
Patro
1.
Vybaveno
Částečně
Vlastnictví
Osobní
Užitná plocha
56 m2
Podlahová plocha
56 m2
Třída energetické náročnosti
C - Úsporná
Ukazatel energetické náročnosti
108 kWh/m2 za rok
Elektřina
230V
Odpad
Veřejná kanalizace
Doprava
Silnice
Voda
Vodovod

Kontaktovat makléře

Máte zájem o tento byt?

Tímto, v souladu s nařízením Evropského parlamentu a Rady (EU) 2016/679, v platném znění, prohlašuji, že mi je alespoň 16 let a uděluji tak svůj souhlas se zpracováním zadaných údajů (jméno, telefon, e-mail, ip adresa) společnosti B3 Technology, s.r.o., IČ: 07330600, se sídlem Novostavby 126/23, 435 11 Lom (správce dat), za účelem předání dotazu z tohoto formuláře Vámi vybranému inzerentovi a zpětného kontaktování mé osoby. Osobní údaje bude správce zpracovávat manuálně i automaticky přímo prostřednictvím svých zaměstnanců. Informace předané tímto formulářem budou uloženy v databázi správce maximálně po dobu 10 let. Odvolání souhlasu s uložením a zpracováním poskytnutých dat lze e-mailem na info@bydlisnami.cz. V případě podezření na neoprávněné použití Vámi poskytnutých údajů máte právo předat podnět k šetření Úřadu pro ochranu osobních údajů. Více informací
Chystáte se prodat nemovitost?
Pomůžeme Vám!

Inzerát si prohlédlo 2 lidí

Prodejce

Bc. Milan Mattanelli

Bc. Milan Mattanelli

Hlídací pes

Chcete dostávat emailem podobné nabídky prodeje bytů 2+kk v Mšeném?

Podobné nemovitosti