Prodej bytu 3+kk, Praha - Podolí, Levá, 150 m2

Levá, Praha, Podolí

25 000 000 Kč /za nemovitost HYPOTÉKA od 111 735 Kč /za měsíc

(cena včetně provize a právních služeb)

Doporučené firmy v Praze 4

Stěhovací služby

Výkup a prodej starého nábytku

Informace k bytu

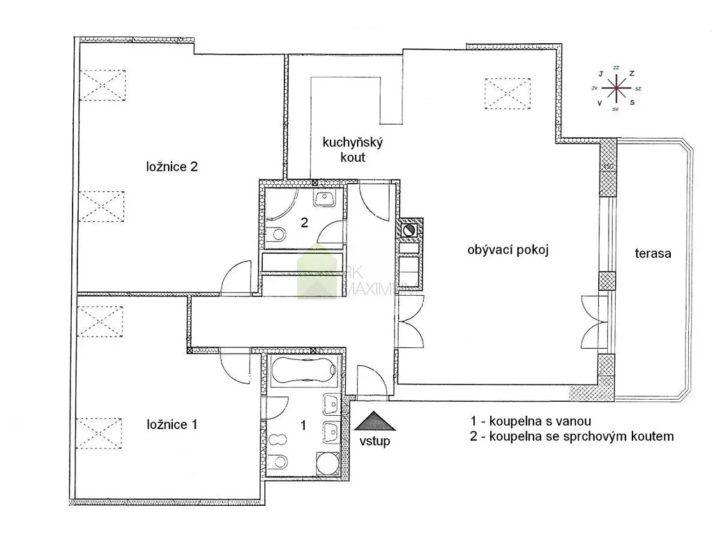
Exkluzívně nabízíme k prodeji krásný světlý byt s velkou SZ orientovanou terasou a nádherným výhledem na Prahu. Poslední 6. NP cihlového výborně udržovaného činžovního domu s výtahem na prestižní adrese v Praze 4 - Podolí. Byt o dispozici 3+kk (s možností změny na 4+kk), plocha bytu 137 m2 + terasa 13m2 + sklep) , rok výstavby 2003, výborný technický stav. K dispozici jsou prostorný obývací pokoj s kuchyňským a jídelním koutem, dvě velké ložnice s vestavěnými skříněmi, jedna koupelna se 2 umyvadly, vanou, bidetem a toaletou, druhá koupelna se sprchovým koutem a toaletou a předsíň s vestavěnými skříněmi. V obývacím pokoji je klimatizační jednotka. Přesnější dispozici bytu vidíte na plánku. Terasa byla nově obložena v r. 2025, sklep je zděný, velký a velmi dobře zabezpečený. Bezproblémové parkování v blízkém okolí, modrá zóna. Výborná dopravní dostupnost do centra tramvají, příp. 5 min busem na metro C. V místě je veškerá občanská vybavenost, v těsné blízkosti vltavské nábřeží s cyklostezkou, hřišti, loděnicí, plaveckým stadionem a dalšími možnostmi sportovního vyžití. Velice příjemné bydlení jak pro pár, tak pro rodinu s dětmi. Makléřka telefonicky sdělí doplňující informace. Prohlídky možné od 1.3.2026, nastěhování po 1.6.2026.

Parametry bytu

Cena
25 000 000 Kč /za nemovitost Spočítat hypotéku
Poznámka k ceně
cena včetně provize a právních služeb
Aktualizováno
15. 2. 2026
Adresa
Levá, Praha, Podolí
ID
DS-520
Stavba
Cihlová
Stav objektu
Po rekonstrukci
Patro
6. z 6
Vybaveno
Částečně
Vlastnictví
Osobní
Užitná plocha
150 m2
Podlahová plocha
137 m2
Třída energetické náročnosti
F - Velmi nehospodárná
Ukazatel energetické náročnosti
172 kWh/m2 za rok
Plyn
Plynovod
Odpad
Veřejná kanalizace
Topení
Ústřední plynové
Komunikace
Asfaltová
Telekomunikace
Internet, Kabelové rozvody
Doprava
Dálnice, Silnice, MHD, Autobus
Voda
Vodovod
Topné těleso
Radiátory
Zdroj topení
Ústřední dálkové
Sklep
Terasa
Výtah
Bezbarierový přístup

Kontaktovat makléře

Realitní kancelář

RK MAXIMUM

Kloboučnická 1697/25, Praha 4

Chystáte se prodat nemovitost?
Pomůžeme Vám!

Máte zájem o tento byt?

Tímto, v souladu s nařízením Evropského parlamentu a Rady (EU) 2016/679, v platném znění, prohlašuji, že mi je alespoň 16 let a uděluji tak svůj souhlas se zpracováním zadaných údajů (jméno, telefon, e-mail, ip adresa) společnosti B3 Technology, s.r.o., IČ: 07330600, se sídlem Novostavby 126/23, 435 11 Lom (správce dat), za účelem předání dotazu z tohoto formuláře Vámi vybranému inzerentovi a zpětného kontaktování mé osoby. Osobní údaje bude správce zpracovávat manuálně i automaticky přímo prostřednictvím svých zaměstnanců. Informace předané tímto formulářem budou uloženy v databázi správce maximálně po dobu 10 let. Odvolání souhlasu s uložením a zpracováním poskytnutých dat lze e-mailem na info@bydlisnami.cz. V případě podezření na neoprávněné použití Vámi poskytnutých údajů máte právo předat podnět k šetření Úřadu pro ochranu osobních údajů. Více informací
Chystáte se prodat nemovitost?
Pomůžeme Vám!

Inzerát si prohlédlo 0 lidí

Prodejce

Ing. Šrajhansová Daniela

Ing. Šrajhansová Daniela

Hlídací pes

Chcete dostávat emailem podobné nabídky prodeje bytů 3+kk v Praze 4?

Podobné nemovitosti