Prodej bytu 1+1, Praha - Žižkov, Baranova, 49 m2

Baranova, Praha, Žižkov

8 550 000 Kč /za nemovitost HYPOTÉKA od 38 213 Kč /za měsíc
Doporučené firmy v Praze 3

Stěhovací služby

Výkup a prodej starého nábytku

Informace k bytu

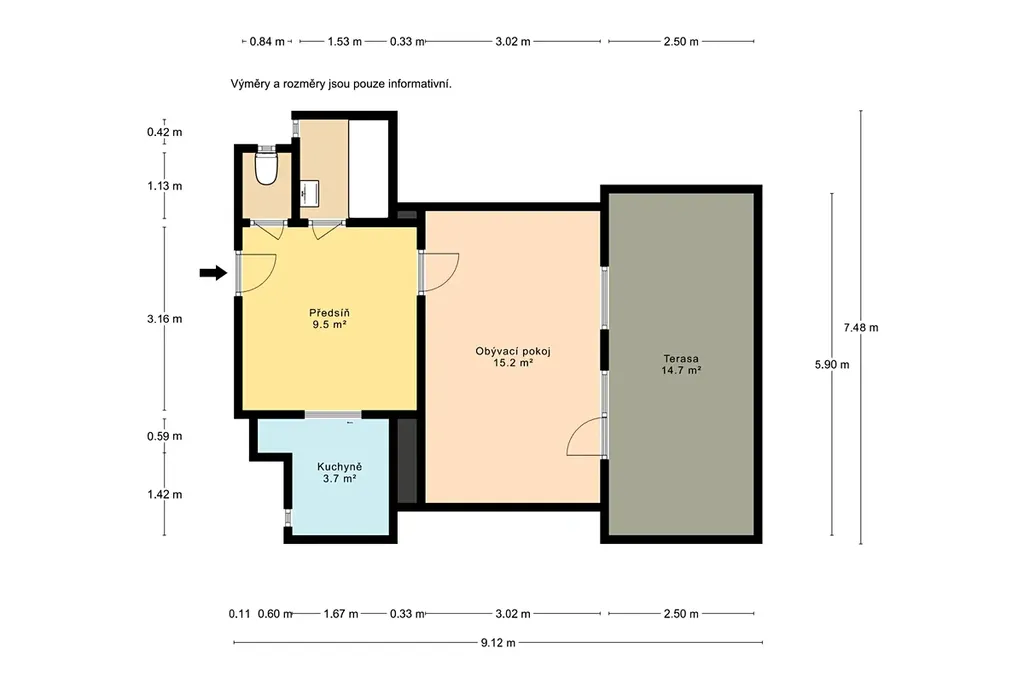
Atypický střešní byt 1+1 s vlastní terasou a s užitnou plochou 49 m2 + sklepní kojí se nachází v klidné lokalitě na pomezí Žižkova a Vinohrad (ul. Baranova) v cihlovém domě s výtahem.

Byt je vkusně vybaven nábytkem na míru s velkorysým úložným prostorem pro všechny potřebné věci.
Po vstupu do bytu se ocitnete v chodbě, která poskytuje zmíněný úložný prostor prostřednictvím vestavných skříní, které jsou díky vysokým stropům doopravdy velkorysé.
Součástí je také výklopný pracovní stůl, který promění chodbu ve Vaši pracovnu.

Dále zde naleznete vchod do kuchyňského koutu s kamennou kuchyňskou deskou. Lednice, indukční deska, elektrická trouba, digestoř, myčka a další úložné prostory.

Z chodby se dostanete do koupelny s velkou masážní vanou, která vybízí k relaxaci po těžkém dnu. Je zde možnost připojení pračky a sušičky. Nechybí samostatné WC


Obývací pokoj je vybaven vysokou vestavnou skříní, je zde vchod na terasu s orientací na jihozápad a výhledem na Žižkovskou věž. Hlavně v letních měsících je krásný výhled na západ slunce a možnost posedět na terase a relaxovat po pracovním dnu.

Příčka mezi vstupní halou a obývacím pokojem není nosná. Tedy je zde možnost úpravy dispozice bytu.

Byt se nachází v 7 NP, je opatřen bezpečnostními dveřmi. Připojení na internet je samozřejmostí. Před domem modré parkovací zóny, lze si posléze zřídit parkovací kartu.

Kompletní občanská vybavenost. Restaurace, kavárny v docházkové vzdálenosti. Obchodní centrum Flora cca 2 minuty pěšky. Stejně vzdáleny jsou zastávky tramvaje či metra. Nám. Jiřího z Poděbrad 5 minut pěšky.


Prohlídky dle domluvy s makléřem.

S financováním kupní ceny rádi pomůžeme.

Energetický štítek G z důvodu nedodání, bude doplněno.

Parametry bytu

Cena
8 550 000 Kč /za nemovitost Spočítat hypotéku
Aktualizováno
17. 2. 2026
Adresa
Baranova, Praha, Žižkov
Stavba
Cihlová
Stav objektu
Dobrý
Patro
7.
Vybaveno
Ne
Lokalita objektu
Klidná část obce
Vlastnictví
Osobní
Užitná plocha
49 m2
Třída energetické náročnosti
G - Mimořádně nehospodárná
Elektřina
230V
Odpad
Veřejná kanalizace
Komunikace
Asfaltová
Telekomunikace
Internet
Doprava
Silnice, MHD
Voda
Vodovod
Topné těleso
Radiátory
Zdroj topení
Ústřední dálkové
Zdroj teplé vody
Centrální dálkový ohřev
Sklep
Terasa
Výtah
Bezbarierový přístup

Kontaktovat makléře

Realitní kancelář

My Reality

Klimentská 1443/50, Praha, Nové Město

Chystáte se prodat nemovitost?
Pomůžeme Vám!

Máte zájem o tento byt?

Tímto, v souladu s nařízením Evropského parlamentu a Rady (EU) 2016/679, v platném znění, prohlašuji, že mi je alespoň 16 let a uděluji tak svůj souhlas se zpracováním zadaných údajů (jméno, telefon, e-mail, ip adresa) společnosti B3 Technology, s.r.o., IČ: 07330600, se sídlem Novostavby 126/23, 435 11 Lom (správce dat), za účelem předání dotazu z tohoto formuláře Vámi vybranému inzerentovi a zpětného kontaktování mé osoby. Osobní údaje bude správce zpracovávat manuálně i automaticky přímo prostřednictvím svých zaměstnanců. Informace předané tímto formulářem budou uloženy v databázi správce maximálně po dobu 10 let. Odvolání souhlasu s uložením a zpracováním poskytnutých dat lze e-mailem na info@bydlisnami.cz. V případě podezření na neoprávněné použití Vámi poskytnutých údajů máte právo předat podnět k šetření Úřadu pro ochranu osobních údajů. Více informací
Chystáte se prodat nemovitost?
Pomůžeme Vám!

Inzerát si prohlédlo 0 lidí

Prodejce

František Kafka

František Kafka

Hlídací pes

Chcete dostávat emailem podobné nabídky prodeje bytů 1+1 v Praze 3?

Podobné nemovitosti