Prodej vícegeneračního domu, Olšany, 392 m2 (ID: 2551266)

Olšany

25 750 000 Kč /za nemovitost HYPOTÉKA od 115 087 Kč /za měsíc
Doporučené firmy v Olšanech

Informace k domu

Exkluzivní rodinné sídlo v Olšanech u Rousínova soukromí, prostor a styl
Představte si místo, kde den začíná šuměním lesa a vůní trávy.
Místo, kde nemusíte spěchat a můžete si užívat život ve vlastním tempu.
Rodinné sídlo Veronese nabízí víc než jen bydlení je to prostor pro život, inspiraci i setkávání celé rodiny.

Prostor pro rodinu i hosty
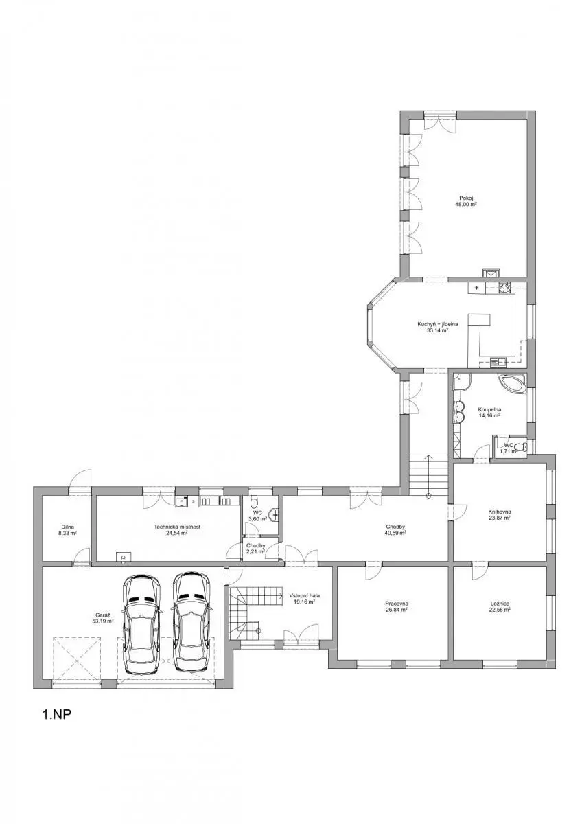
Dům s užitnou plochou 392 m2 je navržen tak, aby spojoval společný život i soukromí.
V přízemí se nachází hlavní byt velkorysý obývací prostor s kuchyní a vstupem na terasu.
V patře jsou dvě samostatné jednotky s přípravou na kuchyně ideální pro vícegenerační bydlení, hosty nebo pronájem.
Součástí je garáž pro tři vozy, dílna a dostatek parkovacích míst pro návštěvy.

Zahrada pro odpočinek i zábavu
Pozemek o rozloze 3 190 m2 nabízí naprosté soukromí a harmonii s okolní přírodou.
Najdete zde vyhřívaný bazén 12 × 5,5 m s lamelovým zakrytím, automatické zavlažování a zahradní osvětlení.
Součástí je i připravená plocha pro tenisový kurt nebo jiné sportovní využití.
Tato zahrada je ideálním místem pro relaxaci, sport i společná setkání s rodinou a přáteli.

Komfort v každém detailu
Podlahové vytápění v obývacím pokoji, kuchyni, koupelnách i chodbách.
Vířivé vany v koupelnách, příprava na saunu, kondenzační plynový kotel, garážová vrata a brána na dálkové ovládání.
Dům je připojen na DSL internet a poskytuje vše pro pohodlné moderní bydlení.

Lokalita klid na dosah města
Olšany jsou malebná obec obklopená lesy, pouhých 28 km od centra Brna a 8 km od dálnice D1.
V okolí najdete turistické a cyklistické trasy, lesní stezky i přírodní krásy jižní Moravy.
Ideální místo pro ty, kdo hledají klidné prostředí s výbornou dostupností.

Nemovitost s charakterem
Rodinné sídlo Veronese je určeno pro ty, kteří hledají víc než jen dům hledají prostor s duší.
Místo, které spojuje soukromí, eleganci a inspirativní atmosféru.
Přijďte si ho prohlédnout osobně a zažijte jeho jedinečnou energii.

Parametry domu

Cena
25 750 000 Kč /za nemovitost Spočítat hypotéku
Aktualizováno
18. 2. 2026
Adresa
Olšany
ID
1065
Stavba
Cihlová
Stav objektu
Velmi dobrý
Typ objektu
Patrový
Druh objektu
V bloku
Užitná plocha
392 m2
Zastavěná plocha
392 m2
Podlahová plocha
392 m2
Plocha pozemku
3190 m2
Plocha zahrady
2800 m2
Odpad
Veřejná kanalizace
Topení
Ústřední plynové
Topné těleso
Podlahové vytápění, Radiátory
Zdroj topení
Plynový kondenzační kotel
Balkon
Garáž
Bezbarierový přístup
Parkování
Bazén

Kontaktovat makléře

Máte zájem o tento dům?

Tímto, v souladu s nařízením Evropského parlamentu a Rady (EU) 2016/679, v platném znění, prohlašuji, že mi je alespoň 16 let a uděluji tak svůj souhlas se zpracováním zadaných údajů (jméno, telefon, e-mail, ip adresa) společnosti B3 Technology, s.r.o., IČ: 07330600, se sídlem Novostavby 126/23, 435 11 Lom (správce dat), za účelem předání dotazu z tohoto formuláře Vámi vybranému inzerentovi a zpětného kontaktování mé osoby. Osobní údaje bude správce zpracovávat manuálně i automaticky přímo prostřednictvím svých zaměstnanců. Informace předané tímto formulářem budou uloženy v databázi správce maximálně po dobu 10 let. Odvolání souhlasu s uložením a zpracováním poskytnutých dat lze e-mailem na info@bydlisnami.cz. V případě podezření na neoprávněné použití Vámi poskytnutých údajů máte právo předat podnět k šetření Úřadu pro ochranu osobních údajů. Více informací
Chystáte se prodat nemovitost?
Pomůžeme Vám!

Inzerát si prohlédlo 0 lidí

Prodejce

Jaroslava Chelíková

Jaroslava Chelíková

Hlídací pes

Chcete dostávat emailem podobné nabídky prodeje vícegeneračních domů v Olšanech (okr. Vyškov)?

Podobné nemovitosti