Prodej bytu 2+1, České Budějovice, Staroměstská, 52 m2

Staroměstská, České Budějovice 3

4 690 000 Kč /za nemovitost HYPOTÉKA od 20 961 Kč /za měsíc

(Cena je uvedena včetně kompletních služeb RK (provize CZK 110.000,-). )

Doporučené firmy v Českých Budějovicích

Výkup a prodej starého nábytku

Informace k bytu

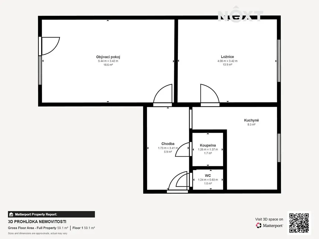
Nabízíme prodej pěkného družstevního bytu o celkové dispozici 2+1 (celková plocha 56 m2, užitná plocha 52 m2) nacházející se ve 4. patře panelového domu z celkem 6 pater. Bytový dům se nachází v atraktivní lokalitě poblíž centra města České Budějovice v ulici Staroměstská.

Byt je ve velmi dobrém a udržovaném stavu, připravený k okamžitému bydlení bez nutnosti investic. Dispozice nabízí ložnici, obývací pokoj, kuchyň, koupelnu se sprchou a samostatné WC. Z obývacího pokoje je vstup na balkón, který nabídne místo pro odpočinek.

Velkou výhodou je orientace bytu na východ a západ, díky čemuž je byt po celý den příjemně světlý. Byt se nachází ve střední části bytového domu, což zajišťuje velmi dobrou tepelnou a nízké provozní náklady. Celkové náklady na bydlení činí 4.700 Kč měsíčně, z čehož zálohy na teplou vodu a fond oprav představují 3.500 Kč a náklady na elektřinu a internet 1.200 Kč. V zimních měsících tak není potřeba výrazně vytápět, byt je přirozeně teplý díky okolním jednotkám. K bytu náleží sklep o celkové výměře 2 m2.

Atraktivní lokalita v širším centru města nabízí veškerou občanskou vybavenost v docházkové vzdálenosti jako obchody (IGY obchodní centrum), MHD, školy (Kubatova Základní škola), školky, lékaře i služby (restaurace, kavárny, kadeřnictví apod.).

Hledáte byt pro vlastní bydlení, a nebo investiční příležitost na skvělém místě? Právě jste ho našli. Těšíme na prohlídky s Vámi. Vašemu času se maximálně přizpůsobíme. V případě zájmu zajistíme výhodné financování. Pro komunikaci uvádějte evidenční číslo zakázky N116323.

Parametry bytu

Cena
4 690 000 Kč /za nemovitost Spočítat hypotéku
Poznámka k ceně
Cena je uvedena včetně kompletních služeb RK (provize CZK 110.000,-).
Aktualizováno
9. 4. 2026
Adresa
Staroměstská, České Budějovice 3
ID
N116323
Stavba
Panelová
Stav objektu
Dobrý
Patro
5. z 7
Vybaveno
Ano
Lokalita objektu
Centrum obce
Vlastnictví
Družstevní
Užitná plocha
52 m2
Podlahová plocha
56 m2
Třída energetické náročnosti
C - Úsporná
Elektřina
230V
Odpad
Veřejná kanalizace
Topení
Ústřední dálkové
Komunikace
Asfaltová
Doprava
Vlak, Dálnice, Silnice, MHD, Autobus
Voda
Vodovod
Topné těleso
Radiátory
Zdroj topení
Ústřední dálkové
Zdroj teplé vody
Centrální dálkový ohřev
Balkon
Sklep
Výtah
Bezbarierový přístup
Převod do OV

Kontaktovat makléře

Realitní kancelář

NEXT REALITY ČESKÉ BUDĚJOVICE

České Vrbné 2403, České Budějovice

Chystáte se prodat nemovitost?
Pomůžeme Vám!

Máte zájem o tento byt?

Tímto, v souladu s nařízením Evropského parlamentu a Rady (EU) 2016/679, v platném znění, prohlašuji, že mi je alespoň 16 let a uděluji tak svůj souhlas se zpracováním zadaných údajů (jméno, telefon, e-mail, ip adresa) společnosti B3 Technology, s.r.o., IČ: 07330600, se sídlem Novostavby 126/23, 435 11 Lom (správce dat), za účelem předání dotazu z tohoto formuláře Vámi vybranému inzerentovi a zpětného kontaktování mé osoby. Osobní údaje bude správce zpracovávat manuálně i automaticky přímo prostřednictvím svých zaměstnanců. Informace předané tímto formulářem budou uloženy v databázi správce maximálně po dobu 10 let. Odvolání souhlasu s uložením a zpracováním poskytnutých dat lze e-mailem na info@bydlisnami.cz. V případě podezření na neoprávněné použití Vámi poskytnutých údajů máte právo předat podnět k šetření Úřadu pro ochranu osobních údajů. Více informací
Chystáte se prodat nemovitost?
Pomůžeme Vám!

Inzerát si prohlédlo 7 lidí

Prodejce

Klára Šašková

Klára Šašková

Hlídací pes

Chcete dostávat emailem podobné nabídky prodeje bytů 2+1 v Českých Budějovicích?

Podobné nemovitosti