Soccer reality

Prodej bytu 2+kk, Klecany, V Honech, 46 m2

V Honech, Klecany

5 749 000 Kč /za nemovitost HYPOTÉKA od 25 695 Kč /za měsíc

(včetně provize a právního servisu)

Doporučené firmy v Klecanech

Informace k bytu

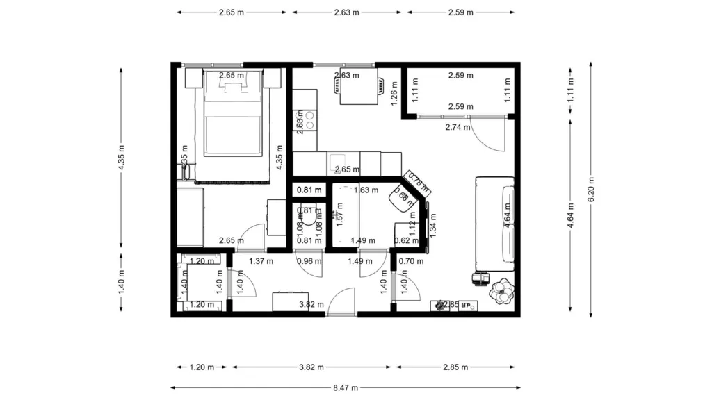
Nabízíme Vám ke koupi byt 2kk (44 m2), s lodžií (5 m2), komorou (2,3 m2) sloužící jako sklep a možností parkovacího stání přímo před okny bytu. Byt je umístěn v bytovém domě z roku 2009 v obci Klecany. Velkou výhodou jsou praktické dispozice bytu. Obývací pokoj se vstupem na lodžii bytu je propojený s kuchyní. Ta je vybavena kuchyňskou linkou se základními spotřebiči. Ložnice bytu je samostatná. Příjemná je úložná šatna. Koupelna s vanou a toaleta je oddělená. Zmiňovaná komora bytu, sloužící jako sklep, je na stejném patře. Lodžie je chráněná mříží a celý byt má předokenní žaluzie. Na auto zaparkované na příslušném parkovacím místě je pohodlně vidět z bytu a lze jej dokoupit za 270.000,-Kč.

Osobní prohlídky jsou možné po dohodě. Pro vážné zájemce máme nachystanou kompletní dokumentaci pro získání informací a potřebného přehledu.

Parametry bytu

Cena
5 749 000 Kč /za nemovitost Spočítat hypotéku
Poznámka k ceně
včetně provize a právního servisu
Aktualizováno
7. 4. 2026
Adresa
V Honech, Klecany
ID
N00639
Stavba
Cihlová
Stav objektu
Velmi dobrý
Patro
1. z 7
Lokalita objektu
Klidná část obce
Vlastnictví
Osobní
Užitná plocha
46 m2
Podlahová plocha
44 m2
Třída energetické náročnosti
C - Úsporná
Odpad
Veřejná kanalizace
Topení
Ústřední dálkové
Telekomunikace
Internet
Doprava
Dálnice, Silnice, Autobus
Voda
Vodovod
Lodžie
Výtah
Parkování

Kontaktovat makléře

Realitní kancelář

Zuzana Lang s.r.o.

Armádní 886, Mladá, 289 24 Milovice, Beroun

Chystáte se prodat nemovitost?
Pomůžeme Vám!

Máte zájem o tento byt?

Tímto, v souladu s nařízením Evropského parlamentu a Rady (EU) 2016/679, v platném znění, prohlašuji, že mi je alespoň 16 let a uděluji tak svůj souhlas se zpracováním zadaných údajů (jméno, telefon, e-mail, ip adresa) společnosti B3 Technology, s.r.o., IČ: 07330600, se sídlem Novostavby 126/23, 435 11 Lom (správce dat), za účelem předání dotazu z tohoto formuláře Vámi vybranému inzerentovi a zpětného kontaktování mé osoby. Osobní údaje bude správce zpracovávat manuálně i automaticky přímo prostřednictvím svých zaměstnanců. Informace předané tímto formulářem budou uloženy v databázi správce maximálně po dobu 10 let. Odvolání souhlasu s uložením a zpracováním poskytnutých dat lze e-mailem na info@bydlisnami.cz. V případě podezření na neoprávněné použití Vámi poskytnutých údajů máte právo předat podnět k šetření Úřadu pro ochranu osobních údajů. Více informací
Chystáte se prodat nemovitost?
Pomůžeme Vám!

Inzerát si prohlédlo 6 lidí

Prodejce

Bc. Zuzana Lang DiS

Bc. Zuzana Lang DiS

Hlídací pes

Chcete dostávat emailem podobné nabídky prodeje bytů 2+kk v Klecanech?

Podobné nemovitosti