Prodej bytu 1+kk, České Budějovice, Branišovská, 37 m2

Branišovská, České Budějovice 2

4 500 000 Kč /za nemovitost HYPOTÉKA od 20 112 Kč /za měsíc
Doporučené firmy v Českých Budějovicích

Výkup a prodej starého nábytku

Informace k bytu

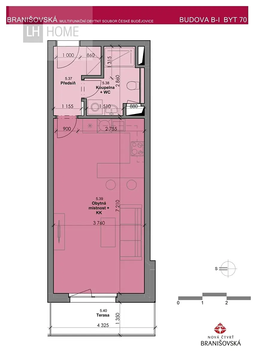
Nabízíme prodej bytu 1+kk o výměře 37,3 m² s balkonem 5,8 m² v moderním rezidenčním projektu Nová čtvrť Branišovská v Českých Budějovicích.
Byt se bude nacházet v 5. nadzemním podlaží a bude orientovaný na západní stranu, což zajistí dostatek přirozeného světla a příjemnou atmosféru v odpoledních hodinách.
Bytový dům bude mít celkem 8 nadzemních podlaží a 1 podzemní podlaží, kde budou umístěna garážová parkovací stání a sklepní kóje.

Součástí kupní ceny jsou:
• vinylové podlahy
• keramické obklady a dlažby v koupelně a na WC
• prostorný sprchový kout
• koupelnová skříňka s umyvadlem a zrcadlem
• topný žebřík
• závěsná toaleta
• bílé interiérové dveře s obložkami
• videotelefon v každém bytě
• předokenní rolety

Nízké provozní náklady garantuje energetický štítek A.

Výstavba již byla zahájena, předpokládaný termín dokončení je 4. čtvrtletí roku 2028.
Byt je možné zakoupit do osobního i družstevního vlastnictví.

Celkem vznikne v projektu přes 300 nových bytů o dispozicích 1+kk, 2+kk, 3+kk a 4+kk. Všechny byty s balkónem, lodžií nebo terasou.
Aktuálně je prodáno již více než 150 bytů.
Přehled aktuálně volných jednotek naleznete na našich webových stránkách nebo vám jej rádi zašleme na vyžádání.

Parametry bytu

Cena
4 500 000 Kč /za nemovitost Spočítat hypotéku
Aktualizováno
25. 2. 2026
Adresa
Branišovská, České Budějovice 2
ID
B-I 70 - 1+kk, OV
Stavba
Smíšená
Stav objektu
Novostavba
Patro
5. z 8
Vybaveno
Ne
Lokalita objektu
Klidná část obce
Vlastnictví
Osobní
Užitná plocha
37 m2
Třída energetické náročnosti
A - Mimořádně úsporná
Elektřina
400V
Odpad
Veřejná kanalizace
Komunikace
Asfaltová
Telekomunikace
Internet
Doprava
Vlak, Dálnice, Silnice, MHD, Autobus
Voda
Vodovod, Retenční nádrž na dešt’ovou vodu
Topné těleso
Radiátory
Zdroj topení
Centrální dálkové, Pára s výměníkem
Balkon
Výtah
Bezbarierový přístup

Kontaktovat makléře

Realitní kancelář

Luxury Home s.r.o.

Tepelská 137/3, Mariánské Lázně

Chystáte se prodat nemovitost?
Pomůžeme Vám!

Máte zájem o tento byt?

Tímto, v souladu s nařízením Evropského parlamentu a Rady (EU) 2016/679, v platném znění, prohlašuji, že mi je alespoň 16 let a uděluji tak svůj souhlas se zpracováním zadaných údajů (jméno, telefon, e-mail, ip adresa) společnosti B3 Technology, s.r.o., IČ: 07330600, se sídlem Novostavby 126/23, 435 11 Lom (správce dat), za účelem předání dotazu z tohoto formuláře Vámi vybranému inzerentovi a zpětného kontaktování mé osoby. Osobní údaje bude správce zpracovávat manuálně i automaticky přímo prostřednictvím svých zaměstnanců. Informace předané tímto formulářem budou uloženy v databázi správce maximálně po dobu 10 let. Odvolání souhlasu s uložením a zpracováním poskytnutých dat lze e-mailem na info@bydlisnami.cz. V případě podezření na neoprávněné použití Vámi poskytnutých údajů máte právo předat podnět k šetření Úřadu pro ochranu osobních údajů. Více informací
Chystáte se prodat nemovitost?
Pomůžeme Vám!

Inzerát si prohlédlo 32 lidí

Prodejce

Antonie Hadačová

Antonie Hadačová

Hlídací pes

Chcete dostávat emailem podobné nabídky prodeje bytů 1+kk v Českých Budějovicích?

Podobné nemovitosti