Prodej bytu 1+kk, České Budějovice, Branišovská, 37 m2 (ID: 2558698)

Branišovská, České Budějovice 2

4 500 000 Kč /za nemovitost HYPOTÉKA od 20 112 Kč /za měsíc
Doporučené firmy v Českých Budějovicích

Výkup a prodej starého nábytku

Informace k bytu

Družstevní bydlení s možností převodu do osobního vlastnictví – Nová čtvrť Branišovská

Využijte jedinečnou příležitost stát se členem bytového družstva v právě zahájené druhé etapě projektu Nová čtvrť Branišovská B!
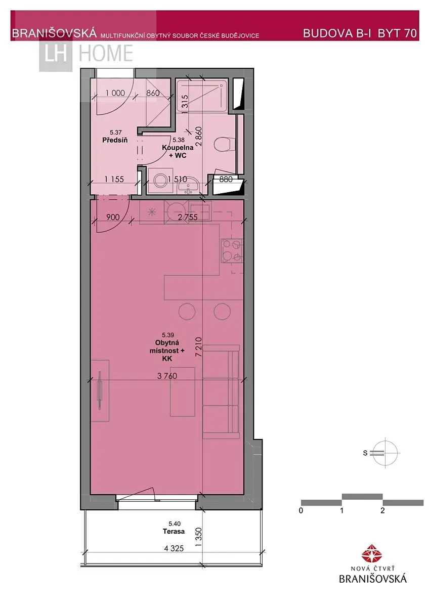
Nabízíme moderní byt 1+kk o velikosti 37,3 m² s prostorným balkónem 5,8 m² ve 5. patře novostavby bytového domu. Ideální volba pro jednotlivce, mladé páry nebo jako startovací bydlení bez nutnosti složitého financování.

Výhody družstevního bydlení:
• Nízká vstupní investice bez nutnosti hypotéky
• Možnost převodu do osobního vlastnictví
• Rychlejší a jednodušší cesta k bydlení bez zatížení vlastního úvěrového rámce

Standard v ceně:
vinylové podlahy, obklady a dlažby, sprchový kout, koupelnová skříňka, topný žebřík, závěsné WC, interiérové dveře, videotelefon, předokenní rolety.

Nízké provozní náklady garantuje energetický štítek A.
Výstavba již byla zahájena, předpokládaný termín dokončení je 4. čtvrtletí roku 2028.
Celkem vznikne v projektu přes 300 nových bytů o dispozicích 1+kk, 2+kk, 3+kk a 4+kk. Všechny byty s balkónem, lodžií nebo terasou.

Družstevní forma nabízí ideální řešení pro ty, kdo hledají dostupné bydlení bez hypotéky.
Neváhejte nás kontaktovat – rádi vám vysvětlíme princip družstevního bydlení, poradíme s financováním a domluvíme osobní konzultaci.

Parametry bytu

Cena
4 500 000 Kč /za nemovitost Spočítat hypotéku
Aktualizováno
26. 2. 2026
Adresa
Branišovská, České Budějovice 2
ID
B-I 70 - 1+kk, DB
Stavba
Smíšená
Stav objektu
Novostavba
Patro
5. z 8
Vybaveno
Ne
Lokalita objektu
Klidná část obce
Vlastnictví
Družstevní
Užitná plocha
37 m2
Třída energetické náročnosti
A - Mimořádně úsporná
Elektřina
400V
Odpad
Veřejná kanalizace
Komunikace
Asfaltová
Telekomunikace
Internet
Doprava
Vlak, Dálnice, Silnice, MHD, Autobus
Voda
Vodovod, Retenční nádrž na dešt’ovou vodu
Topné těleso
Radiátory
Zdroj topení
Centrální dálkové, Pára s výměníkem
Balkon
Výtah
Bezbarierový přístup
Převod do OV

Kontaktovat makléře

Realitní kancelář

Luxury Home s.r.o.

Tepelská 137/3, Mariánské Lázně

Chystáte se prodat nemovitost?
Pomůžeme Vám!

Máte zájem o tento byt?

Tímto, v souladu s nařízením Evropského parlamentu a Rady (EU) 2016/679, v platném znění, prohlašuji, že mi je alespoň 16 let a uděluji tak svůj souhlas se zpracováním zadaných údajů (jméno, telefon, e-mail, ip adresa) společnosti B3 Technology, s.r.o., IČ: 07330600, se sídlem Novostavby 126/23, 435 11 Lom (správce dat), za účelem předání dotazu z tohoto formuláře Vámi vybranému inzerentovi a zpětného kontaktování mé osoby. Osobní údaje bude správce zpracovávat manuálně i automaticky přímo prostřednictvím svých zaměstnanců. Informace předané tímto formulářem budou uloženy v databázi správce maximálně po dobu 10 let. Odvolání souhlasu s uložením a zpracováním poskytnutých dat lze e-mailem na info@bydlisnami.cz. V případě podezření na neoprávněné použití Vámi poskytnutých údajů máte právo předat podnět k šetření Úřadu pro ochranu osobních údajů. Více informací
Chystáte se prodat nemovitost?
Pomůžeme Vám!

Inzerát si prohlédlo 5 lidí

Prodejce

Antonie Hadačová

Antonie Hadačová

Hlídací pes

Chcete dostávat emailem podobné nabídky prodeje bytů 1+kk v Českých Budějovicích?

Podobné nemovitosti