Soccer reality

Pronájem rodinného domu, Káraný, Okružní, 110 m2

Okružní, Káraný

45 000 Kč /za měsíc Získejte výhodnou HYPOTÉKU

(nájemné 45.000 Kč + záloha na elektřinu ve výši 3.700 Kč +záloha na vodu /800 Kč na jednu osobu/)

Doporučené firmy v Káraném

Informace k domu

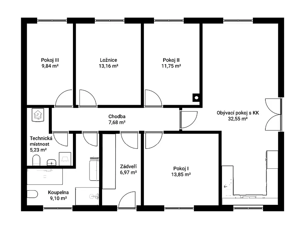
Exkluzivně Vám nabízíme k pronájmu novostavbu přízemního, nadstandardně zařízeného a vybaveného RD s celkovou dispozicí 5+kk, 110 m², situovaný na pozemku o výměře 607 m², v klidné části obce Káraný, okr. Praha - východ /v blízkém sousedství města Brandýs nad Labem – Stará Boleslav/.

Pronájem zahrnuje pravou polovinu domu /která je dle KN vedena jako bytová jednotka/ s vlastním vchodem, každá polovina domu má své obvodové zdivo, vlastní pozemek a dále společný pozemek pro parkování – viz. situační plánek.

Celý dům je postaven z přesných tvárnic HELUZ, střecha BRAMAC, okna trojskla, profil OTHERM ALFA EVO, vytápění domu a ohřev vody tepelným čerpadlem ELTRON STIEBEL /podlahové vytápění/, kvalitní dveře SAPELI LOTOS, dům je navíc vybaven rekuperací pro řízené větrání ELTRON STIEBEL a klimatizací TOSHIBA, moderní kuchyňskou linkou YODA s čelem z pravého dřeva, včetně spotřebičů AEG a ELEKTROLUX a dalším nadstandartním vybavením v hodnotě cca 2 milióny Kč oproti jiným konkurenčním stavbám. Přesný soupis vybavení a zařízení Vám můžeme zaslat mailem, nebo Vás s tím seznámíme při osobní prohlídce domu. Kolaudace domu bude provedena na podzim 2025, k nastěhování ihned.

Měsíční nájemné je ve výši 45.000 Kč + záloha na elektřinu ve výši 3.700 Kč + záloha na vodu ve výši 800 Kč/osoba. Jistota se skládá ve výši 3 měsíčního nájemného, provize RK ve výši 1 měsíčního nájemného. Více informací nebo prohlídku si domluvte telefonicky nebo mailem.

Parametry domu

Cena
45 000 Kč /za měsíc
Poznámka k ceně
nájemné 45.000 Kč + záloha na elektřinu ve výši 3.700 Kč +záloha na vodu /800 Kč na jednu osobu/
Aktualizováno
26. 2. 2026
Adresa
Okružní, Káraný
Stavba
Cihlová
Stav objektu
Novostavba
Vybaveno
Částečně
Lokalita objektu
Klidná část obce
Užitná plocha
110 m2
Plocha pozemku
607 m2
Třída energetické náročnosti
B - Velmi úsporná
Elektřina
230V
Odpad
Veřejná kanalizace
Komunikace
Asfaltová
Telekomunikace
Telefon, Internet
Doprava
Vlak, Dálnice, Silnice, MHD, Autobus
Voda
Vodovod
Topné těleso
Podlahové vytápění
Zdroj topení
Tepelné čerpadlo
Zdroj teplé vody
Tepelné čerpadlo
Bezbarierový přístup
Parkování

Kontaktovat makléře

Máte zájem o tento dům?

Tímto, v souladu s nařízením Evropského parlamentu a Rady (EU) 2016/679, v platném znění, prohlašuji, že mi je alespoň 16 let a uděluji tak svůj souhlas se zpracováním zadaných údajů (jméno, telefon, e-mail, ip adresa) společnosti B3 Technology, s.r.o., IČ: 07330600, se sídlem Novostavby 126/23, 435 11 Lom (správce dat), za účelem předání dotazu z tohoto formuláře Vámi vybranému inzerentovi a zpětného kontaktování mé osoby. Osobní údaje bude správce zpracovávat manuálně i automaticky přímo prostřednictvím svých zaměstnanců. Informace předané tímto formulářem budou uloženy v databázi správce maximálně po dobu 10 let. Odvolání souhlasu s uložením a zpracováním poskytnutých dat lze e-mailem na info@bydlisnami.cz. V případě podezření na neoprávněné použití Vámi poskytnutých údajů máte právo předat podnět k šetření Úřadu pro ochranu osobních údajů. Více informací
Chystáte se prodat nemovitost?
Pomůžeme Vám!

Inzerát si prohlédlo 8 lidí

Prodejce

Ing.Luboš Štangler - jednatel společnosti

Ing.Luboš Štangler - jednatel společnosti

Hlídací pes

Chcete dostávat emailem podobné nabídky pronájmu rodinných domů v Káraném?

Podobné nemovitosti