Pronájem rodinného domu, Praha - Dubeč, Starodubečská, 83 m2

Starodubečská, Praha

27 500 Kč /za měsíc Získejte výhodnou HYPOTÉKU

(Energie budou převedeny na nájemce.)

Doporučené firmy v Praze 10

Stěhovací služby

Výkup a prodej starého nábytku

Informace k domu

V exkluzivním zastoupení nabízíme k pronájmu velmi příjemný a pečlivě udržovaný rodinný dům o dispozici 3+1 s garáží a užitnou plochou cca 83 m². Nemovitost se nachází v klidné a ustálené rezidenční zástavbě Prahy 15 – Dubeč, jen pár kroků od zastávky MHD Lázeňka (cca 70 m), odkud je rychlé spojení na metro i do širší Prahy .
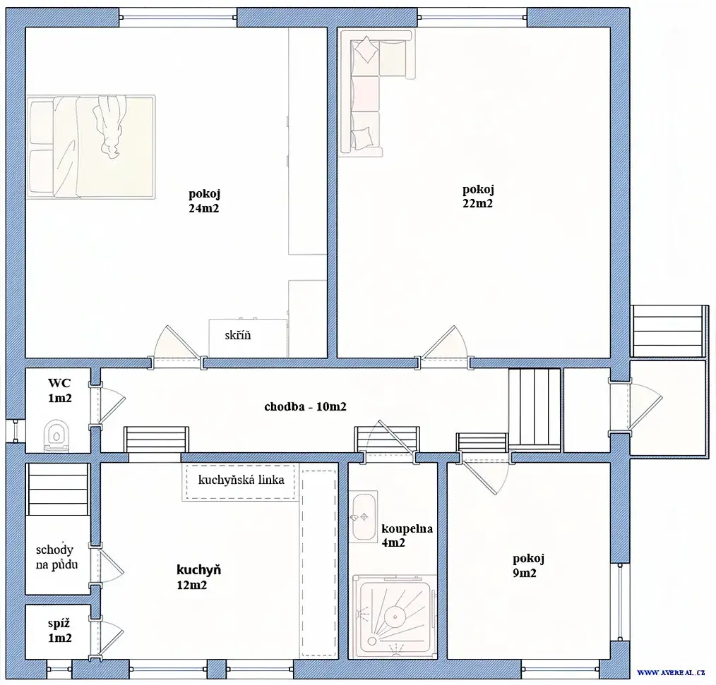
Dům nabízí velmi funkční a příjemně uspořádaný obytný prostor:
• prostorný obývací pokoj 22 m²
• hlavní ložnice 24 m²
• další pokoj 9 m²
• samostatná kuchyň 12 m²
• koupelna 4 m²
• oddělené WC 1 m²
• spíž 1 m²
• centrální chodba 10 m²
Kuchyň je plně vybavena včetně nádobí, lednice s mrazákem, plynového sporáku s elektrickou troubou, mikrovlnné trouby a myčky. K dispozici je také pračka, jídelní stůl, manželská postel, vestavěné skříně, sedací souprava i krbová kamna .
Energie budou převedeny na nájemce.
K domu náleží zahrada o velikosti 297 m², ideální pro odpočinek i rodinné využití. Okolí tvoří velmi příjemná čtvrť rodinných domů s dostatkem soukromí a klidu. Lokalita zároveň nabízí přímé napojení na přírodní park Říčanka – skvělé místo pro procházky, sport i volnočasové aktivity .
Dubeč nabízí kompletní základní infrastrukturu: mateřská a základní škola, úřad městské části, zdravotní středisko, sportovní areály (včetně moderního centra Plechovka), obchody, služby, kavárny i kulturní prostory jako Špejchar či sokolovna .
Dům je k nastěhování do 2–3 týdnů.
Další podrobné informace o nemovitosti (cca 20 doplňujících údajů) Vám rádi zašleme e-mailem, včetně půdorysu s rozměry jednotlivých místností, fotografií a videa.

Parametry domu

Cena
27 500 Kč /za měsíc
Poznámka k ceně
Energie budou převedeny na nájemce.
Náklady na bydlení
cca 7000,-Kč/měsíčně - budou převedeny na nájemce
Aktualizováno
2. 3. 2026
Adresa
Starodubečská, Praha
Stavba
Cihlová
Stav objektu
Velmi dobrý
Druh objektu
Samostatný
Užitná plocha
83 m2
Zastavěná plocha
236 m2
Plocha pozemku
533 m2
Plocha zahrady
297 m2
Třída energetické náročnosti
D - Méně úsporná
Elektřina
230V
Plyn
Plynovod
Odpad
Veřejná kanalizace
Telekomunikace
Internet
Doprava
Silnice, MHD, Autobus
Voda
Vodovod
Topné těleso
Radiátory, Krbová kamna
Zdroj topení
Plynový kotel
Zdroj teplé vody
Plynový kotel
Garáž
Sklep

Kontaktovat makléře

Máte zájem o tento dům?

Tímto, v souladu s nařízením Evropského parlamentu a Rady (EU) 2016/679, v platném znění, prohlašuji, že mi je alespoň 16 let a uděluji tak svůj souhlas se zpracováním zadaných údajů (jméno, telefon, e-mail, ip adresa) společnosti B3 Technology, s.r.o., IČ: 07330600, se sídlem Novostavby 126/23, 435 11 Lom (správce dat), za účelem předání dotazu z tohoto formuláře Vámi vybranému inzerentovi a zpětného kontaktování mé osoby. Osobní údaje bude správce zpracovávat manuálně i automaticky přímo prostřednictvím svých zaměstnanců. Informace předané tímto formulářem budou uloženy v databázi správce maximálně po dobu 10 let. Odvolání souhlasu s uložením a zpracováním poskytnutých dat lze e-mailem na info@bydlisnami.cz. V případě podezření na neoprávněné použití Vámi poskytnutých údajů máte právo předat podnět k šetření Úřadu pro ochranu osobních údajů. Více informací
Chystáte se prodat nemovitost?
Pomůžeme Vám!

Inzerát si prohlédlo 0 lidí

Prodejce

Petr Hrdlička

Petr Hrdlička

Hlídací pes

Chcete dostávat emailem podobné nabídky pronájmu rodinných domů v Praze 10?