Prodej ubytování, Jeseník, 42 m2

Jeseník

3 988 155 Kč /za nemovitost HYPOTÉKA od 17 825 Kč /za měsíc

(Celková cena je konečná, včetně právního servisu, provize, DPH a všech poplatků. Je však také možné o ni jednat - pro více informací nás kontaktujte.)

Doporučené firmy v Jeseníku

Informace k nemovitosti

Ve výhradním zastoupení vám nabízíme luxusní mezonetový horský apartmán v Jeseníkách s krásným výhledem na nejstarší vodoléčebné lázně na světě a to za cenu garsonky např. v Brně. V ceně je i SPZ na přání PAN0RAMA zdarma.
Jedná se o jedinečnou nemovitost s možností vlastní rekreace. Tato investice vám může zaplatit hypotéku a ještě i vlastní dovolenou.

Ideální příležitost pro ty, kteří nechtějí nemovitost jen vlastnit, ale chtějí si ji užívat kdykoli po celý rok.
Jeseníky jsou dle dlouhodobého měření hory s nejčistším vzduchem v Evropě a přesně uprostřed těchto nejvyšších moravských hor se nachází malebné lyžařské středisko město Jeseník a tento překrásný apartmán.
Apartmán je rozdělen na dispozičně otevřenou denní část v přízemí a noční část v patře. V přízemí apartmánu se nachází prostorný obývací pokoj 15 m2 s kuchyní 8 m2 s kompletně vybavenou kuchyňskou linkou, šikovné zádveří 4 m2 s velkým sušákem na lyžařské oblečení, boty a lyžáky. Naproti kuchyně je samostatná koupelna 2,8 m2 s umyvadlem, sprchovým koutem, sušákem ručníků a závěsným WC. Kuchyňská linka je kompletně vybavena a zařízena a obsahuje velkou troubu, indukční vařič, mikrovlnku, dřez, kávovar, nerezovou lednici a veškeré nádobí na vaření i stolování.
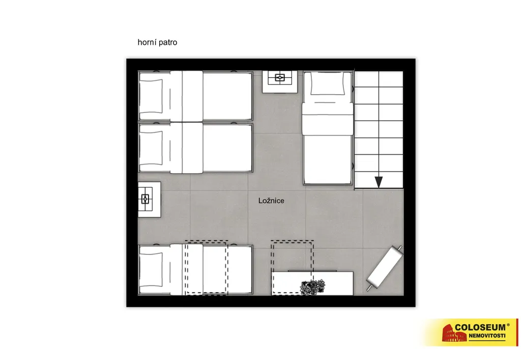
V patře se nachází velmi variabilní ložnice 15 m2, která má 4 samostatná lůžka, 2 střešní okna s nočními roletami, úložné prostory, čtecí lampičky, druhý LED televizor, bezpečnostní síť, noční i denní osvětlení a požární čidlo.
Z obývacího pokoje je krásný panoramatický výhled na světoznámé Priessnitzovy lázně, nad kterými v létě nádherně zapadá slunce.
Moderní mezonetové apartmá bylo praktickou dispoziční změnou zvětšeno z 42 m2 na 47 m2. Apartmán tak má otevřenější prostor a styl. Bylo dosaženo velkorysejšího pojetí bližšího dispozici 2+kk, kdy je kuchyně součástí obytné části.
V obývacím pokoji jsou 2 rozkládací sedačky, 3D LED televizor Samsung, rádio s CD, elektrický krb, trezor, dálkově ovládané stmívatelné světlo s měnitelnou teplotou bílé, Sony Playstation PS3 a domácí kino Sony 5.1.
Apartmán nabízí dostatek prostoru pro 8 osob v jakémkoliv věku. Své si zde najdou mladí aktivní návštěvníci nebo až 2 rodiny s dětmi či senioři využívající místních léčebných pokladů a postupů zakladatele vodoléčby Vincence Priessnitze.
K apartmánu náleží vlastní parkovací místo se závorou na dálkové ovládání. Z oken je přímý výhled na parkoviště a na Váš vůz.

Šikovný příruční sklad 1,6 m2 je hned naproti bytu na stejném patře.
V přízemí se dále nachází prostorná kolárna/lyžárna 16 m2.

Apartmánový dům stojí osamocen blízko centra. Vzdálenost na koupaliště, wellness nebo autobus je 5 minut pěšky, na vlak, do restaurací a do obchodů 10 minut a až do centra na náměstí 15 minut.
Apartmán je plně pojištěný a je zcela mimo záplavovou oblast. V domě pracuje správce domu, který zajišťuje úklid apartmánu a společných prostor domu, výměnu prádla, předávání klíčů, vítání hostů, zimní i letní údržbu kolem domu a na parkovišti.

Nabídka celoročního možností trávení volného času, sportu, relaxace, historických a přírodních památek v tomto rekreačním středisku je téměř nevyčerpatelná. Inspiraci pro svoje aktivní i pasivní aktivity najdete v místním infocentru v budově historické Katovny, která se nachází nedaleko muzea s expozicí slavných čarodějnických procesů.

Mimořádná nabídka prodávajícího – Apartmá Panorama Jeseník na zkoušku. Když si objednáte pobyt v Apartmá Panorama Jeseník na zkoušku, vrátíme vám při jeho koupi částku rovnající dvojnásobku ceny Vašeho pobytu.
Navíc kupující k apartmánu získá luxusní SPZ na přání s nápisem PAN0RAMA.

Kupujete nejen byt, ale rovnou úspěšnou ziskovou firmu s vlastním moderním webem, s prověřenou vracející se klientelou, která platí předem a plně funkčními portály Booking.com a AirBnB. Hodnocení apartmánu za rok 2025 je na Booking.com 9,3 z 10 a na AirBnB 4,29 z 5.
Průměrná tržba z krátkodobých pronájmů je 272 822 Kč - průměr za roky 2022, 2023, 2024. Měsíčně to činí 22 735 Kč, návratnost je tedy nádherných 14,6 let.
Převedení webu a obou účtů na těchto portálech je zdarma. Jestli tedy chcete, můžete bez starostí ihned začít vydělávat a nemusíte rozbíhat vlastní business tzv. od nuly.
Pokud jste někdy toužili po nemovitosti, která vám bude nejen vydělávat ale zároveň si ji budete užívat i Vy, je koupě tohoto horského apartmánu tou nejlepších možností. Nejen, že Vám týdenní pobyt vydělá víc než běžný pronájem bytu za celý měsíc, ale navíc tam na rozdíl od klasického bytu můžete trávit čas kdykoli.

Apartmá Panorama Jeseník prostě stojí za to…

PENB nebyl zatím dodán proto uvádíme třídu G. Nemovitost lze financovat hypotečním úvěrem s jehož vyřízením Vám rádi pomůžeme. Veškeré uvedené plochy jsou přibližné a mají orientační charakter. Celková plocha a dispozice vychází z prohlášení vlastníka. Pro více informací či domluvení prohlídky kontaktujte realitního makléře.

Parametry nemovitosti

Cena
3 988 155 Kč /za nemovitost Spočítat hypotéku
Poznámka k ceně
Celková cena je konečná, včetně právního servisu, provize, DPH a všech poplatků. Je však také možné o ni jednat - pro více informací nás kontaktujte.
Aktualizováno
29. 4. 2026
Adresa
Jeseník
ID
E2434B001-1
Stavba
Cihlová
Stav objektu
Velmi dobrý
Patro
3. z 3
Vybaveno
Ano
Typ objektu
Patrový
Druh objektu
Samostatný
Lokalita objektu
Klidná část obce
Užitná plocha
42 m2
Třída energetické náročnosti
G - Mimořádně nehospodárná
Elektřina
230V, 400V
Odpad
Veřejná kanalizace
Topení
Ústřední elektrické
Komunikace
Asfaltová
Telekomunikace
Internet
Doprava
Vlak, Silnice, Autobus
Voda
Vodovod
Výtah
Parkování

Kontaktovat makléře

Máte zájem o tuto nemovistost?

Tímto, v souladu s nařízením Evropského parlamentu a Rady (EU) 2016/679, v platném znění, prohlašuji, že mi je alespoň 16 let a uděluji tak svůj souhlas se zpracováním zadaných údajů (jméno, telefon, e-mail, ip adresa) společnosti B3 Technology, s.r.o., IČ: 07330600, se sídlem Novostavby 126/23, 435 11 Lom (správce dat), za účelem předání dotazu z tohoto formuláře Vámi vybranému inzerentovi a zpětného kontaktování mé osoby. Osobní údaje bude správce zpracovávat manuálně i automaticky přímo prostřednictvím svých zaměstnanců. Informace předané tímto formulářem budou uloženy v databázi správce maximálně po dobu 10 let. Odvolání souhlasu s uložením a zpracováním poskytnutých dat lze e-mailem na info@bydlisnami.cz. V případě podezření na neoprávněné použití Vámi poskytnutých údajů máte právo předat podnět k šetření Úřadu pro ochranu osobních údajů. Více informací
Chystáte se prodat nemovitost?
Pomůžeme Vám!

Inzerát si prohlédlo 10 lidí

Prodejce

Mgr. Michal Staněk, MBA

Mgr. Michal Staněk, MBA

Hlídací pes

Chcete dostávat emailem podobné nabídky prodeje ubytování v Jeseníku?

Podobné nemovitosti