Prodej bytu 1+kk, Praha - Uhříněves, U uhříněveské obory, 39 m2

U uhříněveské obory, Praha 10

5 497 000 Kč /za nemovitost HYPOTÉKA od 24 568 Kč /za měsíc
Doporučené firmy v Praze 10

Stěhovací služby

Výkup a prodej starého nábytku

Informace k bytu

Byt v osobním vlastnictví s balkonem v posledním podlaží udržovaného domu s výtahem z roku 2012, který může sloužit jako startovací bydlení nebo jako investice k pronájmu.

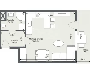
Byt 1+kk o podlahové ploše 32,8 m² + balkon o velikosti 6,9 m² se nachází v klidné části Uhříněvsi na Praze 10 v ulici U Uhříněveské obory. Je umístěn ve 4. a zároveň posledním podlaží.

Obývací pokoj je propojen s kuchyňským koutem a nabízí rovněž přístup na prostorný balkon. Okna i balkon jsou orientovány na jihozápadní stranu.
Kuchyňská linka je dále vybavena varnou deskou, digestoří, mikrovlnnou troubou, myčkou a lednicí. Praktickým prvkem je barový pult, který může posloužit také jako jídelní stůl.

V koupelně je sprchový kout, závěsné WC a pračka. Na chodbě je prostor pro umístění botníku.

Do posledních pater se v bytových domech zpravidla umisťují ty nejdražší velkometrážní byty, a proto bude těchto příležitostí ke koupi na trhu jen velmi málo.

Náklady na provoz bytu činní 3 886 Kč + elektřina.

Parkování je pohodlné na veřejných parkovacích místech před domem.

Uhříněves je velmi oblíbená lokalita s dobrým spojením do centra města. Pouhé 2 minuty chůze budete mít autobusovou zastávku U Uhříněveské obory, vlaková zastávka Praha–Uhříněves je vzdálena přibližně 10 minut pěšky a z ní budete za necelých 20 min. na pražském Hlavním nádraží. Kousek je také supermarket Lidl nebo velmi oblíbená Uhříněveská obora.

Pokud vás tato nabídka zaujala, neváhejte mě kontaktovat a domluvte si prohlídku.

Parametry bytu

Cena
5 497 000 Kč /za nemovitost Spočítat hypotéku
Aktualizováno
5. 3. 2026
Adresa
U uhříněveské obory, Praha 10
ID
19017
Stavba
Cihlová
Stav objektu
Velmi dobrý
Patro
4. z 4
Vybaveno
Částečně
Lokalita objektu
Klidná část obce
Vlastnictví
Osobní
Užitná plocha
39 m2
Podlahová plocha
32 m2
Třída energetické náročnosti
D - Méně úsporná
Elektřina
230V
Plyn
Plynovod
Odpad
Veřejná kanalizace
Komunikace
Asfaltová
Telekomunikace
Internet, Kabelová televize
Doprava
Vlak, Silnice, MHD, Autobus
Voda
Vodovod
Balkon
Výtah

Kontaktovat makléře

Realitní kancelář

Logo QARA, s.r.o.

QARA, s.r.o.

Šafaříkova 201/17, Praha

Chystáte se prodat nemovitost?
Pomůžeme Vám!

Máte zájem o tento byt?

Tímto, v souladu s nařízením Evropského parlamentu a Rady (EU) 2016/679, v platném znění, prohlašuji, že mi je alespoň 16 let a uděluji tak svůj souhlas se zpracováním zadaných údajů (jméno, telefon, e-mail, ip adresa) společnosti B3 Technology, s.r.o., IČ: 07330600, se sídlem Novostavby 126/23, 435 11 Lom (správce dat), za účelem předání dotazu z tohoto formuláře Vámi vybranému inzerentovi a zpětného kontaktování mé osoby. Osobní údaje bude správce zpracovávat manuálně i automaticky přímo prostřednictvím svých zaměstnanců. Informace předané tímto formulářem budou uloženy v databázi správce maximálně po dobu 10 let. Odvolání souhlasu s uložením a zpracováním poskytnutých dat lze e-mailem na info@bydlisnami.cz. V případě podezření na neoprávněné použití Vámi poskytnutých údajů máte právo předat podnět k šetření Úřadu pro ochranu osobních údajů. Více informací
Chystáte se prodat nemovitost?
Pomůžeme Vám!

Inzerát si prohlédlo 0 lidí

Prodejce

Petr Hornát

Petr Hornát

Hlídací pes

Chcete dostávat emailem podobné nabídky prodeje bytů 1+kk v Praze 10?

Podobné nemovitosti