Prodej bytu 2+kk, Praha - Strašnice, Pod strání, 40 m2

Pod strání, Praha 10 - Strašnice

6 980 000 Kč HYPOTÉKA od 31 196 Kč /za měsíc

(včetně provize RK)

Doporučené firmy v Praze 10

Stěhovací služby

Výkup a prodej starého nábytku

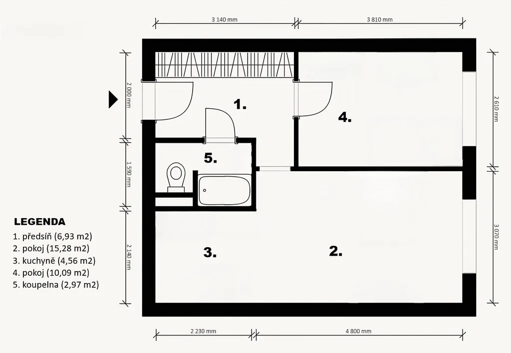
Informace k bytu

Byt 2+KK na metru Skalka Praha 10

Nabízíme k prodeji byt 2+kk o celkové ploše 43,13 m², který se nachází ve 3. patře panelového domu s výtahem v klidné části Prahy 10 – Strašnice, přibližně 6 minut chůze od stanice metra Skalka.

Byt má jižní orientaci oken, díky čemuž je příjemně světlý. Dispozice nabízí obývací část s kuchyňským koutem, samostatnou ložnici, koupelnu se sprchovým koutem a praktické úložné prostory.

Součástí bytu je sklepní kóje a k dispozici je také komora na patře, která poskytuje další úložný prostor.

V bytě byla instalována nová kuchyňská linka, nové interiérové dveře a plovoucí podlahy. Byt se nachází v udržovaném panelovém domě s bezbariérovým přístupem.

Byt je aktuálně pronajímán s možností pokračování nájemního vztahu pro investičního kupujícího, případně uvolnění bytu dle dohody.

Základní informace
dispozice: 2+kk

podlahová plocha: 40m², plus komora 1m² a sklep 2 m²

patro: 3. NP s výtahem

orientace oken: jih

sklepní kóje + komora na patře
energetická náročnost budovy: C
měsíční poplatky včetně tepla a fondu oprav: cca 3 000 Kč
elektřina: cca 1 300 Kč
bezplatné parkování u zadní strany domu na komunikaci, patřící k nemovitosti, popř. placené rezidenční parkování za 1200Kč za rok


Dům je ve velmi dobrém technickém stavu a je průběžně udržován.
Společenství vlastníků hospodaří bez úvěru a disponuje dostatečnou rezervou ve fondu oprav (cca 7,5 mil. Kč). V nejbližší době je plánována oprava střechy, která bude hrazena z naspořených prostředků.

V minulých letech proběhla postupná modernizace domu, mimo jiné výměna oken, zateplení, rozvodů a společných instalací. Dům není zatížen žádným úvěrem a aktuálně se o jeho čerpání neuvažuje.

Příspěvek do fondu oprav činí cca 30 Kč / m²


Strašnice patří mezi velmi vyhledávané části Prahy díky výborné dostupnosti do centra a kompletní občanské vybavenosti. Stanice metra Skalka je vzdálena přibližně 6 minut chůze. V okolí se nachází obchody, restaurace, školy, školky i zeleň pro volnočasové aktivity.

Byt je vhodný jak pro vlastní bydlení, tak jako investice k pronájmu.

Parametry bytu

Cena
6 980 000 Kč Spočítat hypotéku
Poznámka k ceně
včetně provize RK
Aktualizováno
7. 3. 2026
Adresa
Pod strání, Praha 10 - Strašnice
ID
260307
Stavba
Panelová
Vlastnictví
Osobní
Užitná plocha
40 m2
Třída energetické náročnosti
C - Úsporná

Kontaktovat makléře

Máte zájem o tento byt?

Tímto, v souladu s nařízením Evropského parlamentu a Rady (EU) 2016/679, v platném znění, prohlašuji, že mi je alespoň 16 let a uděluji tak svůj souhlas se zpracováním zadaných údajů (jméno, telefon, e-mail, ip adresa) společnosti B3 Technology, s.r.o., IČ: 07330600, se sídlem Novostavby 126/23, 435 11 Lom (správce dat), za účelem předání dotazu z tohoto formuláře Vámi vybranému inzerentovi a zpětného kontaktování mé osoby. Osobní údaje bude správce zpracovávat manuálně i automaticky přímo prostřednictvím svých zaměstnanců. Informace předané tímto formulářem budou uloženy v databázi správce maximálně po dobu 10 let. Odvolání souhlasu s uložením a zpracováním poskytnutých dat lze e-mailem na info@bydlisnami.cz. V případě podezření na neoprávněné použití Vámi poskytnutých údajů máte právo předat podnět k šetření Úřadu pro ochranu osobních údajů. Více informací
Chystáte se prodat nemovitost?
Pomůžeme Vám!

Inzerát si prohlédlo 0 lidí

Prodejce

Ing. Miroslava Pavlíková

Ing. Miroslava Pavlíková

Hlídací pes

Chcete dostávat emailem podobné nabídky prodeje bytů 2+kk v Praze 10?

Podobné nemovitosti