Prodej apartmánu, Strachotín, Sklepní, 285 m2 (ID: 2567624)

Sklepní, Strachotín

9 900 000 Kč /za nemovitost HYPOTÉKA od 44 247 Kč /za měsíc

(včetně provize)

Doporučené firmy v Strachotíně

Informace k nemovitosti

Lokalita: Nachází se na Sklepní ulici v obci Strachotín, v blízkosti oblíbené turistické destinace Pálava.

Plocha: Zastavěná plocha činí 95 m², celkový pozemek má rozlohu 132 m².

Stav: Nemovitost prošla kompletní rekonstrukcí (vč. nástavby + přístavby) v roce 2011

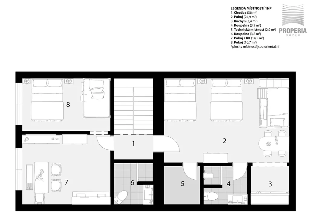
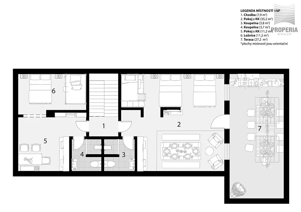
Kapacita: Penzion nabízí 23 lůžek, rozdělených do čtyř apartmánů.

Parkování: kupní cena zahrnuje parcelu pro parkování 4 vozidel cca 160 metrů od penzionu, další parkovací stání přímo před penzionem.

Vybavení: Vinný sklep, společenská místnost s krbem, kuchyňský kout a zastřešená terasa.

Apartmány: Každý má vlastní koupelnu, wc a plně vybavenou kuchyň.

Vytápění: Teplovodní podlahové topení napojené na elektrický kotel, ohřev vody přes elektrické bojlery.

Možnost pokračování provozu: Nemovitost je aktuálně využívána k ubytování, možnost pokračovat bez dalších investic.

Dostupnost: Blízkost Novomlýnských nádrží a výborné spojení – 12 minut od Aqualandu Moravia, 14 minut od Mikulova, 20 minut od Lednice, 40 minut do Brna, 1
hodina do Vídně.

Parametry nemovitosti

Cena
9 900 000 Kč /za nemovitost Spočítat hypotéku
Poznámka k ceně
včetně provize
Aktualizováno
8. 3. 2026
Adresa
Sklepní, Strachotín
ID
03858
Stavba
Cihlová
Stav objektu
Velmi dobrý
Vybaveno
Ano
Lokalita objektu
Klidná část obce
Užitná plocha
285 m2
Podlahová plocha
285 m2
Třída energetické náročnosti
G - Mimořádně nehospodárná
Parkování

Kontaktovat makléře

Máte zájem o tuto nemovistost?

Tímto, v souladu s nařízením Evropského parlamentu a Rady (EU) 2016/679, v platném znění, prohlašuji, že mi je alespoň 16 let a uděluji tak svůj souhlas se zpracováním zadaných údajů (jméno, telefon, e-mail, ip adresa) společnosti B3 Technology, s.r.o., IČ: 07330600, se sídlem Novostavby 126/23, 435 11 Lom (správce dat), za účelem předání dotazu z tohoto formuláře Vámi vybranému inzerentovi a zpětného kontaktování mé osoby. Osobní údaje bude správce zpracovávat manuálně i automaticky přímo prostřednictvím svých zaměstnanců. Informace předané tímto formulářem budou uloženy v databázi správce maximálně po dobu 10 let. Odvolání souhlasu s uložením a zpracováním poskytnutých dat lze e-mailem na info@bydlisnami.cz. V případě podezření na neoprávněné použití Vámi poskytnutých údajů máte právo předat podnět k šetření Úřadu pro ochranu osobních údajů. Více informací
Chystáte se prodat nemovitost?
Pomůžeme Vám!

Inzerát si prohlédlo 1 lidí

Prodejce

Marek Svoboda

Marek Svoboda

Hlídací pes

Chcete dostávat emailem podobné nabídky prodeje apartmánů v Strachotíně?

Top nabídky

Podobné nemovitosti