Remax Monarcha

Prodej bytu 2+1, Velká Bystřice, Nádražní I, 44 m2

Nádražní I, Velká Bystřice

4 100 000 Kč HYPOTÉKA od 18 325 Kč /za měsíc

(včetně provize RK)

Doporučené firmy v Velké Bystřici

Informace k bytu

Prodej bytu 2+1 44 m², Velká Bystřice

Představujeme Vám v zastoupení majitele nabídku prodeje bytu 2+1, který se nachází ve Velké Bystřici, v klidné a oblíbené části města.
Jednotka je umístěna v 4. NP z celkových 4 NP, udržovaném panelového domu po revitalizaci.
Byt prošel rekonstrukcí jádra, rozvodů vody a odpadu, výměnou elektroinstalace, novým topením v letech 2015-2017.
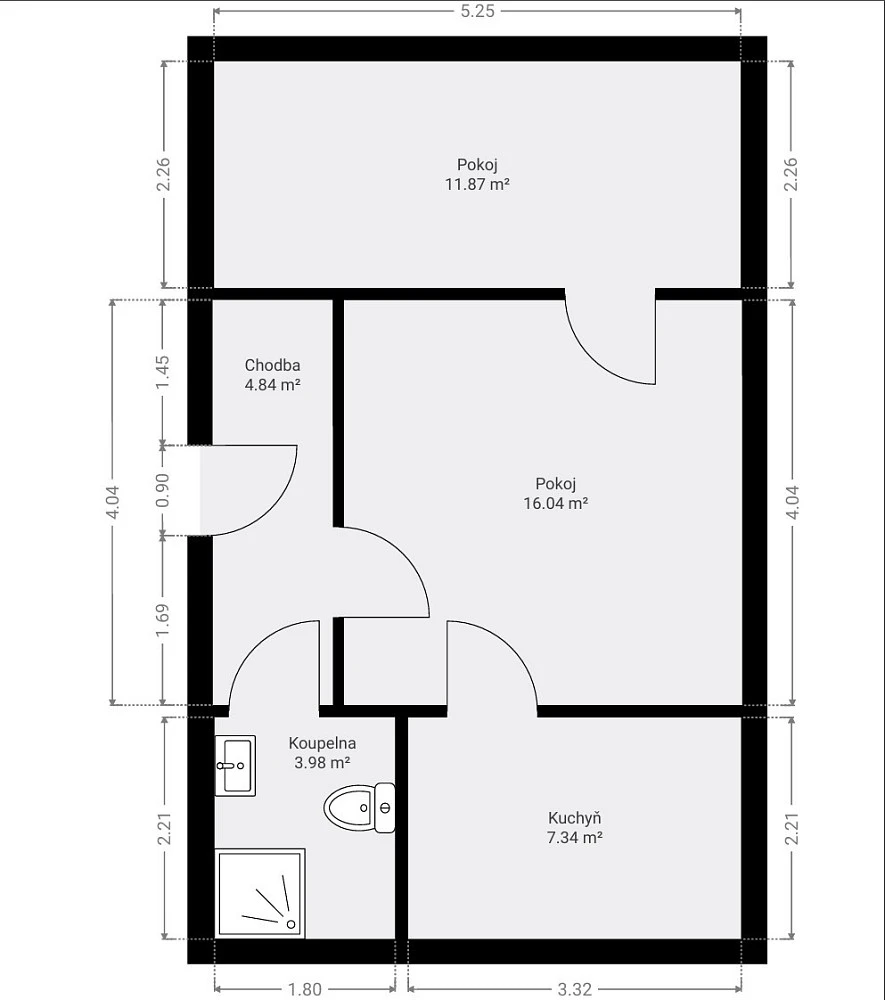
Nemovitost sestává ze vstupní chodby, samostatné kuchyně s linkou, kombinovaným sporákem, myčkou nádobí a jídelním koutem, koupelny se sprchovým koutem, umyvadlem a toaletou, obývacího pokoje průchozího z kuchyně a chodby. Z obývacího pokoje vstoupíme i do samostatného pokoje.

Velkou výhodou je zákoutí v chodbě, které se dá využít pro vestavěné skříně a další úložný prostor.
Celý byt je světlý, s dřevěnými doplňky a detaily, v pokojích i kuchyni jsou okna, ze kterých je příjemný výhled do ulice a na panorama Olomouce.
Podlahy jsou kombinované, v pokojích je lino a protihluková úprava, v koupelně a na chodbě je keramická dlažba, v oblasti úložných prostor je plovoucí podlaha.
Dveře od bytu jsou bezpečnostní, samozřejmostí jsou plastová okna. Orientace bytu je na jihozápadní stranu.
Vytápění - plynová kotelna ve sklepě a ohřev el. vody bojlerem v bytě je v koupelně.
Vodostop nainstalován v bytě, bezpečnostní uzávěr vody - prevence havárií vodovodních rozvodů v domech a bytech.

K bytu náleží prostorný sklep o velikosti 14,9 m² a společné prostory vyhrazené jen pro odrážedla a kočárky. Celý dům v žádané a klidné lokalitě je po kompletní revitalizaci.
Panelový dům má vlastní oplocenou zahradu z přední a zadní části, kde je kryté posezení, lavičky a dětské hřiště. Dům má dva chody, zadní krytý vchod je přímo do zahrady. Zahrada s posezením je k dispozici všem obyvatelům v tomto vchodu.

V nejbližším okolí se nachází veškerá občanská vybavenost. Dostupnost na vlak do 5 min, MHD 5 min, obchod 10 min, pošta 10 min, školka a základní škola 15-20 min, a v park je do 10 min od bytu.
Autem je Olomouc dostupná do 10 minut, poloha bytu je velmi blízko napojení na hlavní tepnu do Olomouce. Ulice, kde se nachází byt je ve velmi klidné části, v boční ulici, která navazuje na slepou ulici. Byt je v klidné bezpečné lokalitě.
Parkování je možné před domem, parkovací místa jsou volná a je jich dostatečný počet.

V bytě jsou možné prohlídky od 2. února 2026 a bude volný k nastěhování.

Cena je uvedena včetně kompletního právního servisu, rezervačního poplatku a veškerých administrativních nákladů.
Rádi Vám pomůžeme také se zajištěním nejvýhodnějšího financování.
Zveme Vás na osobní prohlídku této příjemné nemovitosti.
Pro více informací nebo domluvení termínu prohlídky kontaktujte makléře.

Parametry bytu

Cena
4 100 000 Kč Spočítat hypotéku
Poznámka k ceně
včetně provize RK
Aktualizováno
10. 3. 2026
Adresa
Nádražní I, Velká Bystřice
ID
0054
Stavba
Panelová
Vybaveno
Ne
Lokalita objektu
Klidná část obce
Vlastnictví
Osobní
Užitná plocha
44 m2
Třída energetické náročnosti
D - Méně úsporná

Kontaktovat makléře

Máte zájem o tento byt?

Tímto, v souladu s nařízením Evropského parlamentu a Rady (EU) 2016/679, v platném znění, prohlašuji, že mi je alespoň 16 let a uděluji tak svůj souhlas se zpracováním zadaných údajů (jméno, telefon, e-mail, ip adresa) společnosti B3 Technology, s.r.o., IČ: 07330600, se sídlem Novostavby 126/23, 435 11 Lom (správce dat), za účelem předání dotazu z tohoto formuláře Vámi vybranému inzerentovi a zpětného kontaktování mé osoby. Osobní údaje bude správce zpracovávat manuálně i automaticky přímo prostřednictvím svých zaměstnanců. Informace předané tímto formulářem budou uloženy v databázi správce maximálně po dobu 10 let. Odvolání souhlasu s uložením a zpracováním poskytnutých dat lze e-mailem na info@bydlisnami.cz. V případě podezření na neoprávněné použití Vámi poskytnutých údajů máte právo předat podnět k šetření Úřadu pro ochranu osobních údajů. Více informací
Chystáte se prodat nemovitost?
Pomůžeme Vám!

Inzerát si prohlédlo 9 lidí

Prodejce

Barbora Soukupová

Barbora Soukupová

Hlídací pes

Chcete dostávat emailem podobné nabídky prodeje bytů 2+1 v Velké Bystřici?

Podobné nemovitosti