Prodej bytu 2+kk, Praha - Vinohrady, Mánesova, 45 m2

Mánesova, Praha 2

11 330 000 Kč /za nemovitost HYPOTÉKA od 50 638 Kč /za měsíc

(včetně provize RK, právního a hypotečního servisu)

Doporučené firmy v Praze 2

Stěhovací služby

Výkup a prodej starého nábytku

Informace k bytu

Moderní investiční unikát 2 v1

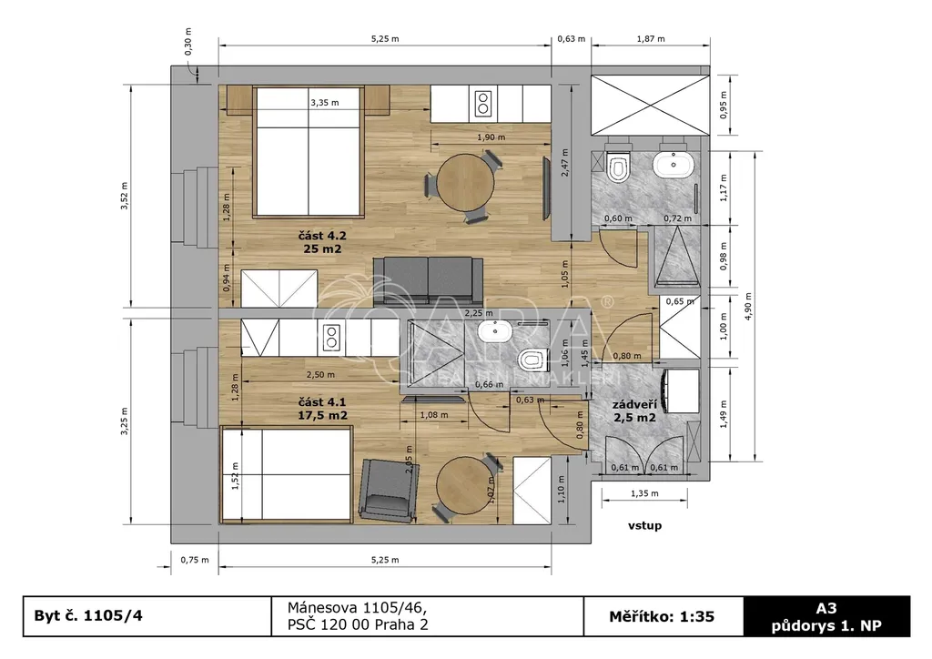
Hledáte nemovitost, která se v Praze 2 prakticky nevyskytuje? Nabízíme k prodeji atypický, kompletně zrekonstruovaný prostor, kolaudovaný jako byt, o rozloze 45 m², který je inteligentně rozdělen na dvě plně vybavená, nezávislá studia. Tato nemovitost v prestižní Mánesově ulici je ideální volbou pro investory hledající maximální výnos, nebo pro kombinaci vlastního bydlení a pronájmu.

Hlavní přednosti jednotky:
1) Dva v jednom: Každé studio (17,5 m2 a 25 m2) má vlastní kuchyňský kout, koupelnu a spací zónu a společnou chodbu (2,5 m2) s pračkou a sušičkou.
2) TOP lokalita: Mánesova ulice – jen pár kroků od Riegrových sadů a náměstí Jiřího z Poděbrad. Adresa, která neztrácí na hodnotě.
3) Vysoký výnos: Díky rozdělení na dvě jednotky a plnému vybavení generuje nemovitost o 20-30 % vyšší nájemné než běžný byt 2+kk v této oblasti.
4) Stav: Kompletní rekonstrukce (včetně rozvodů), moderní design, vybavené, vysoké stropy a citlivě zachované historické prvky domu.
5) Nadstandardní vybavení v ceně: Kompletní mobiliář na míru a 2 plně osazené kuchyňské linky, spotřebiče a nábytek (hodnota vybavení 1, 3 milionu Kč).

Investiční potenciál:
A) Krátkodobý pronájem: Doložitelný roční výnos po odečtení nákladů na správu a provoz při obsazenosti 80 %: 459 000 Kč tj. 4 % čistý výnos před zdaněním. Byt lze převzít se správou
a kalendářem obsazeným do října 2026.
B) Dlouhodobý pronájem: Stabilní příjem ze dvou nájemníků celkem: odhadem 30 000 Kč/ měsíc plus poplatky
C) Vhodné i jako firemní byt pro management nebo luxusní "pied-à-terre" v centru Prahy. V jednom studiu bydlíte při návštěvách Prahy a druhé pronajímáte.

O domě
Reprezentativní historický dům po rekonstrukci s udržovanými společnými prostory. Klidná ulice s minimálním provozem, přesto v centru veškerého dění (kavárny, restaurace, farmářské trhy).

Technické parametry
Celková plocha: 45 m² rozdělené na 2 samostatné studia s vlastním vchodem
Podlaží: přízemí, okna do ulice
Nízké měsíční náklady: 2 640 Kč za obě studia plus vlastní spotřeba elektřiny
Osobní vlastnictví, jedna bytová jednotka, možnost financování hypotékou.

Cena zahrnuje vybavení a možnost převzetí zavedené správy pronájmů.
Přijďte se přesvědčit o výhodách tohoto prostoru. Prohlídky jsou možné po dohodě i o víkendu.

Parametry bytu

Cena
11 330 000 Kč /za nemovitost Spočítat hypotéku
Poznámka k ceně
včetně provize RK, právního a hypotečního servisu
Aktualizováno
26. 3. 2026
Adresa
Mánesova, Praha 2
ID
19085
Stavba
Smíšená
Stav objektu
Po rekonstrukci
Patro
1. z 6
Vybaveno
Ano
Lokalita objektu
Klidná část obce
Vlastnictví
Osobní
Užitná plocha
45 m2
Podlahová plocha
45 m2
Třída energetické náročnosti
D - Méně úsporná
Elektřina
230V
Odpad
Veřejná kanalizace
Komunikace
Dlážděná, Asfaltová
Telekomunikace
Internet
Doprava
Silnice, MHD
Voda
Vodovod
Výtah

Kontaktovat makléře

Realitní kancelář

Logo QARA, s.r.o.

QARA, s.r.o.

Šafaříkova 201/17, Praha

Chystáte se prodat nemovitost?
Pomůžeme Vám!

Máte zájem o tento byt?

Tímto, v souladu s nařízením Evropského parlamentu a Rady (EU) 2016/679, v platném znění, prohlašuji, že mi je alespoň 16 let a uděluji tak svůj souhlas se zpracováním zadaných údajů (jméno, telefon, e-mail, ip adresa) společnosti B3 Technology, s.r.o., IČ: 07330600, se sídlem Novostavby 126/23, 435 11 Lom (správce dat), za účelem předání dotazu z tohoto formuláře Vámi vybranému inzerentovi a zpětného kontaktování mé osoby. Osobní údaje bude správce zpracovávat manuálně i automaticky přímo prostřednictvím svých zaměstnanců. Informace předané tímto formulářem budou uloženy v databázi správce maximálně po dobu 10 let. Odvolání souhlasu s uložením a zpracováním poskytnutých dat lze e-mailem na info@bydlisnami.cz. V případě podezření na neoprávněné použití Vámi poskytnutých údajů máte právo předat podnět k šetření Úřadu pro ochranu osobních údajů. Více informací
Chystáte se prodat nemovitost?
Pomůžeme Vám!

Inzerát si prohlédlo 5 lidí

Prodejce

Pavla Viková

Pavla Viková

Hlídací pes

Chcete dostávat emailem podobné nabídky prodeje bytů 2+kk v Praze 2?

Podobné nemovitosti