Prodej bytu 3+kk, Hradec Králové, Sadovská, 78 m2

Sadovská, Hradec Králové

Doporučené firmy v Hradci Králové

Informace k bytu

Prodej prostorného bytu nedaleko centra Hradce Králové, ul. Sadovská

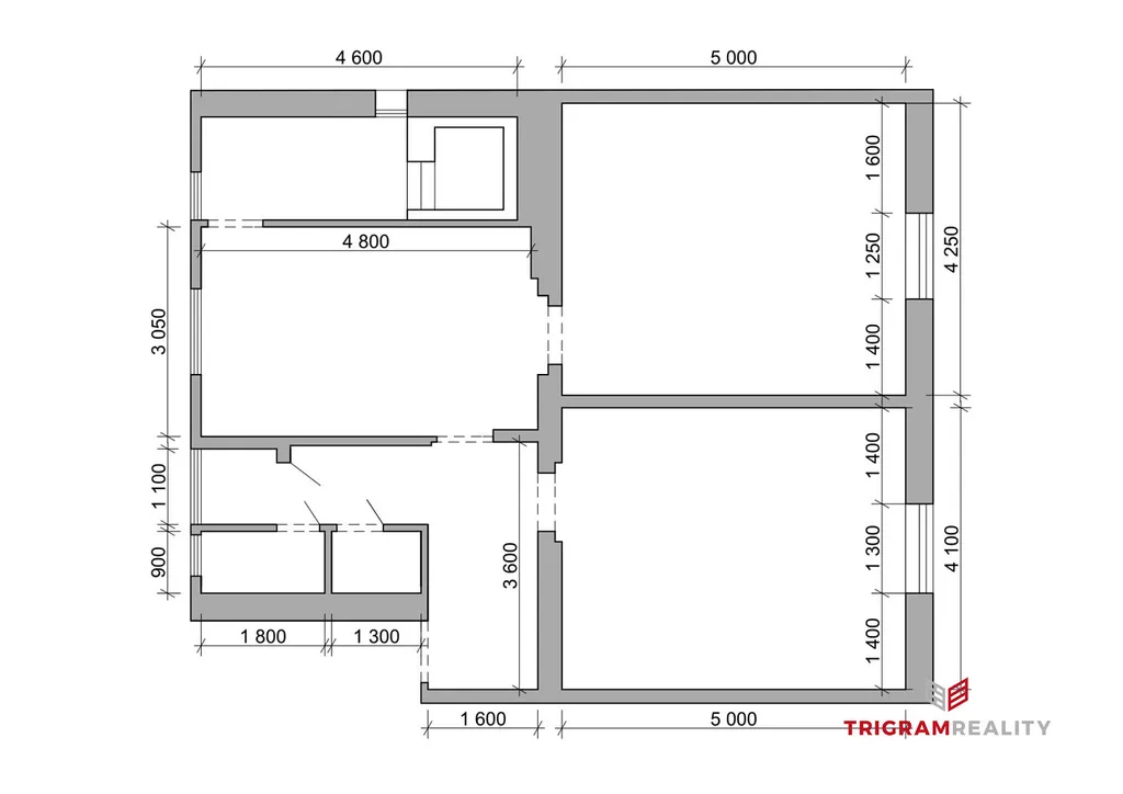
Nabízíme k prodeji prostorný byt o velikosti cca 77,50 m², v 1. NP, v oblíbené lokalitě Pražského Předměstí v Hradci Králové, ulice Sadovská. Byt se nachází v cihlovém domě a je plánovaná revitalizace fasády, včetně zateplení.

Byt o dispozici 3kk nabízí prostornou chodbu se samostatnou toaletou a komorou, kde lze pohodlně vybudovat novou a prostornou koupelnu.
Dále se zde nachází dva samostatné pokoje do ulice a jeden pokoj s kuchyňským koutem situován do zahrady. Z kuchyně je vstup do samostatné koupelny s vyzděnou vanou.

Vytápění je v současnosti řešeno plynovými topidly (vafkami) v jednotlivých místnostech.

Byt se nabízí nevybavený a je určen k rekonstrukci, což poskytuje novému majiteli ideální příležitost upravit si dispozici a standard bydlení dle vlastních představ.

K bytu náleží sklepní kóje a společný podíl na zahradě se zelení a travnatou plochou, která nabízí příjemné místo k odpočinku či posezení.

Velkou výhodou je samotná lokalita v širším centru města s velmi dobrou pěší dostupností, i parkováním.
Hlavní nádraží i dopravní terminál jsou vzdálené pár minut chůze. V okolí se nachází kompletní občanská vybavenost a další služby. Dukelská třída (pěší zóna) je vzdálena pouhých 400 metrů.

Samozřejmostí je rychlé napojení na dálnici D11 a hlavní dopravní tahy.

Pro více informací nebo domluvení prohlídky mě neváhejte kontaktovat. Těším se na osobní setkání při prohlídce bytu.

Parametry bytu

Cena
6 050 000 Kč Spočítat hypotéku
Aktualizováno
13. 3. 2026
Adresa
Sadovská, Hradec Králové
ID
N707
Stavba
Cihlová
Vlastnictví
Osobní
Užitná plocha
78 m2
Třída energetické náročnosti
G - Mimořádně nehospodárná

Kontaktovat makléře

Realitní kancelář

Trigramreality s.r.o.

Milady Horákové 1738/7, Hradec Králové

Chystáte se prodat nemovitost?
Pomůžeme Vám!

Máte zájem o tento byt?

Tímto, v souladu s nařízením Evropského parlamentu a Rady (EU) 2016/679, v platném znění, prohlašuji, že mi je alespoň 16 let a uděluji tak svůj souhlas se zpracováním zadaných údajů (jméno, telefon, e-mail, ip adresa) společnosti B3 Technology, s.r.o., IČ: 07330600, se sídlem Novostavby 126/23, 435 11 Lom (správce dat), za účelem předání dotazu z tohoto formuláře Vámi vybranému inzerentovi a zpětného kontaktování mé osoby. Osobní údaje bude správce zpracovávat manuálně i automaticky přímo prostřednictvím svých zaměstnanců. Informace předané tímto formulářem budou uloženy v databázi správce maximálně po dobu 10 let. Odvolání souhlasu s uložením a zpracováním poskytnutých dat lze e-mailem na info@bydlisnami.cz. V případě podezření na neoprávněné použití Vámi poskytnutých údajů máte právo předat podnět k šetření Úřadu pro ochranu osobních údajů. Více informací
Chystáte se prodat nemovitost?
Pomůžeme Vám!

Inzerát si prohlédlo 0 lidí

Prodejce

Bc. Jiří Hruška

Bc. Jiří Hruška

Hlídací pes

Chcete dostávat emailem podobné nabídky prodeje bytů 3+kk v Hradci Králové?

Podobné nemovitosti