Prodej bytu 3+kk, Praha - Smíchov, Nádražní, 64 m2 (ID: 2572788)

Nádražní, Praha, Smíchov

11 500 000 Kč /za nemovitost HYPOTÉKA od 51 398 Kč /za měsíc

(Cena k jednání)

Doporučené firmy v Praze 5

Stěhovací služby

Výkup a prodej starého nábytku

Informace k bytu

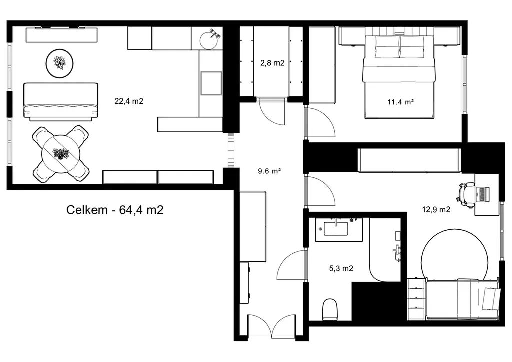
Exkluzivní nabídka světlého bytu o výměře 64 m2.
Pocitově velmi klidný a příjemný byt se nachází ve 2. P v pečlivě spravovaném a udržovaném cihlovém domě, ve správě výborně fungujícího SVJ.

Pocit komfortního bydlení, vzdušnosti a velkorysého prostoru dotváří vysoké stropy se sníženými podhledy s nainstalovaným odhlučněním.

Dispozici bytu tvoří tři samostatné neprůchozí místnosti, koupelna s toaletou a technická místnost.
K vybavení bytu patří kuchyňská linka s vestavěnými spotřebiči.

Orientace bytu je příznivá.
Obývací pokoj je orientován na západní světovou stranu, ložnice a dětský pokoj směřují do klidného vnitrobloku s orientací na východ.
Dostatek denního světla a zároveň snížení hluku do místností, zajišťují kvalitní dřevěná eurookna s izolačními dvojskly.

Byt byl kompletně a precizně zrekonstruován, je nově vymalovaný bez potřeby investic, ihned volný.
Ve fotogalerii se nachází i návrh možné úpravy obývacího pokoje a ložnice.

Parkování za symbolickou cenu formou ročního pronájmu, je možné na vyhrazeném parkovacím místě ve vnitrobloku.
K dispozici je prostorný sklep v suterénu domu o výměře 12 m2.

Lokalita s kompletní občanskou vybaveností.
Výborná dopravní dostupnost - stanice metra 2 minuty chůze, centrum města pohodlně dosažitelné v čase 10 minut.

V současnosti probíhá v okolí výstavba nových developerských projektů, které po dokončení zvýší investiční potenciál dynamicky se rozvíjejícího, městského centra levého břehu Vltavy.

Kompletní informace v RK.

Parametry bytu

Cena
11 500 000 Kč /za nemovitost Spočítat hypotéku
Poznámka k ceně
Cena k jednání
Aktualizováno
13. 3. 2026
Adresa
Nádražní, Praha, Smíchov
ID
N00388
Stavba
Cihlová
Stav objektu
Po rekonstrukci
Patro
2. z 3
Lokalita objektu
Centrum obce
Vlastnictví
Osobní
Užitná plocha
64 m2
Podlahová plocha
64 m2
Třída energetické náročnosti
G - Mimořádně nehospodárná
Elektřina
230V
Plyn
Plynovod
Odpad
Veřejná kanalizace
Telekomunikace
Telefon, Internet, Kabelová televize
Doprava
Vlak, Dálnice, Silnice, MHD, Autobus
Voda
Vodovod
Zdroj teplé vody
Plynový kotel
Sklep
Parkování

Kontaktovat makléře

Máte zájem o tento byt?

Tímto, v souladu s nařízením Evropského parlamentu a Rady (EU) 2016/679, v platném znění, prohlašuji, že mi je alespoň 16 let a uděluji tak svůj souhlas se zpracováním zadaných údajů (jméno, telefon, e-mail, ip adresa) společnosti B3 Technology, s.r.o., IČ: 07330600, se sídlem Novostavby 126/23, 435 11 Lom (správce dat), za účelem předání dotazu z tohoto formuláře Vámi vybranému inzerentovi a zpětného kontaktování mé osoby. Osobní údaje bude správce zpracovávat manuálně i automaticky přímo prostřednictvím svých zaměstnanců. Informace předané tímto formulářem budou uloženy v databázi správce maximálně po dobu 10 let. Odvolání souhlasu s uložením a zpracováním poskytnutých dat lze e-mailem na info@bydlisnami.cz. V případě podezření na neoprávněné použití Vámi poskytnutých údajů máte právo předat podnět k šetření Úřadu pro ochranu osobních údajů. Více informací
Chystáte se prodat nemovitost?
Pomůžeme Vám!

Inzerát si prohlédlo 0 lidí

Prodejce

Jiří Švára

Jiří Švára

Hlídací pes

Chcete dostávat emailem podobné nabídky prodeje bytů 3+kk v Praze 5?

Podobné nemovitosti