Prodej bytu 1+kk, Praha - Záběhlice, Narcisová, 25 m2 (ID: 2573445)

Narcisová, Praha, Záběhlice

4 500 000 Kč /za nemovitost HYPOTÉKA od 20 112 Kč /za měsíc

(včetně provize RK)

Doporučené firmy v Praze 10

Stěhovací služby

Výkup a prodej starého nábytku

Informace k bytu

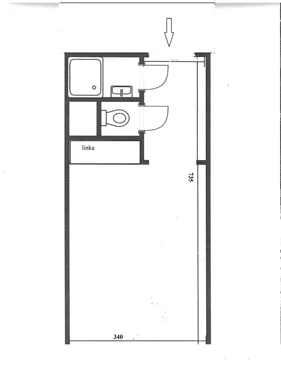
Prodej bytu 1+kk v osobním vlastnictví s užitnou plochou 25 m2+plocha sklepa. Byt se nachází v devátém patře -celkem 12 a je v dobrém technickém stavu, což poskytuje možnost okamžitého stěhování.

V bytě je zděné jádro, plastová okna, vyštukováno a vymalováno. Na podlaze je koberec-nutná výměna, koupelna + WC dlažba.
V chodbě je vestavěná skříň, v lince je umístěna pračka, malá lednice.

Dům je ve velmi dobrém stavu - průběžně udržován, vyměněny stoupačky, nová fasáda -zatepleno, k dispozici jsou dva výtahy jeden osobní a druhý nákladní. Sklep je v suterénu domu. Náklady na bydlení činí 3920 Kč měsíčně plus 500 Kč za elektřinu.
Kompletní občanská vybavenost- škola, školka, obchody, pošta, zdravotní středisko.

Prohlídky jsou možné po předchozí domluvě. Pro více informací o této nemovitosti nebo sjednání prohlídky nás prosím kontaktujte nebo vyplňte níže uvedený formulář, rádi Vám pomůžeme.

Parametry bytu

Cena
4 500 000 Kč /za nemovitost Spočítat hypotéku
Poznámka k ceně
včetně provize RK
Náklady na bydlení
3920,-/měs+500,-el energie
Aktualizováno
14. 3. 2026
Adresa
Narcisová, Praha, Záběhlice
Stavba
Panelová
Stav objektu
Dobrý
Patro
9. z 12
Vlastnictví
Osobní
Užitná plocha
25 m2
Třída energetické náročnosti
E - Nehospodárná
Elektřina
230V
Doprava
MHD
Zdroj topení
Centrální dálkové
Sklep
Výtah
Bezbarierový přístup

Kontaktovat makléře

Máte zájem o tento byt?

Tímto, v souladu s nařízením Evropského parlamentu a Rady (EU) 2016/679, v platném znění, prohlašuji, že mi je alespoň 16 let a uděluji tak svůj souhlas se zpracováním zadaných údajů (jméno, telefon, e-mail, ip adresa) společnosti B3 Technology, s.r.o., IČ: 07330600, se sídlem Novostavby 126/23, 435 11 Lom (správce dat), za účelem předání dotazu z tohoto formuláře Vámi vybranému inzerentovi a zpětného kontaktování mé osoby. Osobní údaje bude správce zpracovávat manuálně i automaticky přímo prostřednictvím svých zaměstnanců. Informace předané tímto formulářem budou uloženy v databázi správce maximálně po dobu 10 let. Odvolání souhlasu s uložením a zpracováním poskytnutých dat lze e-mailem na info@bydlisnami.cz. V případě podezření na neoprávněné použití Vámi poskytnutých údajů máte právo předat podnět k šetření Úřadu pro ochranu osobních údajů. Více informací
Chystáte se prodat nemovitost?
Pomůžeme Vám!

Inzerát si prohlédlo 0 lidí

Prodejce

Ivana Heranová

Ivana Heranová

Hlídací pes

Chcete dostávat emailem podobné nabídky prodeje bytů 1+kk v Praze 10?

Podobné nemovitosti